Portland, 97219
3 Bed
2 Bath
2328 SqFt
28 DOM
Built: 1956
$735,000
$735000
3 Bed
2 Bath
2328 SqFt
28 DOM
Built: 1956
Principal Broker
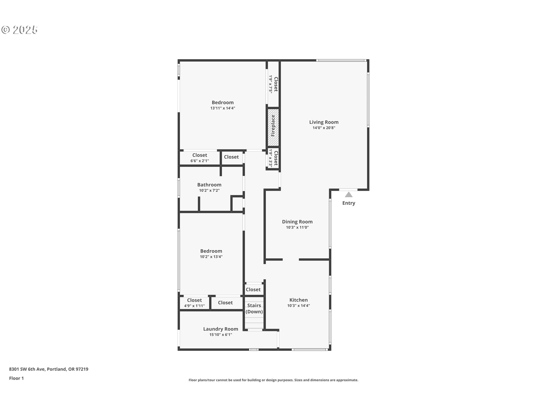
(503) 893-8874Offer received. Step into this mostly original mid-century residence perched above street level and invites you to experience clean lines, large windows and functional design. Each floor thoughtfully equipped for comfort and privacy with washers/dryers. The main floor exudes original character with mountain views, stunning sunrises and ethereal moonrises. The kitchen is designed for culinary adventures with big view windows with adjoining dining room that can seat 10-15 guests. All appliances included; a gas range, full-size refrigerator, dishwasher. Relax at the inviting butcher block extended eating area. Two serene bedrooms up offer restful retreats, and the bathroom showcases the original green retro bathtub and period tile, adding a touch of nostalgic elegance. Additional butcher block space and storage in the main floor laundry area. Cozy up by the gas fireplace on chilly evenings and discover potential for expansion in the easily accessible unfinished attic space, reached by a pull-down staircase. The lower level huge bedroom and separate office plus full bath can be private areas for guests, or even a rental opportunity. This level boasts its own full kitchen with a gas range, full-size refrigerator, and dishwasher, complemented by durable LVP flooring throughout. Enjoy meals in the comfortable eating area, and retreat to the spacious bedroom featuring a large egress window that floods the room with natural light and a gas fireplace with remote. A dedicated area provides a quiet space for work or study or expand for a 4th bedroom. This lower level is easily accessible through the expansive two-car garage, offering both convenience and security. New roof(2022), new AC, new gas furnace(2022). The beautifully terraced landscaped private yard is enhanced by mature shrubs and trees, creating a secluded outdoor oasis and large sitting areas. Easy access within minutes to OHSU, Lewis & Clark College and shops in Multnomah Village, Hillsdale and Lake Oswego. [Home Energy Score = 5. HES Report at https://rpt.greenbuildingregistry.com/hes/OR10238263]
Listing Provided Courtesy of Betsy Shand, Knipe Realty ERA Powered
438464271
SingleFamilyResidence
28 DOM
3
7405.2 SqFt
2
2328
1956
Multnomah
R127992
Capitol Hill 7/10
Jackson 8/10
Ida B Wells
Residential
SingleFamilyResidence
CARSON HTS, BLOCK 25, LOT 4, N 1/2 OF LOT 5
Listing Provided Courtesy of Betsy Shand, Knipe Realty ERA Powered
Krishna Realty data last checked: Apr 01, 2026 05:07 | Listing last modified Jul 30, 2025 11:51,
Source:
Download our Mobile app
0
1328
1000
2328
Tax Record
1328
2/Gas
3
2
0
2
Composition
2, Attached
Stories2,MidCenturyModern
Driveway,OffStreet
2
1956
Yes
Brick, Cedar
Finished,SeparateLivingQuartersApartmentAuxLivingUnit,StorageSpace
Finished,SeparateLiv
ConcretePerimeter
DoublePaneWindows
Deck, Fireplace, LivingRoomDiningRoomCombo
Dishwasher, Disposal, FreeStandingGasRange, GasAppliances, Pantry
AirCleaner, Granite, HardwoodFloors, LuxuryVinylPlank, SeparateLivingQuartersApartmentAuxLivingUnit, Wash
Deck, Garden, GuestQuarters, RaisedBeds, ToolShed, Yard
CentralAir
Gas
ForcedAir, ForcedAir95Plus
PublicSewer
Gas
Gas
9733.08
0
Cash,Conventional,FHA,VALoan
06-03-2025
No
No
07-01-2025
28
28
07-30-2025
Cash,Conventional,FHA,VALoan
$799,000
$750,000
$735,000
Jul 30, 2025 11:51
Listing courtesy of Knipe Realty ERA Powered.
The content relating to real estate for sale on this site comes in part from the IDX program of the RMLS of Portland, Oregon.
Real Estate listings held by brokerage firms other than this firm are marked with the RMLS logo, and
detailed information about these properties include the name of the listing's broker.
Listing content is copyright © 2019 RMLS of Portland, Oregon.
All information provided is deemed reliable but is not guaranteed and should be independently verified.
Krishna Realty data last checked: Apr 01, 2026 05:07 | Listing last modified Jul 30, 2025 11:51.
Some properties which appear for sale on this web site may subsequently have sold or may no longer be available.
Principal Broker
(503) 893-8874Offer received. Step into this mostly original mid-century residence perched above street level and invites you to experience clean lines, large windows and functional design. Each floor thoughtfully equipped for comfort and privacy with washers/dryers. The main floor exudes original character with mountain views, stunning sunrises and ethereal moonrises. The kitchen is designed for culinary adventures with big view windows with adjoining dining room that can seat 10-15 guests. All appliances included; a gas range, full-size refrigerator, dishwasher. Relax at the inviting butcher block extended eating area. Two serene bedrooms up offer restful retreats, and the bathroom showcases the original green retro bathtub and period tile, adding a touch of nostalgic elegance. Additional butcher block space and storage in the main floor laundry area. Cozy up by the gas fireplace on chilly evenings and discover potential for expansion in the easily accessible unfinished attic space, reached by a pull-down staircase. The lower level huge bedroom and separate office plus full bath can be private areas for guests, or even a rental opportunity. This level boasts its own full kitchen with a gas range, full-size refrigerator, and dishwasher, complemented by durable LVP flooring throughout. Enjoy meals in the comfortable eating area, and retreat to the spacious bedroom featuring a large egress window that floods the room with natural light and a gas fireplace with remote. A dedicated area provides a quiet space for work or study or expand for a 4th bedroom. This lower level is easily accessible through the expansive two-car garage, offering both convenience and security. New roof(2022), new AC, new gas furnace(2022). The beautifully terraced landscaped private yard is enhanced by mature shrubs and trees, creating a secluded outdoor oasis and large sitting areas. Easy access within minutes to OHSU, Lewis & Clark College and shops in Multnomah Village, Hillsdale and Lake Oswego. [Home Energy Score = 5. HES Report at https://rpt.greenbuildingregistry.com/hes/OR10238263]
Download our Mobile app