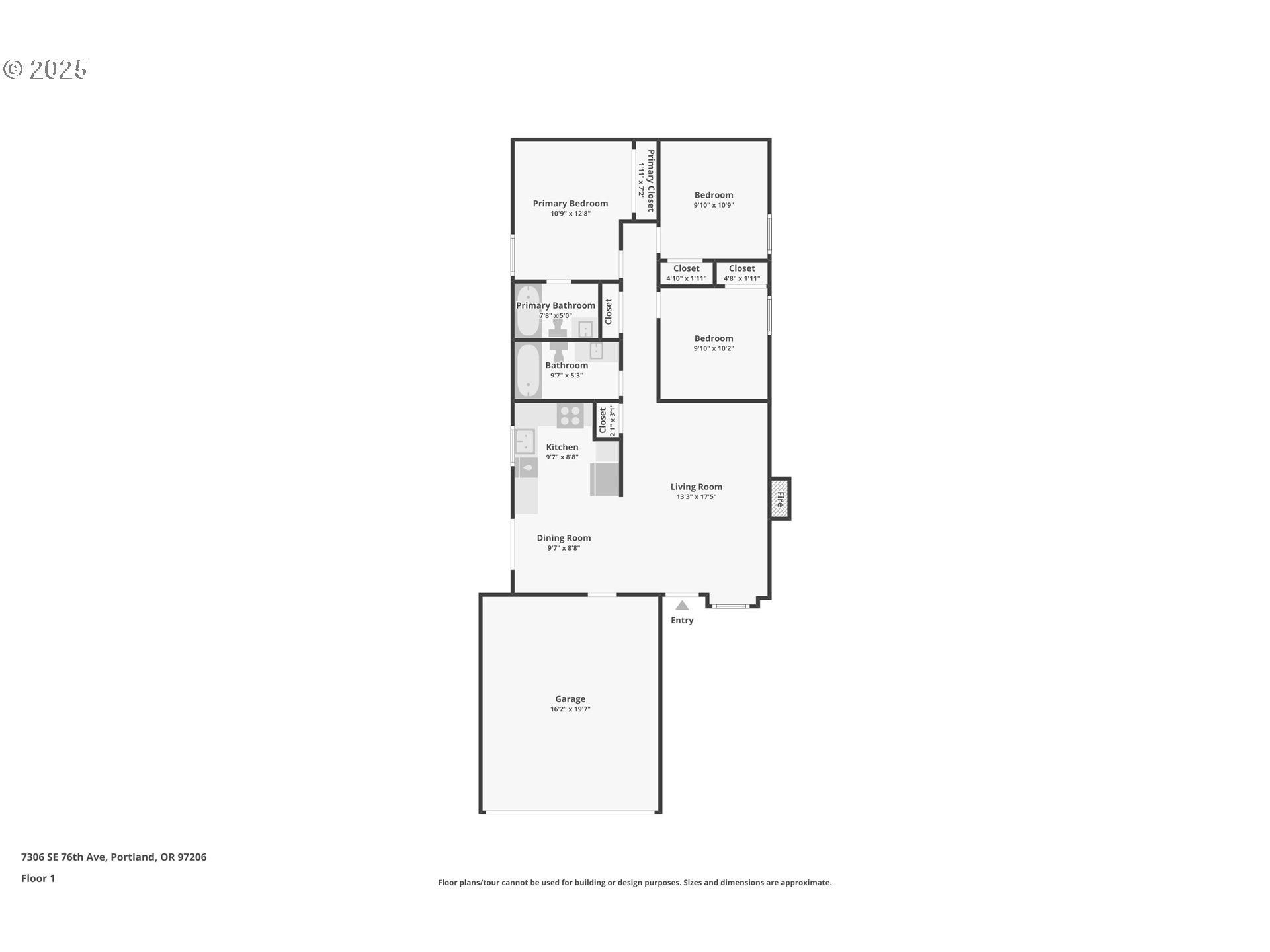
Welcome to this beautifully maintained home tucked in a desirable SE Portland neighborhood! The spacious floor plan offers both comfort and functionality, featuring a generous kitchen with abundant counter space, ample cabinetry, and a sunlit dining area, perfect for entertaining or casual everyday living. The inviting living room centers around a cozy fireplace, while the primary suite includes a private attached bath for added comfort and convenience. Enjoy year-round ease with Newer A/C and newer HVAC system (both 2020), and peace of mind with a brand-new roof installed in 2024. The home also has a great Energy Score: an 8 out of 10.Step outside to your backyard complete with a covered patio for outdoor dining, a shed for extra storage, and an attached two-car garage. This move-in-ready gem offers the perfect blend of comfort, style, and low-maintenance living, ideal for first-time homebuyers, downsizers, or anyone looking for a well-cared-for home. [Home Energy Score = 8. HES Report at https://rpt.greenbuildingregistry.com/hes/OR10242259]
Listing Provided Courtesy of Rocky Loring, Redfin
General Information
412221354
SingleFamilyResidence
0
DOM
3
3920.4 SqFt
2
1014
1995
Multnomah
R276295
Whitman 5/10
Lane 4/10
Cleveland
Residential
SingleFamilyResidence
STERLING, BLOCK 3, N 40' OF LOT 12
Listing Provided Courtesy of Rocky Loring, Redfin
Krishna Realty data last checked: Oct 09, 2025 19:16 | Listing last modified Oct 09, 2025 08:20,
Source:
Welcome to this beautifully maintained home tucked in a desirable SE Portland neighborhood! The spacious floor plan offers both comfort and functionality, featuring a generous kitchen with abundant counter space, ample cabinetry, and a sunlit dining area, perfect for entertaining or casual everyday living. The inviting living room centers around a cozy fireplace, while the primary suite includes a private attached bath for added comfort and convenience. Enjoy year-round ease with Newer A/C and newer HVAC system (both 2020), and peace of mind with a brand-new roof installed in 2024. The home also has a great Energy Score: an 8 out of 10.Step outside to your backyard complete with a covered patio for outdoor dining, a shed for extra storage, and an attached two-car garage. This move-in-ready gem offers the perfect blend of comfort, style, and low-maintenance living, ideal for first-time homebuyers, downsizers, or anyone looking for a well-cared-for home. [Home Energy Score = 8. HES Report at https://rpt.greenbuildingregistry.com/hes/OR10242259]