5129 SE 60TH AVE

Portland, 97206

  • 3 Bed

  • 2 Bath

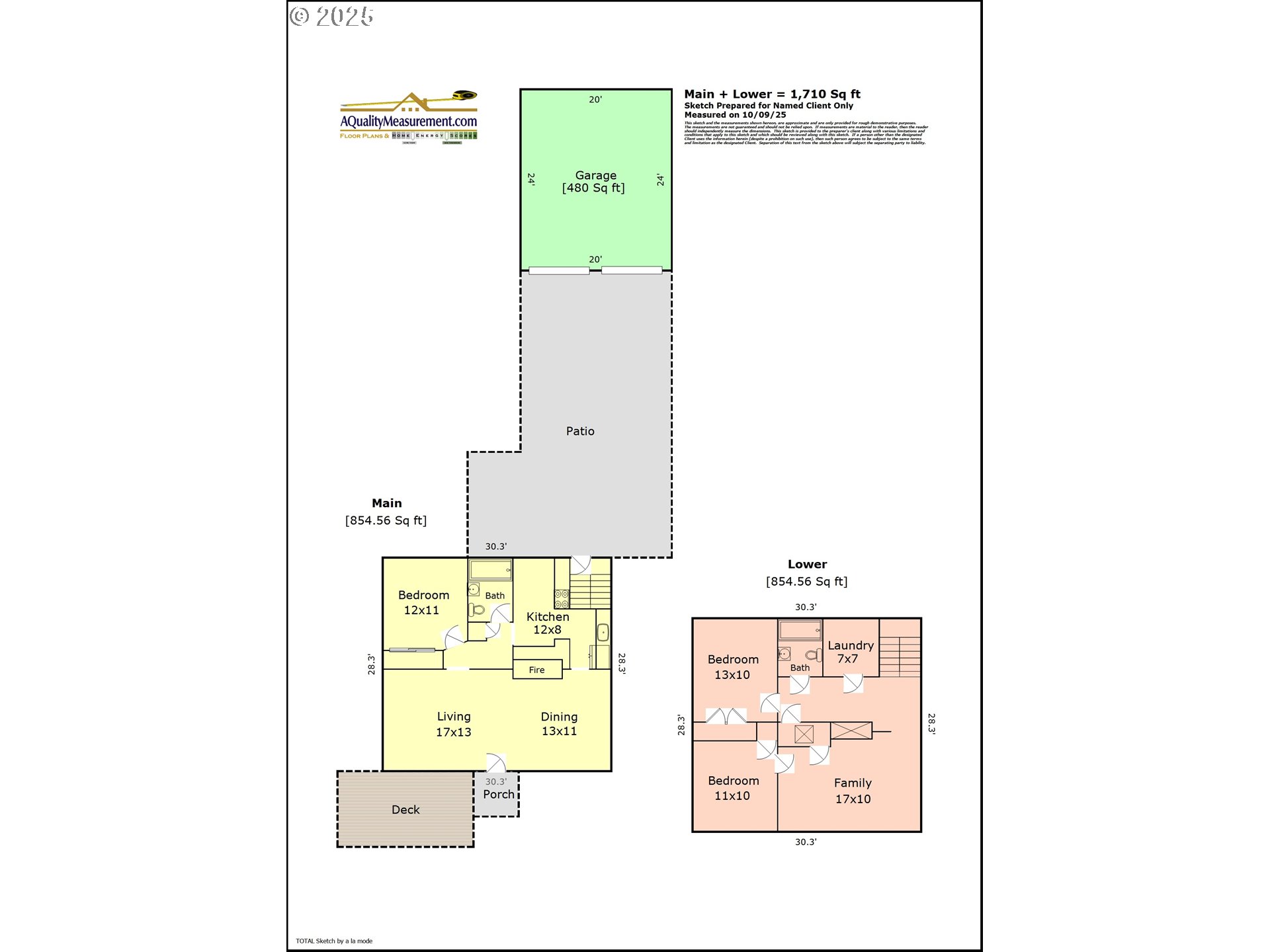
  • 1710 SqFt

  • 0 DOM

  • Built: 1927

  • Status: Active

$574,900

X

5129 SE 60TH AVE

Portland 97206

$574900

  • 3 Bed

  • 2 Bath

  • 1710 SqFt

  • 0 DOM

  • Built: 1927

  • Status: Active

    Open House

Krishna Regupathy

Principal Broker

(503) 893-8874

Welcome to your next chapter in the vibrant Woodstock neighborhood where culture, cuisine, and community collide. This east-facing charmer is ready for your holiday decorations! You'll be lured in by the delightful front deck or cozy alcove porch as perfect places to have your morning coffee or to unwind after a long work day all while watching Fido run around in the fully fenced front yard. Then step inside this sun filled, traditional bungalow style living and dining space featuring vintage touches such as hardwood floors, built-ins, picture rail moldings, original hardware and a cozy wood-burning fireplace. Storybook kitchen with butcher block countertops, fir fooring and SS appliances. Spacious main level primary bedroom plus modernized bath with travertine tiled tub and shower. Huge attic space for storage or future remodel potential. Fabulous lower level offers two generous sized bedrooms with carpeting and closets, family room, bath with walk-in tiled shower and laundry room with storage. Ideal space for multi-generational living or those independent teenagers! Pop out the backdoor into a private, fully fenced backyard with patio and storage shed. Plenty of room for gardening or entertaining plus an electrical outlet for a hot tub already exists(hot tub doesnt stay with property). But what truly sets it apart? Rare TWO car, detached garage with a level driveway that is equipped with electricity and offers a perfect flex-space for a workshop, gym or DIY endeavors. Home updates include newer vinyl windows, chimney cap and plumbing throughout. HVAC/Heat pump 8 years old. Radon mitigation system in place. Decommissioned oil tank. Tucked into a quiet, established neighborhood with a 78 walk score, this home is minutes from parks, New Seasons Market, acclaimed eateries, trendy bars, coffee and easy freeway access. Urban convenience is at your fingertips. The hard work has been done—all that’s left is to move in and make it yours!

Download our Mobile app

Similar Properties

Download our Mobile app

$415,000

  • 3 Bed

  • 1 Bath

  • 1101 SqFt

  • 0 DOM

  • 6226 SE 71ST AVE, Portland, 97206
Open Sat, Oct 11th, 12PM to 2PM

$444,900

  • 2 Bed

  • 1 Bath

  • 1100 SqFt

  • 1 DOM

  • 6423 SE 63RD AVE, Portland, 97206
Open Sat, Oct 11th, 1PM to 3PM

$375,000

  • 2 Bed

  • 1 Bath

  • 1888 SqFt

  • 1 DOM

  • 5522 SE Harold ST, Portland, 97206
Open Sat, Oct 11th, 1PM to 3PM

$363,000

  • 3 Bed

  • 1 Bath

  • 1284 SqFt

  • 1 DOM

  • 5302 SE FLAVEL ST, Portland, 97206