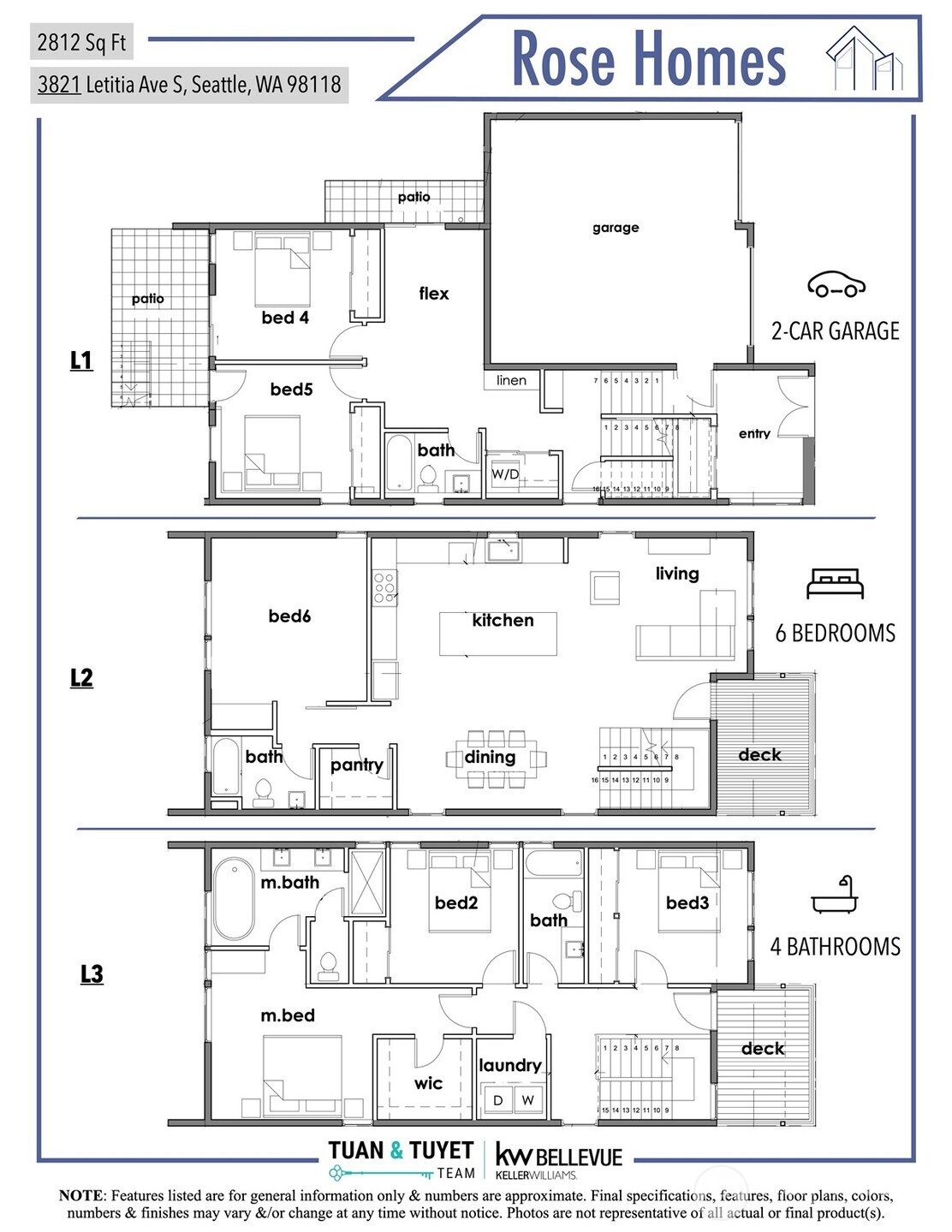
Modern Multi-Generational Living in the Heart of Columbia City! Thoughtfully designed for today’s connected lifestyle, this property offers three complete homes—ideal for extended multi-generational living, or flexible rental options. Steps from Columbia City’s vibrant restaurants, coffee shops & Light Rail. Main Home: 6 beds, 4 baths, open-concept layout with chef’s kitchen, quartz waterfall island & main-floor bedrooms for guests or flexible use. ADU: 2 beds, 2.25 baths, full kitchen, laundry & private entrance. DADU: 2 beds, 2.25 baths, standalone unit with kitchen, laundry. Energy-efficient systems, 2-car garage + driveway parking for up to 8 vehicles. Three homes—endless possibilities—all in one prime Columbia City location!
Listing Provided Courtesy of Tuyet G. Luong, Keller Williams Rlty Bellevue
General Information
NWM2450881
Single Family Residence
1
DOM
10
5018.11 SqFt
10
4972
2025
King
Residential
Single Family Residence
Listing Provided Courtesy of Tuyet G. Luong, Keller Williams Rlty Bellevue
Krishna Realty data last checked: Nov 03, 2025 02:33 | Listing last modified Nov 01, 2025 12:02,
Source:
Download our Mobile app
Residence Information
4972
10
6
2
10
Composition, See Remarks, Torch Down
2,
15 - Multi Level
2025
None
None
Features and Utilities
Dishwasher(s), Disposal, Double Oven, Dryer(s), Refrigerator(s), See Remarks, Stove(s)/Range(s), Was
Second Kitchen, Second Primary Bedroom, Bath Off Primary, Double Pane/Storm Window, Dining Room, Vau
Cement Planked
Public
Sewer Connected
Financial
36986
Cash Out, Conventional
10-31-2025
Comparable Information
1
1
Cash Out, Conventional
$2,995,000
$2,995,000
Nov 01, 2025 12:02
Schools
Map
Listing courtesy of Keller Williams Rlty Bellevue.
Modern Multi-Generational Living in the Heart of Columbia City! Thoughtfully designed for today’s connected lifestyle, this property offers three complete homes—ideal for extended multi-generational living, or flexible rental options. Steps from Columbia City’s vibrant restaurants, coffee shops & Light Rail. Main Home: 6 beds, 4 baths, open-concept layout with chef’s kitchen, quartz waterfall island & main-floor bedrooms for guests or flexible use. ADU: 2 beds, 2.25 baths, full kitchen, laundry & private entrance. DADU: 2 beds, 2.25 baths, standalone unit with kitchen, laundry. Energy-efficient systems, 2-car garage + driveway parking for up to 8 vehicles. Three homes—endless possibilities—all in one prime Columbia City location!