Tigard, 97224
3 Bed
2.5 Bath
2365 SqFt
31 DOM
Built: 2002
$639,900
$639900
3 Bed
2.5 Bath
2365 SqFt
31 DOM
Built: 2002
Principal Broker
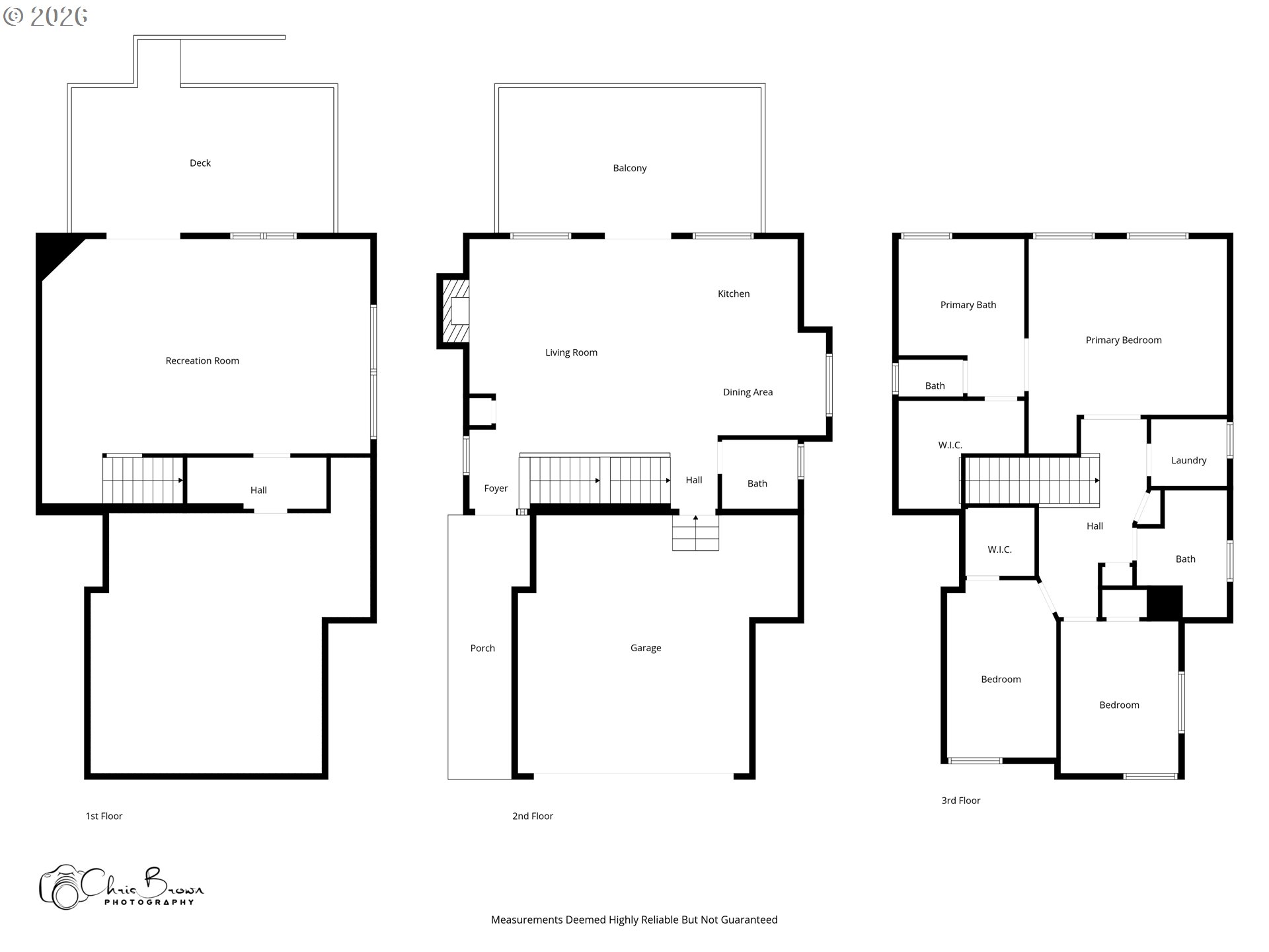
(503) 893-8874Welcome to this home where comfort and nature blend seamlessly. The living room offers a cozy fireplace, slate flooring, & a sliding door that opens to the first of two decks. Step outside and you’ll feel like you’re in a tree house, as this property backs to green space with mature trees and a creek, offering peaceful views and privacy.The well-appointed kitchen has granite countertops, an eating bar, and stainless steel appliances, and opens seamlessly to the dining area, perfect for entertaining or casual meals.Upstairs, the primary suite is a true retreat with double-door entry, a cathedral ceiling, walk-in closet, and an ensuite bathroom with double vanity. Two additional bedrooms, a full bathroom, and a conveniently located laundry room complete the second level.The lower level offers a spacious family room, storage closet, and access to the crawlspace for even more storage. A sliding door leads to the second deck, this one covered, where you can relax & enjoy nature year-round. There are also stairs down to the backyard and green space. Updates include a new roof and upper deck in 2025; primary shower remodel in 2024; and new kitchen appliances in 2023
Listing Provided Courtesy of Ann Leighty, Berkshire Hathaway HomeServices NW Real Estate
529529451
SingleFamilyResidence
31 DOM
3
7405.2 SqFt
2.5
2365
2002
Washington
R2067502
Deer Creek 8/10
Twality 5/10
Tualatin
Residential
SingleFamilyResidence
BEEF BEND HEIGHTS, LOT 14, ACRES 0.17
Listing Provided Courtesy of Ann Leighty, Berkshire Hathaway HomeServices NW Real Estate
Krishna Realty data last checked: Mar 16, 2026 19:35 | Listing last modified Mar 16, 2026 13:04,
Source:
Download our Mobile app
1097
663
605
2365
Appraisal
1760
1/Gas
3
2
1
2.5
Composition
2, Attached
Traditional
Driveway
3
2002
No
CementSiding, LapSiding
Daylight
Daylight
Deck, Fireplace, SlidingDoors
BuiltinRange, Dishwasher, Disposal, FreeStandingRange, Granite, Microwave, StainlessSteelAppliance
GarageDoorOpener, Granite, HighCeilings, Laundry, SlateFlooring, WalltoWallCarpet, WasherDryer, WoodFloors
CoveredDeck, Deck, Porch
CentralAir
Gas
ForcedAir
PublicSewer
Gas
Gas
5719.91
0
Cash,Conventional,FHA,VALoan
02-13-2026
No
No
31
31
Cash,Conventional,FHA,VALoan
$639,900
$639,900
Mar 16, 2026 13:04
Listing courtesy of Berkshire Hathaway HomeServices NW Real Estate.
The content relating to real estate for sale on this site comes in part from the IDX program of the RMLS of Portland, Oregon.
Real Estate listings held by brokerage firms other than this firm are marked with the RMLS logo, and
detailed information about these properties include the name of the listing's broker.
Listing content is copyright © 2019 RMLS of Portland, Oregon.
All information provided is deemed reliable but is not guaranteed and should be independently verified.
Krishna Realty data last checked: Mar 16, 2026 19:35 | Listing last modified Mar 16, 2026 13:04.
Some properties which appear for sale on this web site may subsequently have sold or may no longer be available.
Principal Broker
(503) 893-8874Welcome to this home where comfort and nature blend seamlessly. The living room offers a cozy fireplace, slate flooring, & a sliding door that opens to the first of two decks. Step outside and you’ll feel like you’re in a tree house, as this property backs to green space with mature trees and a creek, offering peaceful views and privacy.The well-appointed kitchen has granite countertops, an eating bar, and stainless steel appliances, and opens seamlessly to the dining area, perfect for entertaining or casual meals.Upstairs, the primary suite is a true retreat with double-door entry, a cathedral ceiling, walk-in closet, and an ensuite bathroom with double vanity. Two additional bedrooms, a full bathroom, and a conveniently located laundry room complete the second level.The lower level offers a spacious family room, storage closet, and access to the crawlspace for even more storage. A sliding door leads to the second deck, this one covered, where you can relax & enjoy nature year-round. There are also stairs down to the backyard and green space. Updates include a new roof and upper deck in 2025; primary shower remodel in 2024; and new kitchen appliances in 2023
Download our Mobile app