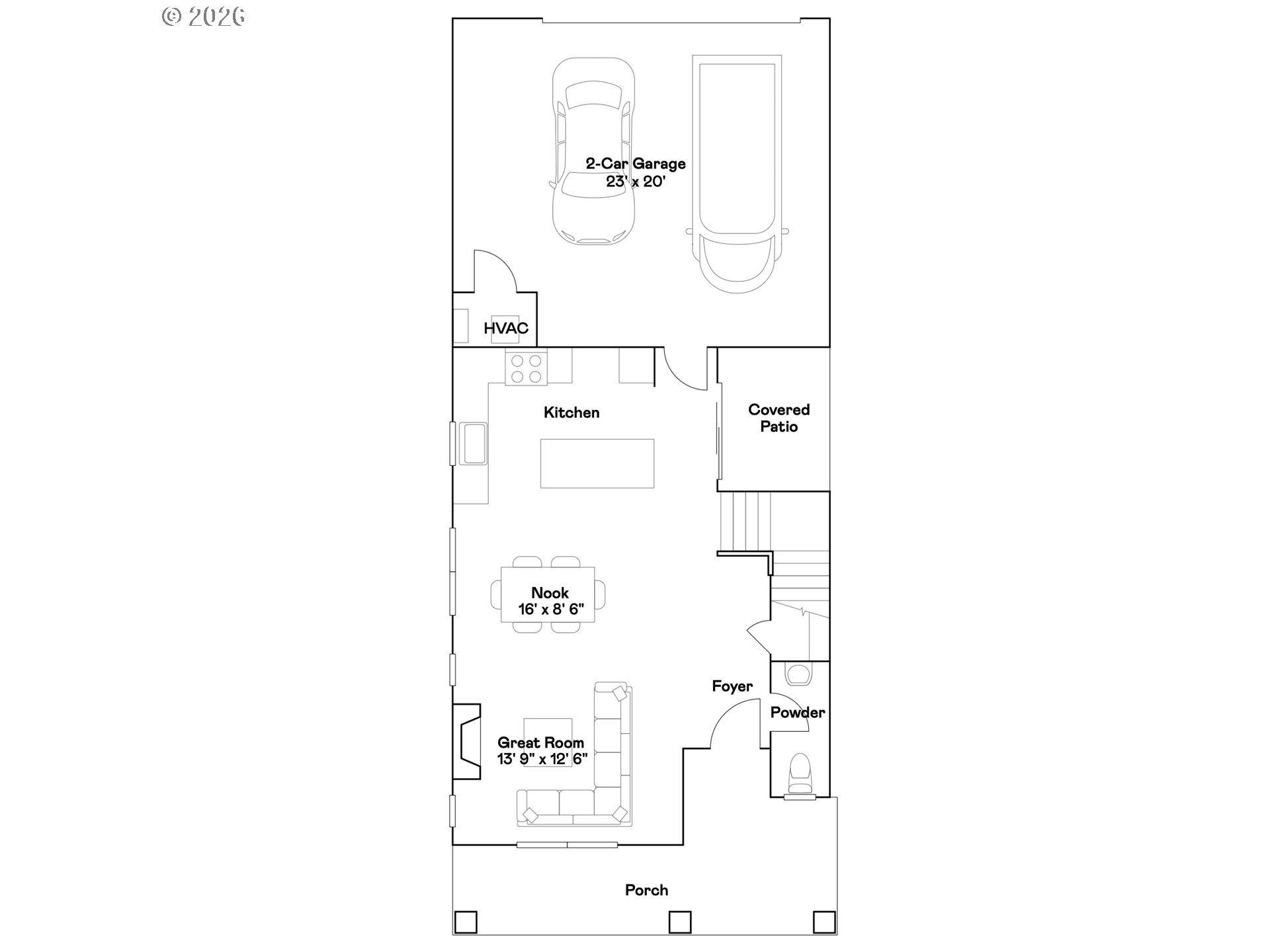
This new construction two-story home is located in a planned community with multiple parks, close to schools, shopping, dining, and freeway access. The main floor features an open concept design connecting the kitchen, living and dining areas, with a cozy fireplace in the great room creating a warm focal point. Upstairs, the Clark plan features 4 bedrooms, including a primary suite with an en-suite bathroom featuring a double vanity and walk-in closet. Interior highlights include quartz countertops, shaker-style cabinets, LVP (luxury vinyl plank) flooring in the entry, kitchen and Great Room, with LVT (luxury vinyl tile) flooring in the bathrooms. This home also includes central air conditioning, a refrigerator, washer and dryer, and blinds—all at no extra cost. Photos are of a similar home, but cabinet colors, counter tops & flooring are as shown. Homesite 142. Estimated completion: Summer 2026.
Listing Provided Courtesy of John Van Hogen, Lennar Sales Corp
General Information
621615089
SingleFamilyResidence
41
DOM
4
3049.2 SqFt
2.5
1814
2026
Washington
New Construction
Art Rutkin
Twality 5/10
Tualatin
Residential
SingleFamilyResidence
SOUTH RIVER TERRACE HOMESITE #142
Listing Provided Courtesy of John Van Hogen, Lennar Sales Corp
Krishna Realty data last checked: Apr 26, 2026 18:29 | Listing last modified Mar 16, 2026 16:10,
Source:
This new construction two-story home is located in a planned community with multiple parks, close to schools, shopping, dining, and freeway access. The main floor features an open concept design connecting the kitchen, living and dining areas, with a cozy fireplace in the great room creating a warm focal point. Upstairs, the Clark plan features 4 bedrooms, including a primary suite with an en-suite bathroom featuring a double vanity and walk-in closet. Interior highlights include quartz countertops, shaker-style cabinets, LVP (luxury vinyl plank) flooring in the entry, kitchen and Great Room, with LVT (luxury vinyl tile) flooring in the bathrooms. This home also includes central air conditioning, a refrigerator, washer and dryer, and blinds—all at no extra cost. Photos are of a similar home, but cabinet colors, counter tops & flooring are as shown. Homesite 142. Estimated completion: Summer 2026.