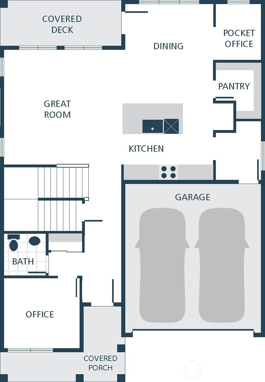
MOVE IN READY HOME $15,000 seller credit available. Introducing Williams Pointe, a new construction community thoughtfully designed to offer a comfortable balance of peaceful surroundings and everyday conveniences. The Prescott Plan on Lot 5 features 3,285 square feet of well-designed living space created to support a variety of lifestyles and daily needs. This inviting home includes standard features such as quartz countertops paired with stainless steel appliances, beautiful laminate hardwood flooring throughout the kitchen, dining area, and great room, and crisp white painted millwork with classic five-panel doors that add a clean and timeless finish. The open layout encourages connection while still allowing for functional separation of spaces, making it ideal for everyday living and entertaining. Large windows provide abundant natural light, enhancing the welcoming atmosphere throughout the home. Williams Pointe is ideally situated with easy access to scenic trails, well-maintained parks, and a wide range of retail and dining options, offering convenience without sacrificing comfort. Residents can enjoy nearby outdoor spaces along with quick connections to daily destinations. The benefits of NEW construction include a home warranty, energy-efficient features, lower maintenance living, updated safety elements, and modern design details that support comfort and long-term peace of mind. Williams Pointe presents an exceptional opportunity with flexible living space.
Listing Provided Courtesy of Ebrima Wadda, Windermere Real Estate/M2, LLC
General Information
NWM2456813
Single Family Residence
17
DOM
5
4051.08 SqFt
3.5
3285
2025
Snohomish
Sunnyside Elem
Buyer To Verify
Buyer To Verify
Residential
Single Family Residence
Listing Provided Courtesy of Ebrima Wadda, Windermere Real Estate/M2, LLC
Krishna Realty data last checked: Mar 17, 2026 00:27 | Listing last modified Mar 16, 2026 16:48,
Source:
Open House
Sat, Mar 21st, 10AM to 4PM
Mon, Mar 23rd, 12PM to 6PM
Fri, Mar 20th, 12PM to 6PM
Thu, Mar 19th, 12PM to 6PM
Wed, Mar 18th, 12PM to 6PM
Tue, Mar 17th, 12PM to 6PM
Mon, Mar 16th, 12PM to 6PM
Download our Mobile app
Residence Information
3285
5
3
1
3.5
Composition
18 - 2 Stories w/Bsmnt
2025
Daylight
Daylight
Poured Concrete
Features and Utilities
Dishwasher, Microwave, Stove(s)/Range(s)
Bath Off Primary, High Tech Cabling, Loft, Walk-In Closet(s)
Wood Products
Public
Sewer Connected
Financial
0
Cash, Conventional, FHA, VA Loan
11-21-2025
Comparable Information
17
17
Cash, Conventional, FHA, VA Loan
$859,990
$859,990
Mar 16, 2026 16:48
Schools
Elementary : Sunnyside ElemN/ARatings Middle : Buyer To Verify N/ARatings High : Buyer To VerifyN/ARatings
Map
Listing courtesy of Windermere Real Estate/M2, LLC.
MOVE IN READY HOME $15,000 seller credit available. Introducing Williams Pointe, a new construction community thoughtfully designed to offer a comfortable balance of peaceful surroundings and everyday conveniences. The Prescott Plan on Lot 5 features 3,285 square feet of well-designed living space created to support a variety of lifestyles and daily needs. This inviting home includes standard features such as quartz countertops paired with stainless steel appliances, beautiful laminate hardwood flooring throughout the kitchen, dining area, and great room, and crisp white painted millwork with classic five-panel doors that add a clean and timeless finish. The open layout encourages connection while still allowing for functional separation of spaces, making it ideal for everyday living and entertaining. Large windows provide abundant natural light, enhancing the welcoming atmosphere throughout the home. Williams Pointe is ideally situated with easy access to scenic trails, well-maintained parks, and a wide range of retail and dining options, offering convenience without sacrificing comfort. Residents can enjoy nearby outdoor spaces along with quick connections to daily destinations. The benefits of NEW construction include a home warranty, energy-efficient features, lower maintenance living, updated safety elements, and modern design details that support comfort and long-term peace of mind. Williams Pointe presents an exceptional opportunity with flexible living space.