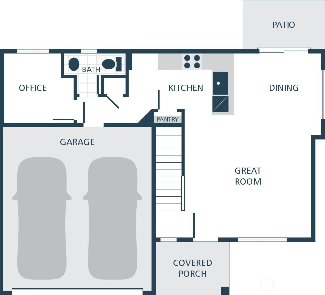
Introducing Williams Pointe, a new construction community thoughtfully designed to offer a comfortable blend of peaceful surroundings and everyday urban convenience. The Caroline Plan on Lot 30 features 1706 square feet living space with 3 bedrooms, 2.5 bathrooms a loft space and a designated office space. This well-planned home includes standard features such as quartz countertops paired with stainless steel appliances, beautiful laminate hardwood flooring throughout the kitchen, dining area, and great room, and crisp white painted millwork with classic five-panel doors that create a clean and timeless aesthetic. The open-concept main living area is designed for ease of movement and functionality, making it ideal for daily living and entertaining. Large windows allow natural light to fill the home, enhancing the bright and welcoming atmosphere throughout. Attention to detail and quality craftsmanship are evident in every space. Williams Pointe is ideally situated with convenient access to scenic trails, well-maintained parks, and a wide selection of shopping, dining, and everyday services, making both recreation and errands easily accessible. Enjoy the advantages of NEW construction, including a home warranty, energy-efficient features, lower maintenance living, updated safety elements, and modern design details that support long-term comfort and peace of mind.
Listing Provided Courtesy of Ebrima Wadda, Windermere Real Estate/M2, LLC
General Information
NWM2513177
Single Family Residence
0
DOM
3
6054.84 SqFt
2.5
1706
2026
Snohomish
Sunnycrest Elem
North Lake Mid
Lake Stevens Sn
Residential
Single Family Residence
Listing Provided Courtesy of Ebrima Wadda, Windermere Real Estate/M2, LLC
Krishna Realty data last checked: Apr 24, 2026 21:14 | Listing last modified Apr 24, 2026 22:12,
Source:
Download our Mobile app
Residence Information
1706
3
2
1
2.5
Composition
12 - 2 Story
2026
Unfinished
Unfinished
Poured Concrete
Features and Utilities
Dishwasher, Microwave, Stove(s)/Range(s)
Bath Off Primary, High Tech Cabling, Loft
Wood Products
Public
Sewer Connected
Financial
0
Cash, Conventional, FHA, VA Loan
04-24-2026
Comparable Information
0
0
Cash, Conventional, FHA, VA Loan
$684,990
$684,990
Apr 24, 2026 22:12
Schools
Elementary : Sunnycrest ElemN/ARatings Middle : North Lake Mid N/ARatings High : Lake Stevens SnN/ARatings
Map
Listing courtesy of Windermere Real Estate/M2, LLC.
Introducing Williams Pointe, a new construction community thoughtfully designed to offer a comfortable blend of peaceful surroundings and everyday urban convenience. The Caroline Plan on Lot 30 features 1706 square feet living space with 3 bedrooms, 2.5 bathrooms a loft space and a designated office space. This well-planned home includes standard features such as quartz countertops paired with stainless steel appliances, beautiful laminate hardwood flooring throughout the kitchen, dining area, and great room, and crisp white painted millwork with classic five-panel doors that create a clean and timeless aesthetic. The open-concept main living area is designed for ease of movement and functionality, making it ideal for daily living and entertaining. Large windows allow natural light to fill the home, enhancing the bright and welcoming atmosphere throughout. Attention to detail and quality craftsmanship are evident in every space. Williams Pointe is ideally situated with convenient access to scenic trails, well-maintained parks, and a wide selection of shopping, dining, and everyday services, making both recreation and errands easily accessible. Enjoy the advantages of NEW construction, including a home warranty, energy-efficient features, lower maintenance living, updated safety elements, and modern design details that support long-term comfort and peace of mind.