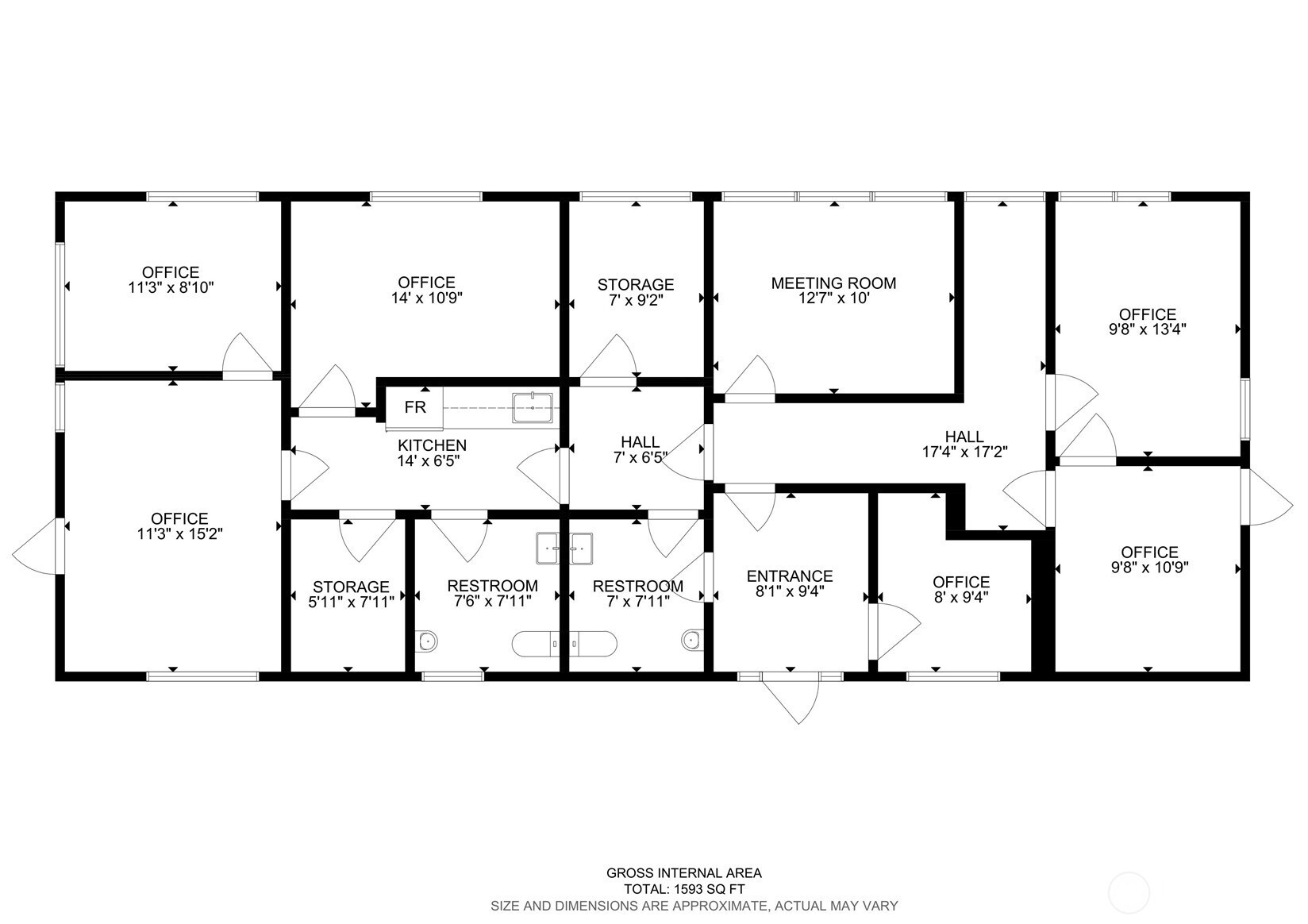
Two office spaces in one prime location! This low-maintenance, one-story building features 1,612 sq. ft, high ceilings, large windows & abundant natural light. Flexible zoning and a versatile layout make it ideal for a wide range of businesses—operate in one suite and rent the other. Currently divided into two units: Suite A offers an exterior entrance, 2 offices, a bathroom, conference room, storage, and shared kitchen. Suite B is larger with 2 exterior entrances, 3 offices, lobby, conference room, bathroom, storage, and shared kitchen. Located in DT Mount Vernon, it boasts 128 ft of street frontage, strong visibility, walkable amenities, a metal roof, A/C, and a large level parking lot with 3 access points. An incredible opportunity!
Listing Provided Courtesy of John Weston, Magnify Realty
General Information
NWM2439582
Commercial Industrial
97
DOM
0.32 acres
0
1958
Busines
Skagit
Commercial Sale
Commercial Industrial
Listing Provided Courtesy of John Weston, Magnify Realty
Krishna Realty data last checked: Mar 16, 2026 07:59 | Listing last modified Jan 07, 2026 01:04,
Source:
Two office spaces in one prime location! This low-maintenance, one-story building features 1,612 sq. ft, high ceilings, large windows & abundant natural light. Flexible zoning and a versatile layout make it ideal for a wide range of businesses—operate in one suite and rent the other. Currently divided into two units: Suite A offers an exterior entrance, 2 offices, a bathroom, conference room, storage, and shared kitchen. Suite B is larger with 2 exterior entrances, 3 offices, lobby, conference room, bathroom, storage, and shared kitchen. Located in DT Mount Vernon, it boasts 128 ft of street frontage, strong visibility, walkable amenities, a metal roof, A/C, and a large level parking lot with 3 access points. An incredible opportunity!