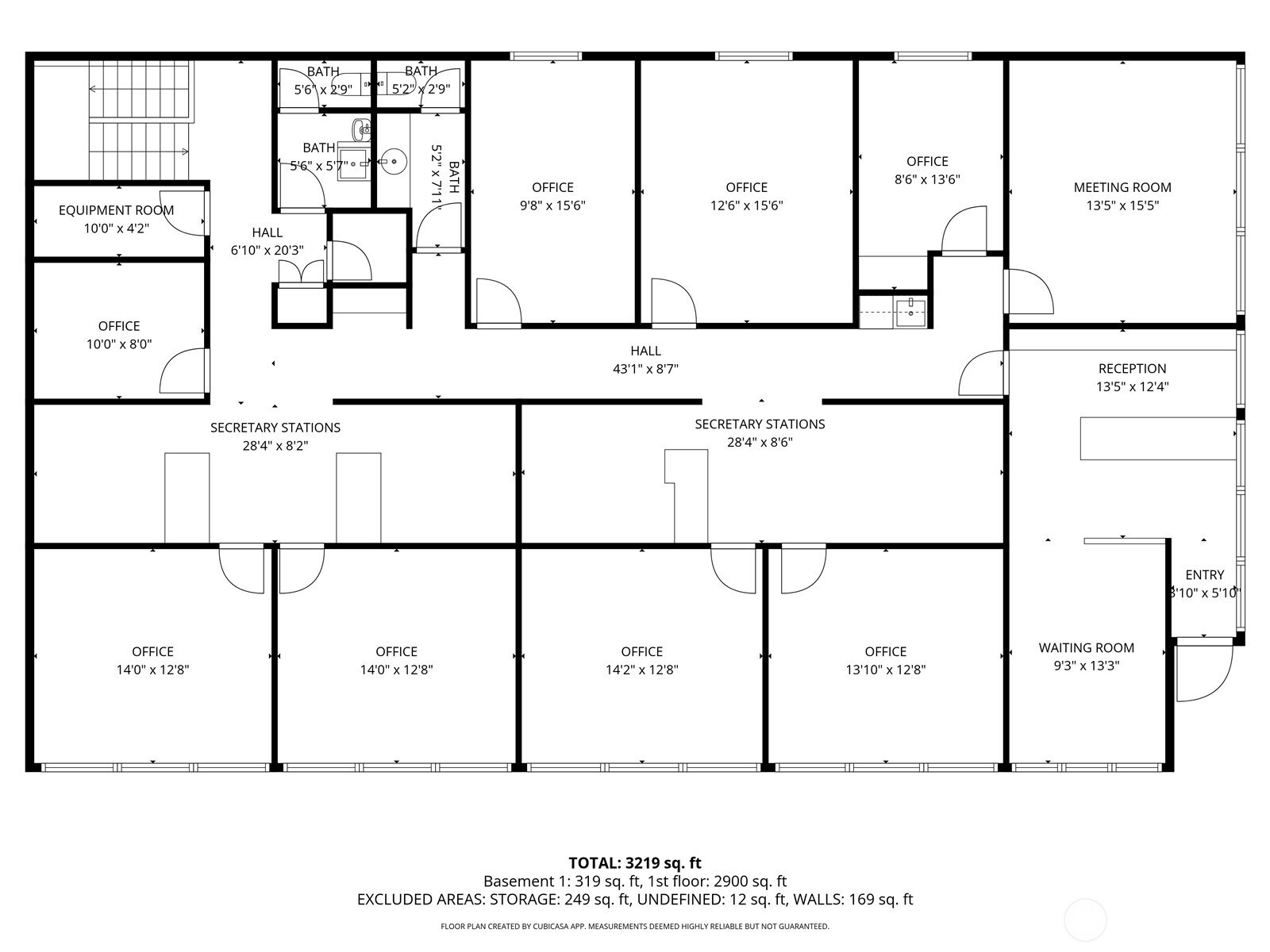
Downtown Mount Vernon Office | Leased | Covered Parking | Future Redevelopment Well-located office building in the heart of downtown Mount Vernon, offering 2,961 SF of professional office space on a 6,068 SF lot, zoned Central Business (C-1A). Currently occupied by established law Firms, providing in-place income. The property includes approximately 3,096 SF of parking, a rare asset in the downtown core, and enjoys excellent visibility with scenic views of the Skagit River waterfront. The layout is well-suited for continued professional office use. Located within the downtown waterfront influence area, this site benefits from proximity to the Riverwalk Promenade, public parks, dining, and civic amenities. C-1A zoning allows for a wide range of commercial and mixed-use opportunities, aligning with the City’s long-term vision for increased density and river-oriented redevelopment. An attractive opportunity for investors seeking stable income today with future upside potential.
Listing Provided Courtesy of Jared Fraser, SPIRE ONE Realty
General Information
NWM2477083
Commercial Industrial
77
DOM
6067.91 SqFt
0
1976
Busines
Skagit
Commercial Sale
Commercial Industrial
Listing Provided Courtesy of Jared Fraser, SPIRE ONE Realty
Krishna Realty data last checked: Apr 26, 2026 23:13 | Listing last modified Apr 23, 2026 16:01,
Source:
Downtown Mount Vernon Office | Leased | Covered Parking | Future Redevelopment Well-located office building in the heart of downtown Mount Vernon, offering 2,961 SF of professional office space on a 6,068 SF lot, zoned Central Business (C-1A). Currently occupied by established law Firms, providing in-place income. The property includes approximately 3,096 SF of parking, a rare asset in the downtown core, and enjoys excellent visibility with scenic views of the Skagit River waterfront. The layout is well-suited for continued professional office use. Located within the downtown waterfront influence area, this site benefits from proximity to the Riverwalk Promenade, public parks, dining, and civic amenities. C-1A zoning allows for a wide range of commercial and mixed-use opportunities, aligning with the City’s long-term vision for increased density and river-oriented redevelopment. An attractive opportunity for investors seeking stable income today with future upside potential.