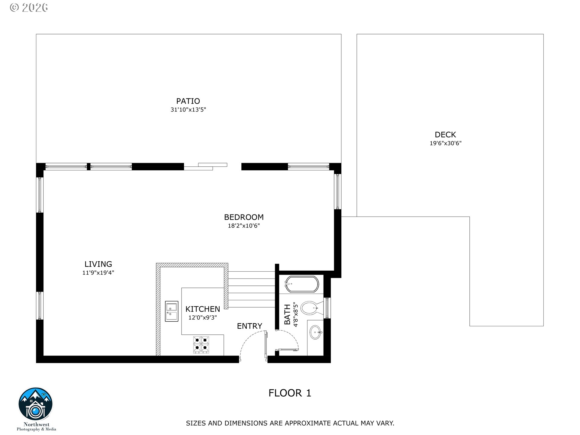
Secluded rural fixer opportunity on 35 acres of merchantable timber with expansive views. The existing home features a vaulted living area, simple studio layout, and covered deck overlooking the surrounding forested landscape, but will require significant rehabilitation. Well and septic systems are currently will require repairs in order to properly function and the property is not considered habitable in its present condition. Ideal for investors, contractors, or experienced DIY buyers looking for a project property, recreation retreat, or long-term land hold with improvement potential. This property has a strong foundation for future use, subject to buyer due diligence.
Listing Provided Courtesy of Isaac Judd, Hearthstone Real Estate
General Information
220888599
SingleFamilyResidence
1
DOM
1
5 acres
1
600
1996
F2
Lane
1417474
Twin Oaks 4/10
Kennedy 5/10
Churchill
Residential
SingleFamilyResidence
TL 00501
Listing Provided Courtesy of Isaac Judd, Hearthstone Real Estate
Krishna Realty data last checked: Mar 04, 2026 20:18 | Listing last modified Mar 03, 2026 13:51,
Source:
Secluded rural fixer opportunity on 35 acres of merchantable timber with expansive views. The existing home features a vaulted living area, simple studio layout, and covered deck overlooking the surrounding forested landscape, but will require significant rehabilitation. Well and septic systems are currently will require repairs in order to properly function and the property is not considered habitable in its present condition. Ideal for investors, contractors, or experienced DIY buyers looking for a project property, recreation retreat, or long-term land hold with improvement potential. This property has a strong foundation for future use, subject to buyer due diligence.