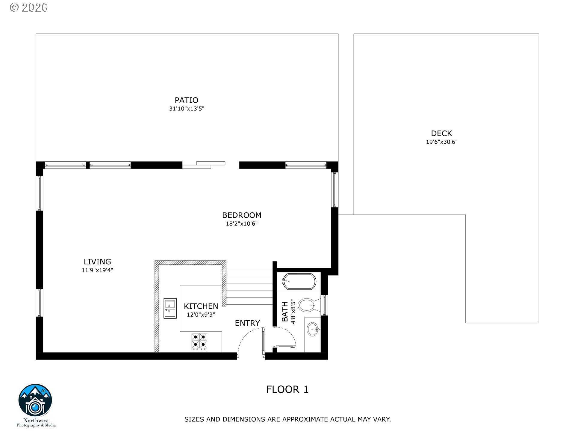
Secluded rural fixer opportunity on 35 acres of merchantable timber with expansive views. The existing home features a vaulted living area, simple studio layout, and covered deck overlooking the surrounding forested landscape, but will require significant rehabilitation. Well and septic systems are currently non-functional. Ideal for investors, contractors, or experienced DIY buyers looking for a project property, recreation retreat, or long-term land hold with improvement potential. This property has a strong foundation for future use, subject to buyer due diligence.
Listing Provided Courtesy of Isaac Judd, Hearthstone Real Estate
General Information
714230485
SingleFamilyResidence
1
DOM
35.84 acres
F2
Lane
1417474
Twin Oaks 4/10
Kennedy 5/10
Churchill
Land
SingleFamilyResidence
TL 00501
Listing Provided Courtesy of Isaac Judd, Hearthstone Real Estate
Krishna Realty data last checked: Mar 04, 2026 06:00 | Listing last modified Mar 03, 2026 15:18,
Source:
Download our Mobile app
Residence Information
No
Features and Utilities
Financial
1288.04
0
Cash
03-03-2026
No
No
Comparable Information
1
1
Cash
$350,000
$350,000
Mar 03, 2026 15:18
Schools
public Elementary : Twin Oaks
4/10Ratingspublic Middle : Kennedy
5/10Ratingspublic High : ChurchillN/ARatings
Secluded rural fixer opportunity on 35 acres of merchantable timber with expansive views. The existing home features a vaulted living area, simple studio layout, and covered deck overlooking the surrounding forested landscape, but will require significant rehabilitation. Well and septic systems are currently non-functional. Ideal for investors, contractors, or experienced DIY buyers looking for a project property, recreation retreat, or long-term land hold with improvement potential. This property has a strong foundation for future use, subject to buyer due diligence.