St Helens, 97051
4 Bed
2 Bath
1424 SqFt
1 DOM
Built: 1940
$415,000
$415000
4 Bed
2 Bath
1424 SqFt
1 DOM
Built: 1940
Principal Broker
(503) 893-8874Welcome home! Covered front porch welcomes you to a completely updated home, including new roof and siding in 2019. Wonderful granite countertops & SS upgraded appliances in kitchen, including new Cafe double oven. Open floor plan. Owner's bedroom and additional bedroom/office on main. All new fixtures throughout. Large lot with porch to back yard. Also includes extra "she shed" or mancave which is detached. Wonderful corner lot with room for rv and toys.
Listing Provided Courtesy of Theresa Muth, MORE Realty
138439726
SingleFamilyResidence
1 DOM
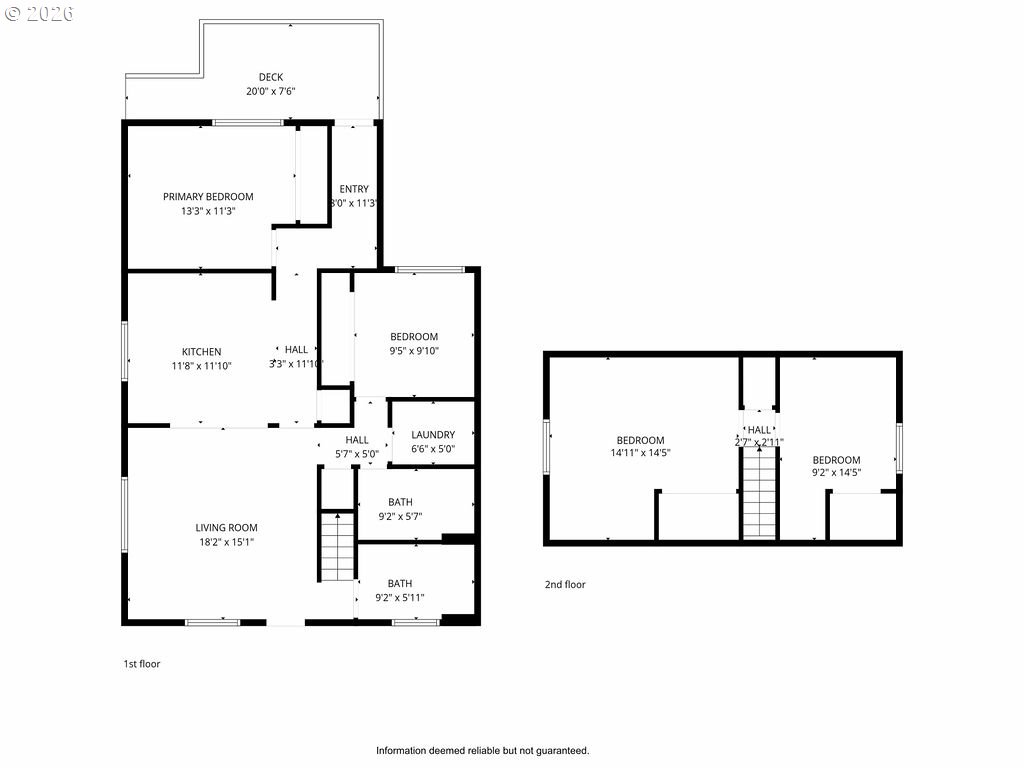
4
5662.8 SqFt
2
1424
1940
Columbia
11256
McBride 2/10
St Helens 4/10
St Helens 4/10
Residential
SingleFamilyResidence
ST HELENS E 1/2 LOT: 5 BLOCK: 86
Listing Provided Courtesy of Theresa Muth, MORE Realty
Krishna Realty data last checked: Mar 19, 2026 05:18 | Listing last modified Mar 18, 2026 10:57,
Source:
Download our Mobile app
400
1024
0
1424
tax record
1424
4
2
0
2
Composition
Stories2
RVAccessParking
2
1940
No
WoodSiding
CrawlSpace
RVParking
CrawlSpace
VinylFrames
Dishwasher, DoubleOven, FreeStandingRange, FreeStandingRefrigerator, Island, Microwave, StainlessSteelAppl
Granite, Laundry, TileFloor, WalltoWallCarpet
CoveredPatio, Deck, Fenced, Porch, RVParking, ToolShed, Workshop, Yard
Electricity
Zoned
PublicSewer
Electricity
Electricity
2529.4
0
Cash,Conventional,FHA,VALoan
03-18-2026
No
No
1
1
Cash,Conventional,FHA,VALoan
$415,000
$415,000
Mar 18, 2026 10:57
Listing courtesy of MORE Realty.
The content relating to real estate for sale on this site comes in part from the IDX program of the RMLS of Portland, Oregon.
Real Estate listings held by brokerage firms other than this firm are marked with the RMLS logo, and
detailed information about these properties include the name of the listing's broker.
Listing content is copyright © 2019 RMLS of Portland, Oregon.
All information provided is deemed reliable but is not guaranteed and should be independently verified.
Krishna Realty data last checked: Mar 19, 2026 05:18 | Listing last modified Mar 18, 2026 10:57.
Some properties which appear for sale on this web site may subsequently have sold or may no longer be available.
Principal Broker
(503) 893-8874Welcome home! Covered front porch welcomes you to a completely updated home, including new roof and siding in 2019. Wonderful granite countertops & SS upgraded appliances in kitchen, including new Cafe double oven. Open floor plan. Owner's bedroom and additional bedroom/office on main. All new fixtures throughout. Large lot with porch to back yard. Also includes extra "she shed" or mancave which is detached. Wonderful corner lot with room for rv and toys.
Download our Mobile app