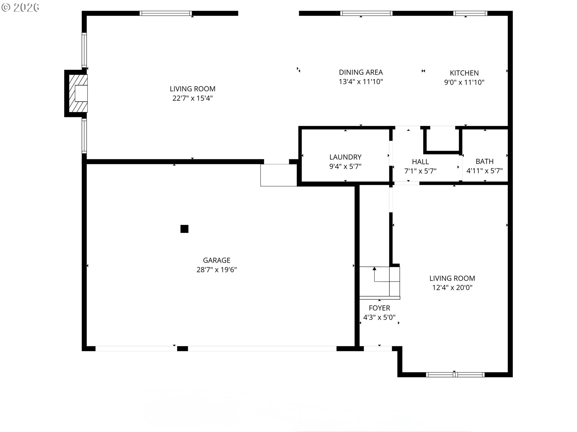
Beautifully maintained 4-bed, 3-bath home on a spacious corner lot in a quiet, desirable neighborhood close to schools, shopping, and downtown. Features include wood floors throughout, a large living room with tall ceilings, and updated half bath and laundry room on the main. The kitchen offers granite countertops, stainless steel appliances, peninsula island, and abundant pantry storage. The adjoining family room includes a cozy wood-burning fireplace and great natural light. Upstairs you'll find a very spacious primary suite with vaulted ceilings, fireplace, sitting/office nook, walk-in closet, and a large en suite with double vanity, soaking tub, and separate shower. Three additional bedrooms and an oversized full bath complete the upper level. Outside, enjoy a large covered patio, garden beds, two newer tool sheds, fenced dog run, and expansive yard. Additional highlights include a 3-car garage and large flat driveway, with RV parking and hook-ups. New roof (2017), and all new Hardie Plank siding with exterior paint (2018) provide peace of mind for years to come. This wonderful home in a fantastic location could be yours, schedule your showing today!
Listing Provided Courtesy of Morgan Lemen, Coldwell Banker Professional
General Information
495610916
SingleFamilyResidence
29
DOM
4
6969.6 SqFt
2.5
2348
1997
Columbia
10384
Lewis & Clark 5/10
St Helens 4/10
St Helens 4/10
Residential
SingleFamilyResidence
CARSON MEADOWS PHASE 2 LOT: 29
Listing Provided Courtesy of Morgan Lemen, Coldwell Banker Professional
Krishna Realty data last checked: Apr 28, 2026 19:39 | Listing last modified Apr 16, 2026 17:21,
Source:
Beautifully maintained 4-bed, 3-bath home on a spacious corner lot in a quiet, desirable neighborhood close to schools, shopping, and downtown. Features include wood floors throughout, a large living room with tall ceilings, and updated half bath and laundry room on the main. The kitchen offers granite countertops, stainless steel appliances, peninsula island, and abundant pantry storage. The adjoining family room includes a cozy wood-burning fireplace and great natural light. Upstairs you'll find a very spacious primary suite with vaulted ceilings, fireplace, sitting/office nook, walk-in closet, and a large en suite with double vanity, soaking tub, and separate shower. Three additional bedrooms and an oversized full bath complete the upper level. Outside, enjoy a large covered patio, garden beds, two newer tool sheds, fenced dog run, and expansive yard. Additional highlights include a 3-car garage and large flat driveway, with RV parking and hook-ups. New roof (2017), and all new Hardie Plank siding with exterior paint (2018) provide peace of mind for years to come. This wonderful home in a fantastic location could be yours, schedule your showing today!