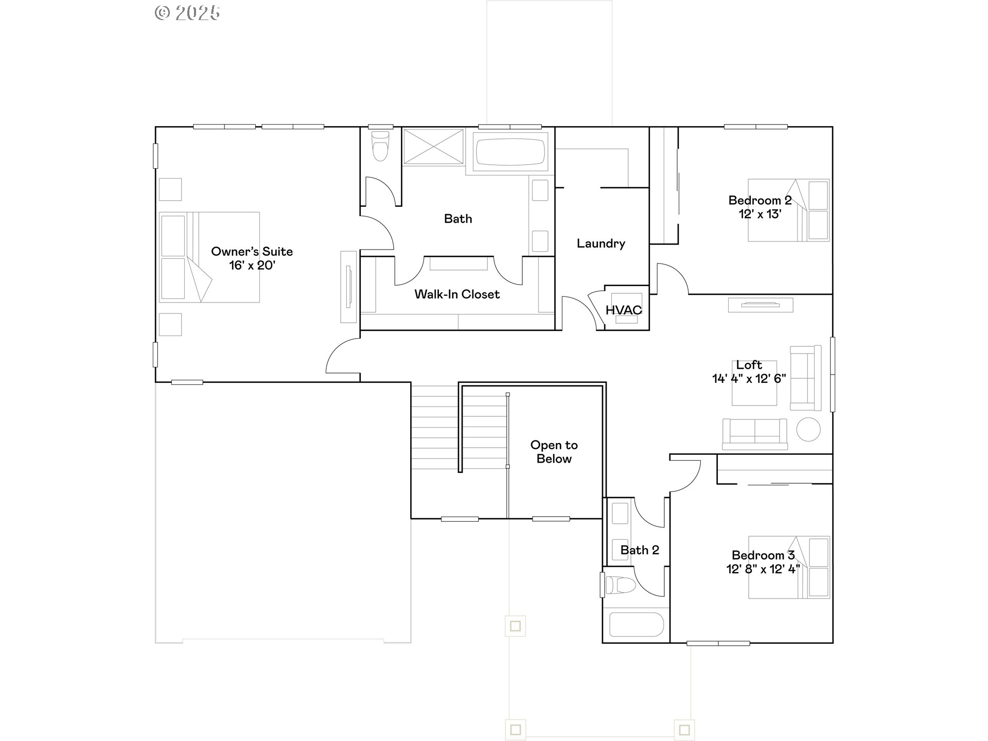
This new construction Creston home in Salmon Creek Ridge is conveniently located 10 minutes from I-5 and less than 15 minutes from Costco. The first floor includes a bedroom and bath, a mudroom off the garage, and a great room with a fireplace that flows into the kitchen and dining area. Upstairs, three bedrooms and a loft connect to the primary suite with dual walk-in closets and a soaking tub. White cabinets, quartz countertops, and a vertical tile backsplash complement the kitchen. LVP flooring runs through the entry and kitchen, and LVT covers baths and laundry. The primary bath includes a tiled shower and separate tub. Wooden shelving, landscaping, and fencing are included. Central air conditioning, a refrigerator, washer and dryer, and blinds are included. Located on homesite 23, this home is move in ready. Rendering is artist conception only. Photos are of a similar home, features and finishes will vary.
Listing Provided Courtesy of Melinda Shoote, Lennar Sales Corp
General Information
515001262
SingleFamilyResidence
3
DOM
4
9147.6 SqFt
3
3058
2024
Clark
986067588
Pleasant Valley
Pleasant Valley
Prairie
Residential
SingleFamilyResidence
SALMON CREEK RIDGE LOT 23 312312 FOR ASSESSOR USE ONLY SALMON CRE
Listing Provided Courtesy of Melinda Shoote, Lennar Sales Corp
Krishna Realty data last checked: Dec 05, 2025 08:52 | Listing last modified Dec 04, 2025 12:20,
Source:
This new construction Creston home in Salmon Creek Ridge is conveniently located 10 minutes from I-5 and less than 15 minutes from Costco. The first floor includes a bedroom and bath, a mudroom off the garage, and a great room with a fireplace that flows into the kitchen and dining area. Upstairs, three bedrooms and a loft connect to the primary suite with dual walk-in closets and a soaking tub. White cabinets, quartz countertops, and a vertical tile backsplash complement the kitchen. LVP flooring runs through the entry and kitchen, and LVT covers baths and laundry. The primary bath includes a tiled shower and separate tub. Wooden shelving, landscaping, and fencing are included. Central air conditioning, a refrigerator, washer and dryer, and blinds are included. Located on homesite 23, this home is move in ready. Rendering is artist conception only. Photos are of a similar home, features and finishes will vary.