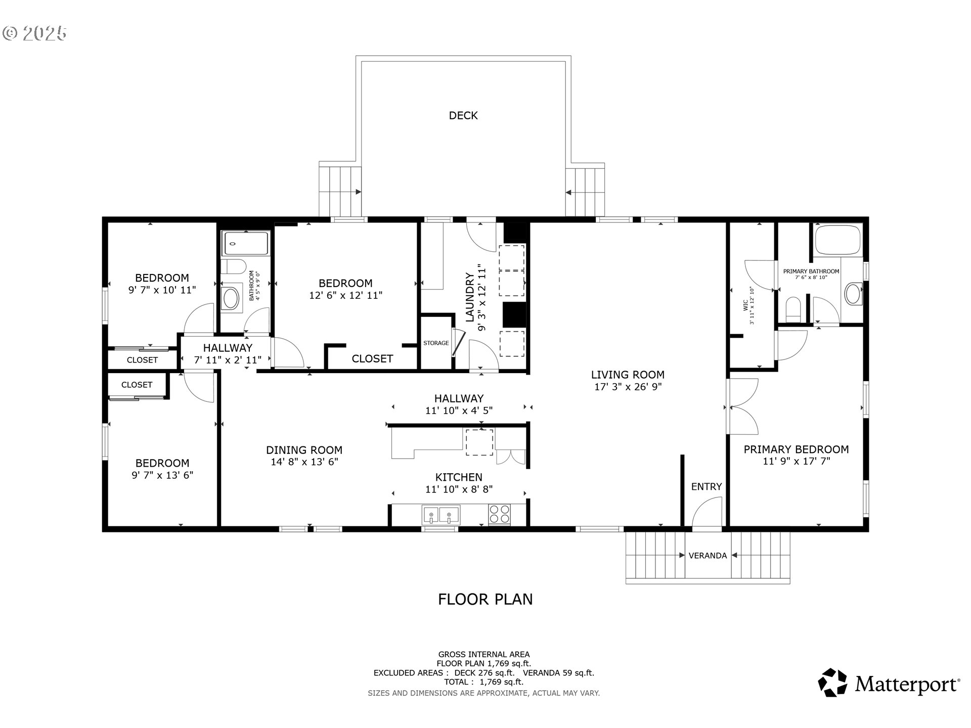
Updated 4-Bedroom Manufactured Home with Low Space Rent – Nearly 1,800 Sq. Ft. Enjoy comfort and value in this spacious 4-bedroom, 2-bath double-wide manufactured home offering just under 1,800 sq. ft. of living space. Recently refreshed with a host of upgrades, this home is move-in ready and designed for worry-free living. Recent improvements include a new roof, new water heater, new washer and dryer, and new flooring throughout. Additional updates feature energy-efficient double-pane windows, new toilets, tile shower in 2025 along with upgraded electrical for added peace of mind. Call or text for details on space rent.**Financing available!**
Listing Provided Courtesy of Mia McCormick, Redfin
General Information
521586730
ManufacturedHomeinPark
94
DOM
4
2
1782
1989
Clackamas
01376040
Bilquist
Alder Creek
Putnam
Residential
ManufacturedHomeinPark
22E09CC03000
Listing Provided Courtesy of Mia McCormick, Redfin
Krishna Realty data last checked: Nov 24, 2025 22:18 | Listing last modified Nov 17, 2025 09:13,
Source:
Updated 4-Bedroom Manufactured Home with Low Space Rent – Nearly 1,800 Sq. Ft. Enjoy comfort and value in this spacious 4-bedroom, 2-bath double-wide manufactured home offering just under 1,800 sq. ft. of living space. Recently refreshed with a host of upgrades, this home is move-in ready and designed for worry-free living. Recent improvements include a new roof, new water heater, new washer and dryer, and new flooring throughout. Additional updates feature energy-efficient double-pane windows, new toilets, tile shower in 2025 along with upgraded electrical for added peace of mind. Call or text for details on space rent.**Financing available!**