Clackamas, 97015
2 Bed
2 Bath
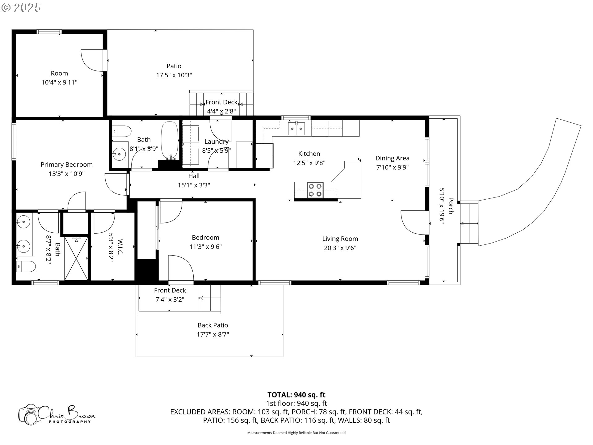
1188 SqFt
102 DOM
Built: 2005
$115,000
Price cut: $4.9K (02-03-2026)
$115000
Price cut: $4.9K (02-03-2026)
2 Bed
2 Bath
1188 SqFt
102 DOM
Built: 2005
Principal Broker
(503) 893-8874Back on Market at no fault of the home! Quaint and private manufactured home located in the highly sought-after Shadowbrook Mobile Home Park, a 55+ community known for its peaceful atmosphere. Residents enjoy access to a serene setting with a community clubhouse and pool. This charming home features an exterior door from the second bedroom leading to a lovely side yard with a concrete patio & porch - perfect for relaxing or entertaining. The spacious, fully fenced back yard offers plenty of room for raised garden beds or a new lawn. All 3 porches and railings are newly painted along with the outside baseboards. A covered carport provides parking for two vehicles and includes an attached storage/tool shed for added convenience. Fresh interior paint, brand-new carpet throughout, vaulted ceilings, skylights, and ceiling fans enhance the home’s comfort and appeal. Large windows throughout bring in the sunshine. All appliances, including the washer, dryer and refrigerator are included—making this home move-in ready!
Listing Provided Courtesy of Daniel Teune, John L. Scott Sandy
239572385
ManufacturedHomeinPark
102 DOM
2
2
1188
2005
Clackamas
04000937
Duncan 4/10
Happy Valley
Clackamas 3/10
Residential
ManufacturedHomeinPark
22E11D 00300
Listing Provided Courtesy of Daniel Teune, John L. Scott Sandy
Krishna Realty data last checked: Mar 16, 2026 07:35 | Listing last modified Mar 04, 2026 16:53,
Source:
Download our Mobile app
0
1188
0
1188
seller
1188
2
2
0
2
Composition
Carport, ExtraDeep
Stories1,DoubleWideManufactured
Carport
1
2005
No
WoodSiding
LapPool, Management, P
Dishwasher, FreeStandingRange, FreeStandingRefrigerator, Microwave
CeilingFan, VaultedCeiling, WalltoWallCarpet
Fenced, Porch, ToolShed, Yard
CentralAir
Electricity
ForcedAir
PublicSewer
Electricity
Electricity
696.51
0
Cash,Conventional
11-23-2025
No
No
102
113
Cash,Conventional
$119,900
$115,000
Mar 04, 2026 16:53
Listing courtesy of John L. Scott Sandy.
The content relating to real estate for sale on this site comes in part from the IDX program of the RMLS of Portland, Oregon.
Real Estate listings held by brokerage firms other than this firm are marked with the RMLS logo, and
detailed information about these properties include the name of the listing's broker.
Listing content is copyright © 2019 RMLS of Portland, Oregon.
All information provided is deemed reliable but is not guaranteed and should be independently verified.
Krishna Realty data last checked: Mar 16, 2026 07:35 | Listing last modified Mar 04, 2026 16:53.
Some properties which appear for sale on this web site may subsequently have sold or may no longer be available.
Principal Broker
(503) 893-8874Back on Market at no fault of the home! Quaint and private manufactured home located in the highly sought-after Shadowbrook Mobile Home Park, a 55+ community known for its peaceful atmosphere. Residents enjoy access to a serene setting with a community clubhouse and pool. This charming home features an exterior door from the second bedroom leading to a lovely side yard with a concrete patio & porch - perfect for relaxing or entertaining. The spacious, fully fenced back yard offers plenty of room for raised garden beds or a new lawn. All 3 porches and railings are newly painted along with the outside baseboards. A covered carport provides parking for two vehicles and includes an attached storage/tool shed for added convenience. Fresh interior paint, brand-new carpet throughout, vaulted ceilings, skylights, and ceiling fans enhance the home’s comfort and appeal. Large windows throughout bring in the sunshine. All appliances, including the washer, dryer and refrigerator are included—making this home move-in ready!
Download our Mobile app