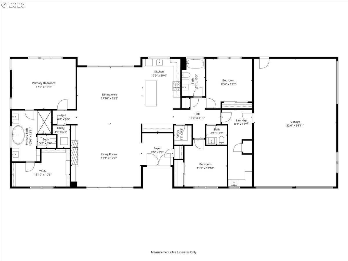
Welcome to this stunning single-level Mascord “Tiffany” plan, newly built by streets of dreams builder, Del Boca Vista. This home is perfectly sited on 4 usable acres in the heart of Oregon wine country. Located on SE Eola Hills Road in Amity, this designer home blends timeless architecture with modern finishes and thoughtful details throughout.The 2,310 sq ft floor plan offers effortless main-level living with soaring ceilings, wide hallways, and an open concept great room that seamlessly connects to the covered outdoor living area—ideal for entertaining year-round. The chef’s kitchen features a large quartz-topped island, custom cabinetry, walk-in pantry, and high-end appliances.The split bedroom design ensures privacy, with a luxurious primary suite boasting a spa-like bath, walk-in shower, soaking tub, and expansive closet. Designer lighting, white oak flooring, and curated finishes give the home a refined yet welcoming feel.The oversized 3-car garage with shop space is perfect for hobbyists or extra storage. Outdoors, you’ll enjoy room for gardens, animals, or simply soaking in the sweeping views of rolling hills and vineyards that define this sought-after location.All this just minutes to Amity, McMinnville, and Newberg, with quick access to renowned wineries, farm-to-table dining, and the charm of Oregon wine country. A rare opportunity to own a brand-new custom home on acreage in one of the Valley’s most desirable settings.
Listing Provided Courtesy of Chandler Willcuts, Willcuts Company Real Estate
General Information
774582437
SingleFamilyResidence
74
DOM
3
4.12 acres
2.5
2310
2025
AF
Yamhill
New Construction
Amity 4/10
Amity 4/10
Amity 4/10
Residential
SingleFamilyResidence
LOT 2 EOLA
Listing Provided Courtesy of Chandler Willcuts, Willcuts Company Real Estate
Krishna Realty data last checked: Dec 31, 2025 22:08 | Listing last modified Dec 12, 2025 11:57,
Source:
Download our Mobile app
Residence Information
0
2310
0
2310
PLAN
2310
1/Gas
3
2
1
2.5
Composition
3, Attached, Oversized
Stories1
1
2025
No
CementSiding
CrawlSpace
CrawlSpace
ConcretePerimeter
Features and Utilities
CentralAir
Electricity
ForcedAir
SepticTank
Electricity
Electricity
Financial
0
0
Cash,Conventional
09-29-2025
No
No
Comparable Information
74
93
Cash,Conventional
$1,150,000
$1,049,900
Dec 12, 2025 11:57
Schools
public Elementary : Amity
4/10Ratingspublic Middle : Amity
4/10Ratingspublic High : Amity
4/10Ratings
Welcome to this stunning single-level Mascord “Tiffany” plan, newly built by streets of dreams builder, Del Boca Vista. This home is perfectly sited on 4 usable acres in the heart of Oregon wine country. Located on SE Eola Hills Road in Amity, this designer home blends timeless architecture with modern finishes and thoughtful details throughout.The 2,310 sq ft floor plan offers effortless main-level living with soaring ceilings, wide hallways, and an open concept great room that seamlessly connects to the covered outdoor living area—ideal for entertaining year-round. The chef’s kitchen features a large quartz-topped island, custom cabinetry, walk-in pantry, and high-end appliances.The split bedroom design ensures privacy, with a luxurious primary suite boasting a spa-like bath, walk-in shower, soaking tub, and expansive closet. Designer lighting, white oak flooring, and curated finishes give the home a refined yet welcoming feel.The oversized 3-car garage with shop space is perfect for hobbyists or extra storage. Outdoors, you’ll enjoy room for gardens, animals, or simply soaking in the sweeping views of rolling hills and vineyards that define this sought-after location.All this just minutes to Amity, McMinnville, and Newberg, with quick access to renowned wineries, farm-to-table dining, and the charm of Oregon wine country. A rare opportunity to own a brand-new custom home on acreage in one of the Valley’s most desirable settings.