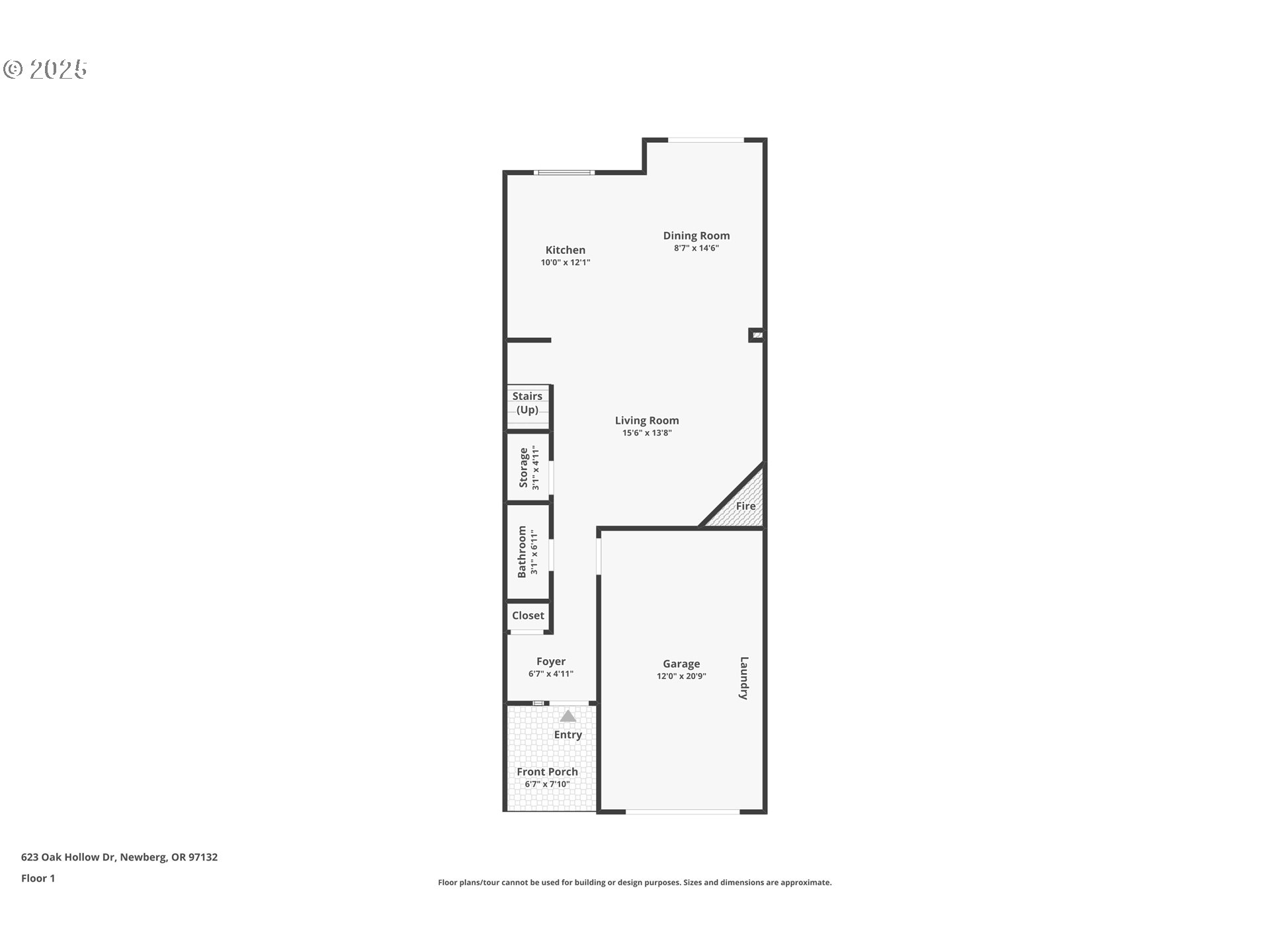
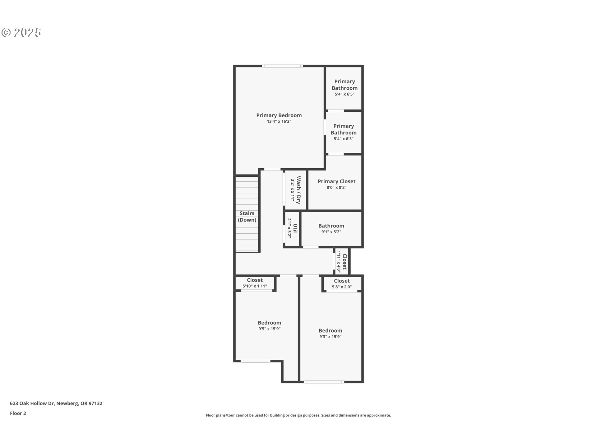
Enjoy the best of wine country and come home to this sweet townhome tucked into a peaceful neighborhood and backing to a park. This well-maintained townhome offers 1,543 sq ft of peaceful living and is located within walking distance to Fred Meyer and other shops, restaurants and amenities in Newberg, one of the Willamette Valley’s most charming communities. Inside, you’ll find 9’ tall ceilings on the main level, a natural flow between rooms, great natural light and newer flooring throughout. The kitchen features new stainless steel appliances including a French-door refrigerator with a flexible third drawer, and a convenient layout that connects easily to the dining room and living room. A slider off the dining area leads to the private backyard and patio. The surprisingly spacious 20' x 24' fenced backyard is perfect for pets, play, gardening, or summer evenings outside, overlooking White Oak Park. The living room is warm and inviting with a gas fireplace, tile surround, mantel, and durable LVP flooring. Upstairs, new carpet runs throughout, including the generously sized primary suite, with views of oak trees in the park. The suite features recessed ceiling, big walk-in closet, and an attached bath with dual sinks, and a separate WC with tub/shower combo. Two additional bedrooms—one with built-in shelves—offer great flexibility for guests, office, or hobbies. The hall bath includes a new floor-to-ceiling tub/shower combo, and the laundry closet comes with LG front-load washer & dryer.This is one you don’t want to miss!
Listing Provided Courtesy of Julie Williams, ELEETE Real Estate
General Information
160499421
Attached
1
DOM
3
1742.4 SqFt
2.5
1543
2005
Yamhill
530512
Mabel Rush 5/10
Mountain View 6/10
Newberg 4/10
Residential
Attached
TOWNSHIP 3S RANGE 2W SECTION 16 QTR C QQTR D TAXLOT 08300 LOT 264
Listing Provided Courtesy of Julie Williams, ELEETE Real Estate
Krishna Realty data last checked: Nov 15, 2025 05:05 | Listing last modified Nov 14, 2025 10:43,
Source:
Open House
Sun, Nov 16th, 1PM to 3PM
Download our Mobile app
Residence Information
905
638
0
1543
trio
1543
1/Gas
3
2
1
2.5
Composition
1, Attached
Townhouse,Traditional
Driveway,OffStreet
2
2005
No
Brick, CementSiding
DoublePaneWindows,Vi
ExteriorMaintenance,
Features and Utilities
Fireplace
Dishwasher, FreeStandingRange, FreeStandingRefrigerator, Island, Microwave, StainlessSteelAppliance, Tile
Enjoy the best of wine country and come home to this sweet townhome tucked into a peaceful neighborhood and backing to a park. This well-maintained townhome offers 1,543 sq ft of peaceful living and is located within walking distance to Fred Meyer and other shops, restaurants and amenities in Newberg, one of the Willamette Valley’s most charming communities. Inside, you’ll find 9’ tall ceilings on the main level, a natural flow between rooms, great natural light and newer flooring throughout. The kitchen features new stainless steel appliances including a French-door refrigerator with a flexible third drawer, and a convenient layout that connects easily to the dining room and living room. A slider off the dining area leads to the private backyard and patio. The surprisingly spacious 20' x 24' fenced backyard is perfect for pets, play, gardening, or summer evenings outside, overlooking White Oak Park. The living room is warm and inviting with a gas fireplace, tile surround, mantel, and durable LVP flooring. Upstairs, new carpet runs throughout, including the generously sized primary suite, with views of oak trees in the park. The suite features recessed ceiling, big walk-in closet, and an attached bath with dual sinks, and a separate WC with tub/shower combo. Two additional bedrooms—one with built-in shelves—offer great flexibility for guests, office, or hobbies. The hall bath includes a new floor-to-ceiling tub/shower combo, and the laundry closet comes with LG front-load washer & dryer.This is one you don’t want to miss!