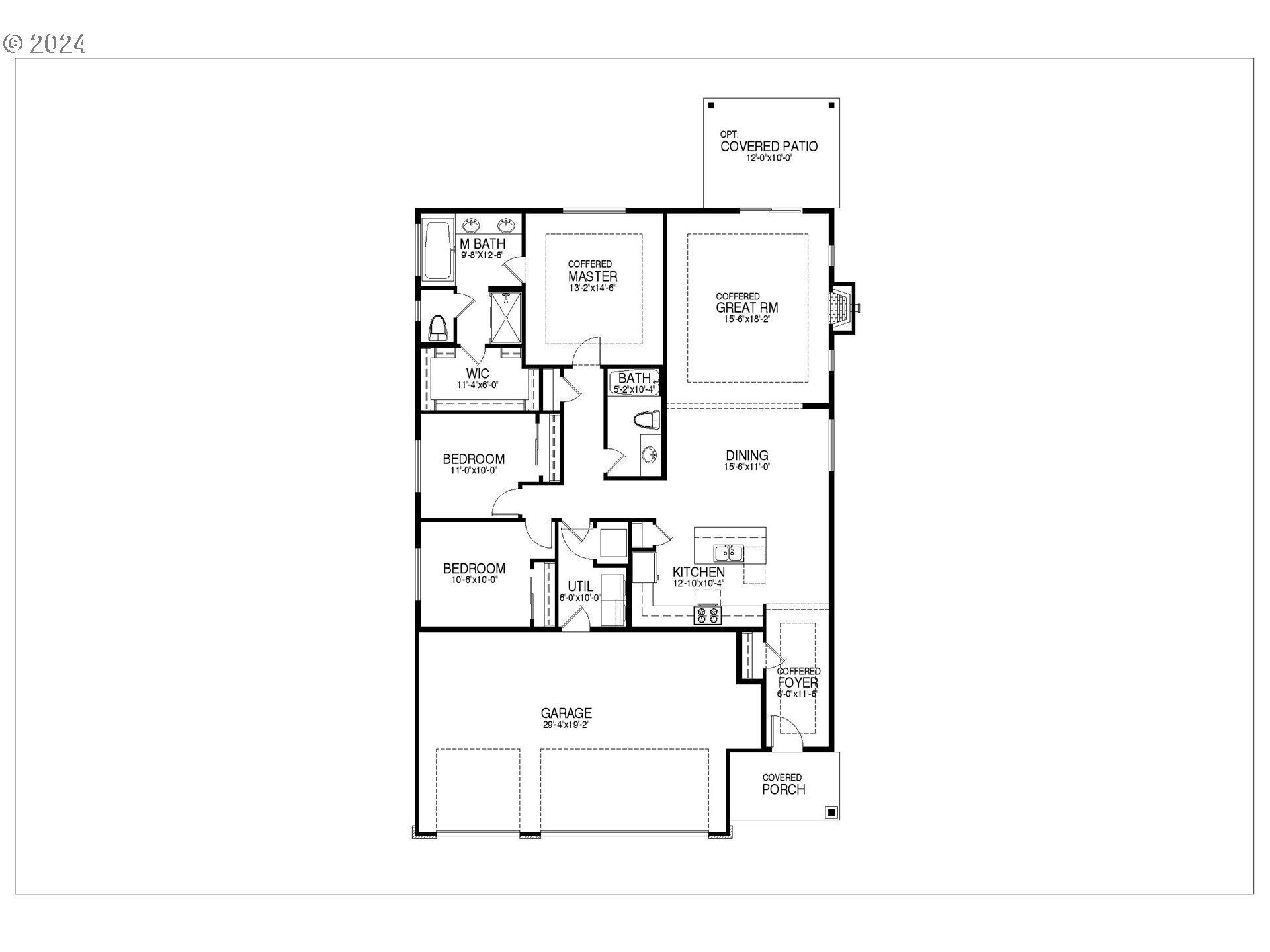
New Chad E Davis Construction home. This one level home with 3 car garage has 9ft ceilings and a Great Room with fireplace. The open concept kitchen features quartz countertops, SS appliances, and full tiled backsplash. The primary suite has a coffered ceiling, full bath including soaking tub and walk in closet. The yard is fully fenced and landscaped including irrigation. Taxes not yet assesed.
Listing Provided Courtesy of Michael Wiltshire, Berkshire Hathaway HomeServices NW Real Estate
General Information
546304044
SingleFamilyResidence
21
DOM
3
2
1722
2026
Yamhill
New Construction
Yamhill-Carlton
Yamhill-Carlton
Yamhill-Carlton
Residential
SingleFamilyResidence
Lot 136 JR Meadows 3
Listing Provided Courtesy of Michael Wiltshire, Berkshire Hathaway HomeServices NW Real Estate
Krishna Realty data last checked: Mar 27, 2026 09:06 | Listing last modified Mar 06, 2026 11:06,
Source:
Download our Mobile app
Residence Information
0
1722
0
1722
Plans
1722
1/Gas
3
2
0
2
Composition
3, Attached
Stories1,Craftsman
Driveway,OnStreet
1
2026
No
CementSiding, LapSiding, Stone
CrawlSpace
CrawlSpace
ConcretePerimeter
DoublePaneWindows
Features and Utilities
Dishwasher, Disposal, FreeStandingRange, Island, Microwave, Pantry, PlumbedForIceMaker, Quartz, SolidSurface
New Chad E Davis Construction home. This one level home with 3 car garage has 9ft ceilings and a Great Room with fireplace. The open concept kitchen features quartz countertops, SS appliances, and full tiled backsplash. The primary suite has a coffered ceiling, full bath including soaking tub and walk in closet. The yard is fully fenced and landscaped including irrigation. Taxes not yet assesed.