Mc Minnville, 97128
4 Bed
2.5 Bath
3039 SqFt
190 DOM
Built: 2011
$729,000
Price cut: $20K (04-06-2026)
$729000
Price cut: $20K (04-06-2026)
4 Bed
2.5 Bath
3039 SqFt
190 DOM
Built: 2011
Open House
Principal Broker
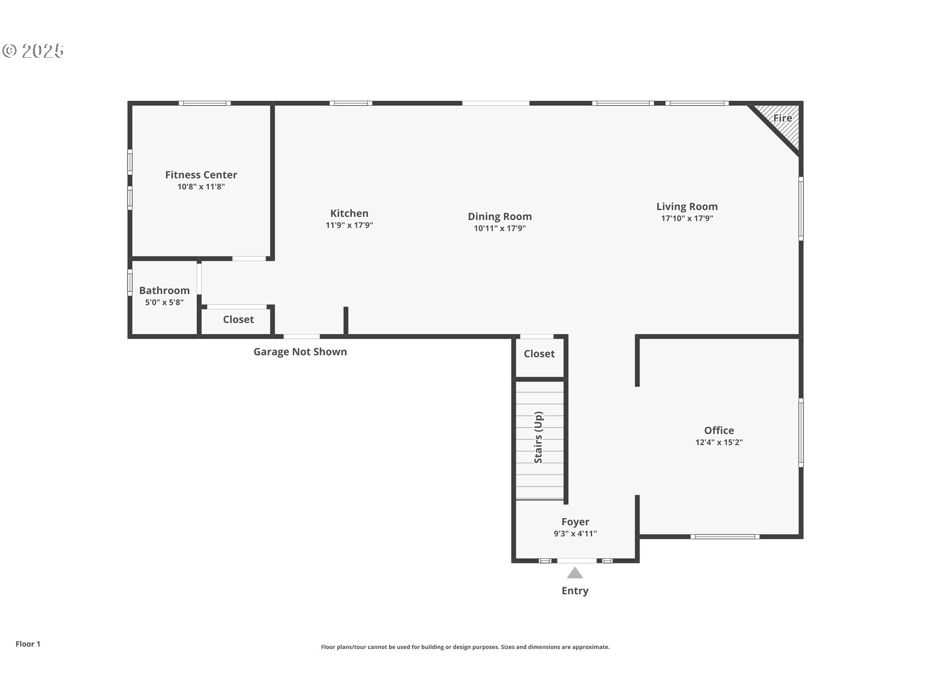
(503) 893-8874OPEN HOUSE SUNDAY APRIL 12th 1:00pm-3:00pm. Step into this beautifully maintained open floor plan with tall ceilings and over 3,000 sq ft of comfort. A cozy gas fireplace in the living room, a large open Kitchen with stainless GE appliances, granite countertops, and hardwood floors. The main level has both an office/bonus room and a family room. Upstairs there are 4 bedrooms, a laundry room, and a primary suite with a large walk in closet, a tile shower, and dual vanity. Walk out back to a covered patio, a fully fenced backyard, and an oasis of privacy.
Listing Provided Courtesy of Justin Olson, Bella Casa Real Estate Group
323533393
SingleFamilyResidence
190 DOM
4
9147.6 SqFt
2.5
3039
2011
Yamhill
535477
Willamette
Duniway 9/10
McMinnville
Residential
SingleFamilyResidence
LOT 84 IN WEST VALLEY ESTATES - PHASE 2
Listing Provided Courtesy of Justin Olson, Bella Casa Real Estate Group
Krishna Realty data last checked: Apr 07, 2026 02:27 | Listing last modified Apr 06, 2026 08:09,
Source:
Sun, Apr 12th, 1PM to 3PM
Download our Mobile app
1696
1343
0
3039
TAXFULL
3039
1/Gas
4
2
1
2.5
Composition
3, Attached
Stories2
Driveway,OffStreet
2
2011
No
CementSiding
CrawlSpace
CrawlSpace
ConcretePerimeter
DoublePaneWindows,Vi
Fireplace, GreatRoom
Dishwasher, Disposal, FreeStandingGasRange, FreeStandingRefrigerator, GasAppliances, Granite, Microwave, Pa
CentralVacuum, GarageDoorOpener, Granite, HardwoodFloors, HighCeilings, Laundry, Sprinkler, WasherDryer
CoveredPatio, Fenced, FreeStandingHotTub, Sprinkler, Yard
CentralAir
Gas
ForcedAir
PublicSewer
Gas
Electricity, Gas
6026.25
0
Cash,Conventional,FHA,USDALoan,VALoan
09-29-2025
No
No
190
190
Cash,Conventional,FHA,USDALoan,VALoan
$749,000
$729,000
Apr 06, 2026 08:09
Listing courtesy of Bella Casa Real Estate Group.
The content relating to real estate for sale on this site comes in part from the IDX program of the RMLS of Portland, Oregon.
Real Estate listings held by brokerage firms other than this firm are marked with the RMLS logo, and
detailed information about these properties include the name of the listing's broker.
Listing content is copyright © 2019 RMLS of Portland, Oregon.
All information provided is deemed reliable but is not guaranteed and should be independently verified.
Krishna Realty data last checked: Apr 07, 2026 02:27 | Listing last modified Apr 06, 2026 08:09.
Some properties which appear for sale on this web site may subsequently have sold or may no longer be available.
Principal Broker
(503) 893-8874OPEN HOUSE SUNDAY APRIL 12th 1:00pm-3:00pm. Step into this beautifully maintained open floor plan with tall ceilings and over 3,000 sq ft of comfort. A cozy gas fireplace in the living room, a large open Kitchen with stainless GE appliances, granite countertops, and hardwood floors. The main level has both an office/bonus room and a family room. Upstairs there are 4 bedrooms, a laundry room, and a primary suite with a large walk in closet, a tile shower, and dual vanity. Walk out back to a covered patio, a fully fenced backyard, and an oasis of privacy.
Download our Mobile app