Mc Minnville, 97128
3 Bed
2.5 Bath
1322 SqFt
85 DOM
Built: 2003
$467,000
Mc Minnville 97128
$467000
Request Tour, Ask a Question or Start an Offer
Principal Broker
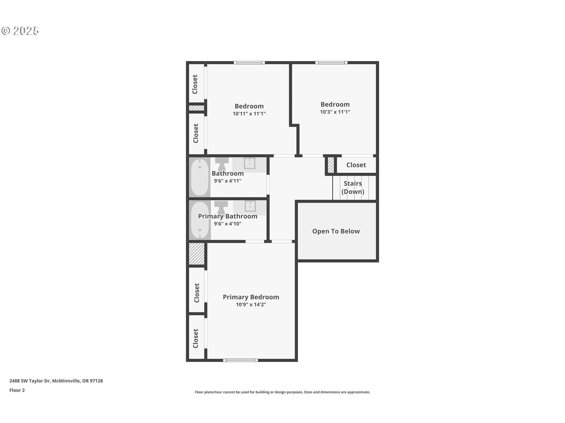
Welcome to this beautifully maintained 3-bed, 2.5-bath home in the heart of McMinnville—Oregon’s premier wine country destination. Offering 1,322 sq ft of thoughtfully designed living space, this home blends comfort, style, and convenience.Step inside to an updated foyer that sets the tone with warm, modern touches. The open-concept kitchen flows seamlessly into the dining and living areas, creating the perfect space for gatherings and everyday living. Floating shelves in the living room add both charm and functionality, giving you room to showcase décor or personal touches.Upstairs, you’ll find three spacious bedrooms, including one with a built-in closet system designed for maximum organization. The primary suite features its own private bathroom, while a second full bath and convenient half-bath on the main level ensure comfort for guests and family alike.Outside, enjoy low-maintenance living with easy access to local amenities, parks, and schools. Commuters and weekend explorers will appreciate the quick connection to Hwy 18, putting the Oregon Coast, Salem, and Portland all within reach.Whether you’re a first-time buyer, a downsizer, or someone seeking the perfect home base in wine country, this McMinnville gem delivers the ideal blend of lifestyle and location.
Listing Provided Courtesy of Erick Flores, JMG - Jason Mitchell Group
MLS #477028407
TypeSingleFamilyResidence
Days on Market 85 DOM
Beds3
Lot Size 6098.4 SqFt
Baths2.5
SqFt1322
Year built2003
ZoningR4
CountyYamhill
Tax ID523225
ElemMemorial 6/10
MiddleDuniway 9/10
HighMcMinnville
PropCategoryResidential
PropTypeSingleFamilyResidence
Neighborhood (Legal)LOT 106 IN CREEKSIDE MEADOWS NO. 3 AT COZINE WOODS
Krishna Realty data last checked: Mar 16, 2026 14:57 | Listing last modified Feb 11, 2026 14:52, Source:
Please Sign In or Create Account to view more details.
Download our Mobile app
Upper SqFt780
Main SqFt542
Lower SqFt0
Total SqFt1322
SFSrcTrio
TotUp/Mn1322
Fireplaces1/Gas
Bdrms3
Full Bath2
Partial Bath1
Total Bath2.5
RoofComposition,Shingle
Garage2, Attached
StyleStories2,Traditional
ParkingDriveway,OnStreet
Levels2
Year Built2003
Green CertNo
Energy Eff
ExteriorVinylSiding
Bsmt/FndCrawlSpace
RV
URM
BasementCrawlSpace
FoundationConcretePerimeter
WindowsVinylFrames
Amenities
Living
KitchenDishwasher, Disposal, FreeStandingRange, FreeStandingRefrigerator, Microwave, Quartz, StainlessSteelApplia
InteriorLaminateFlooring, Quartz, WalltoWallCarpet, WasherDryer
ExteriorFenced, Porch, Yard
AccessibilityGarageonMain
CoolHeatPump
WaterElectricity
HeatForcedAir, HeatPump
SewerPublicSewer
Hot WaterElectricity
FuelElectricity
PTax/Yr1729.55
HOA0
HOA Incl
HOA Fee
Other Dues
Terms ConsideredCash,Conventional,FHA,USDALoan,VALoan
List Date11-18-2025
Rent (If Rented)
Bank Owned/REONo
Short SaleNo
Pending Date
DOM 85
CDOM 118
Sold Date
TermsCash,Conventional,FHA,USDALoan,VALoan
Original Price$490,000
List Price$467,000
Sold Price
Last ModifiedFeb 11, 2026 14:52
Listing courtesy of JMG - Jason Mitchell Group.
The content relating to real estate for sale on this site comes in part from the IDX program of the RMLS of Portland, Oregon. Real Estate listings held by brokerage firms other than this firm are marked with the RMLS logo, and detailed information about these properties include the name of the listing's broker. Listing content is copyright © 2019 RMLS of Portland, Oregon. All information provided is deemed reliable but is not guaranteed and should be independently verified. Krishna Realty data last checked: Mar 16, 2026 14:57 | Listing last modified Feb 11, 2026 14:52. Some properties which appear for sale on this web site may subsequently have sold or may no longer be available.
Please Sign In or Create Account to view more listings.
$295,000
Bed
Bath
0 SqFt
1 DOM
$1,150,000
5 Bed
3.5 Bath
3374 SqFt
2 DOM
$1,215,000
2719 SqFt
3 DOM
$439,000
2 Bath
2376 SqFt
4 DOM
<
>
Choose at least one recipient
You don't have access to share. Please contact admin.