Carlton, 97111
Bed
Bath
SqFt
61 DOM
Built:
$2,824,900
Price cut: $75.1K (10-24-2025)
$2824900
Price cut: $75.1K (10-24-2025)
Bed
Bath
SqFt
61 DOM
Built:
Principal Broker
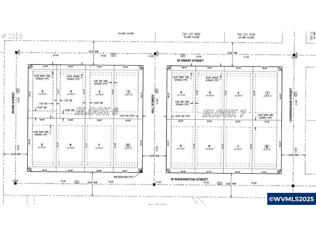
(503) 893-8874Welcome to Carlton's newest development! Located directly across from Wennerberg Park & next to farm ground, they make for a truly peaceful setting. All lots over 6700 square feet & all at 60' wide to easily fit a 3 car garage plan or allow for extra RV/Trailer parking. Construction complete & lots are all ready for foundations, bring your own plans! Project comes w/ approx $68K in SDC credits, this is discounted off the price of your building permits! Entity member is a licensed broker in State of OR.
Listing Provided Courtesy of Jake Lucey, Coldwell Banker Mountain West
694116659
SingleFamilyResidence
61 DOM
2.48 acres
R1
Yamhill
Not Found
Yamhill-Carlton
Yamhill-Carlton
Yamhill-Carlton
Land
SingleFamilyResidence
16 Lots, J Wennerbergs Addition
Listing Provided Courtesy of Jake Lucey, Coldwell Banker Mountain West
Krishna Realty data last checked: Nov 28, 2025 01:58 | Listing last modified Nov 12, 2025 13:59,
Source:
Download our Mobile app
No
0
0
Cash,Conventional
09-12-2025
No
No
61
77
Cash,Conventional
$2,900,000
$2,824,900
Nov 12, 2025 13:59
Listing courtesy of Coldwell Banker Mountain West.
The content relating to real estate for sale on this site comes in part from the IDX program of the RMLS of Portland, Oregon.
Real Estate listings held by brokerage firms other than this firm are marked with the RMLS logo, and
detailed information about these properties include the name of the listing's broker.
Listing content is copyright © 2019 RMLS of Portland, Oregon.
All information provided is deemed reliable but is not guaranteed and should be independently verified.
Krishna Realty data last checked: Nov 28, 2025 01:58 | Listing last modified Nov 12, 2025 13:59.
Some properties which appear for sale on this web site may subsequently have sold or may no longer be available.
Principal Broker
(503) 893-8874Welcome to Carlton's newest development! Located directly across from Wennerberg Park & next to farm ground, they make for a truly peaceful setting. All lots over 6700 square feet & all at 60' wide to easily fit a 3 car garage plan or allow for extra RV/Trailer parking. Construction complete & lots are all ready for foundations, bring your own plans! Project comes w/ approx $68K in SDC credits, this is discounted off the price of your building permits! Entity member is a licensed broker in State of OR.
Download our Mobile app