Mc Minnville, 97128
4 Bed
3 Bath
2383 SqFt
176 DOM
Built: 2025
$625,000
Price cut: $15K (03-19-2026)
$625000
Price cut: $15K (03-19-2026)
4 Bed
3 Bath
2383 SqFt
176 DOM
Built: 2025
Open House
Principal Broker
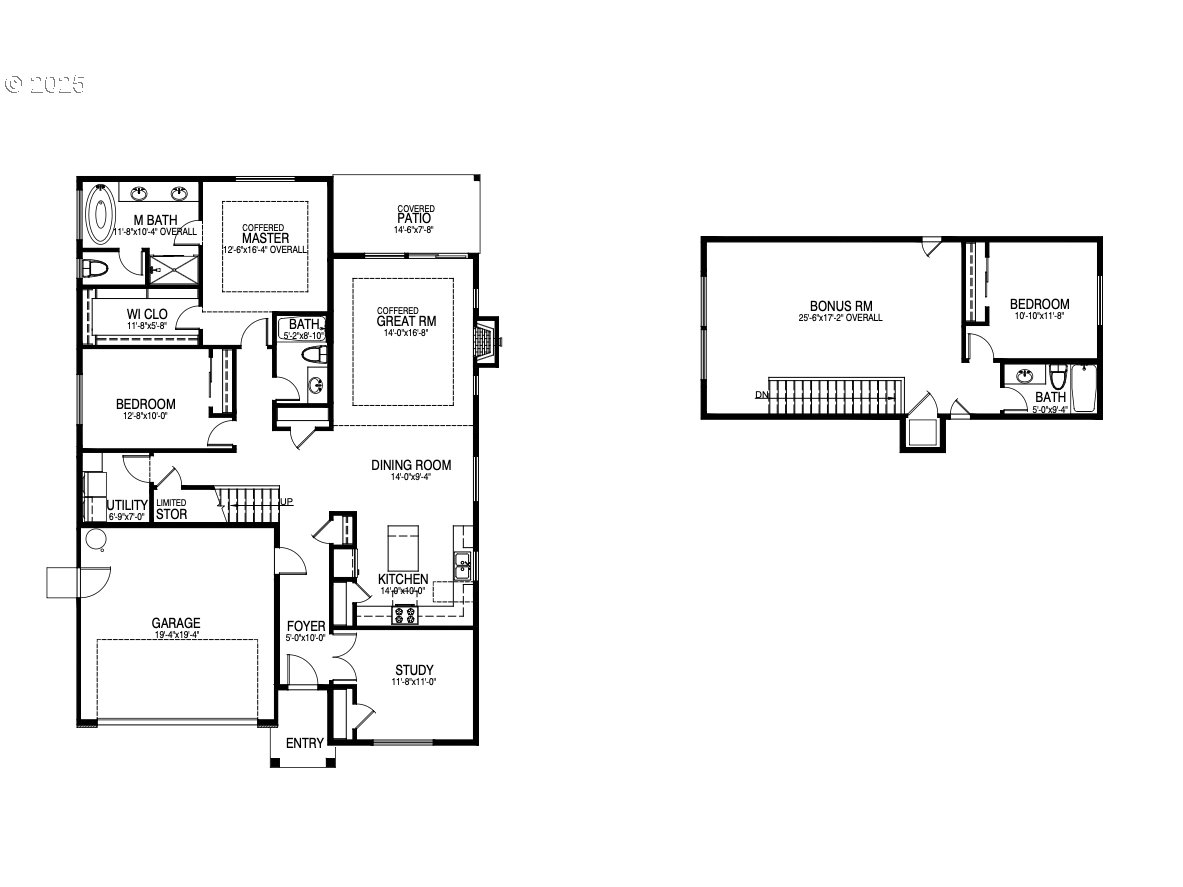
(503) 893-8874Welcome to Oak Ridge, an 18-lot project in McMinnville, built by Chad E. Davis Construction LLC. This Project is conveniently located off of Baker Creek Road, offering quick access to Highway 99 and historic Downtown Third Street. The "Colton" plan features four bedrooms, three full bathrooms, and a large bonus room upstairs. The primary room is on the main level with two other bedrooms on the same level. Upstairs, you will find the large bonus space, another bedroom, and a full bathroom. The kitchen will boast quartz countertops, gas appliances, a pantry, and a sizeable island. With quality finishes throughout, a gas fireplace, coffered ceilings, and a landscaped/fenced backyard, this home will be a welcome addition to McMinnville's growing community. *OPEN HOUSES: Join us each Saturday and Sunday from 12 to 4 PM at our model home, 1578 NW Tracy Street (Lot 53). The Project is best found by taking a right onto NW Shadden Drive, then left onto NW Tracy Street.
Listing Provided Courtesy of Matt Willcuts, Willcuts Company Real Estate
783293183
SingleFamilyResidence
176 DOM
4
3
2383
2025
Yamhill
New Construction
Memorial 6/10
Patton 4/10
McMinnville
Residential
SingleFamilyResidence
LOT 51 - OAK RIDGE MEADOWS
Listing Provided Courtesy of Matt Willcuts, Willcuts Company Real Estate
Krishna Realty data last checked: Apr 06, 2026 02:08 | Listing last modified Apr 03, 2026 14:35,
Source:
Download our Mobile app
683
1700
0
2383
Tax
2383
1/Gas
4
3
0
3
Composition
2, Attached
Stories2,Modern
Driveway
2
2025
No
CementSiding
CrawlSpace
CrawlSpace
ConcretePerimeter
DoublePaneWindows,Vi
Fireplace
Dishwasher, Disposal, GasAppliances, Island, Microwave, Pantry, PlumbedForIceMaker, Quartz, SolidSurfaceCoun
GarageDoorOpener, Laundry, LuxuryVinylPlank, Quartz, VinylFloor
CoveredPatio, Fenced, Sprinkler, Yard
MainFloorBedroomBath
CentralAir
Gas, Tankless
ForcedAir
PublicSewer
Gas, Tankless
Electricity, Gas
0
1
175 / Annually
Cash,Conventional,VALoan
10-09-2025
No
No
176
179
Cash,Conventional,VALoan
$640,000
$625,000
Apr 03, 2026 14:35
Listing courtesy of Willcuts Company Real Estate.
The content relating to real estate for sale on this site comes in part from the IDX program of the RMLS of Portland, Oregon.
Real Estate listings held by brokerage firms other than this firm are marked with the RMLS logo, and
detailed information about these properties include the name of the listing's broker.
Listing content is copyright © 2019 RMLS of Portland, Oregon.
All information provided is deemed reliable but is not guaranteed and should be independently verified.
Krishna Realty data last checked: Apr 06, 2026 02:08 | Listing last modified Apr 03, 2026 14:35.
Some properties which appear for sale on this web site may subsequently have sold or may no longer be available.
Principal Broker
(503) 893-8874Welcome to Oak Ridge, an 18-lot project in McMinnville, built by Chad E. Davis Construction LLC. This Project is conveniently located off of Baker Creek Road, offering quick access to Highway 99 and historic Downtown Third Street. The "Colton" plan features four bedrooms, three full bathrooms, and a large bonus room upstairs. The primary room is on the main level with two other bedrooms on the same level. Upstairs, you will find the large bonus space, another bedroom, and a full bathroom. The kitchen will boast quartz countertops, gas appliances, a pantry, and a sizeable island. With quality finishes throughout, a gas fireplace, coffered ceilings, and a landscaped/fenced backyard, this home will be a welcome addition to McMinnville's growing community. *OPEN HOUSES: Join us each Saturday and Sunday from 12 to 4 PM at our model home, 1578 NW Tracy Street (Lot 53). The Project is best found by taking a right onto NW Shadden Drive, then left onto NW Tracy Street.
Download our Mobile app