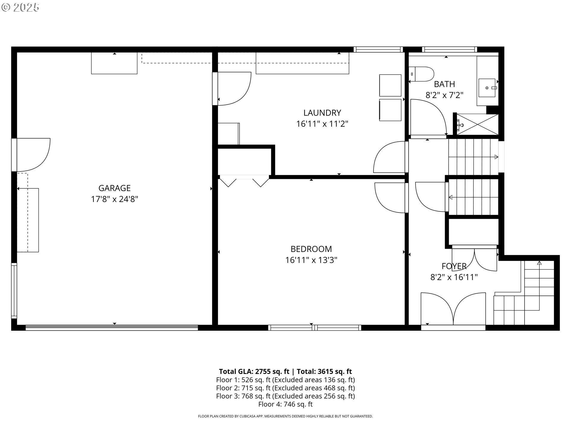
BEAUTIFULLY updated 5 BR/3 bath home in desirable McMinnville neighborhood. Open concept w/rock fireplace & lovely territorial view. Dream kitchen with large island & great storage. Quartz counters, soft close cabinets & stainless steel appliances. The lower level is a great bonus space, w/ 10 ft ceilings, bedroom and slider to the deck. Primary suite on the upper level with an updated bathroom and cedar lined closet. Bedroom and full bath on the main level. Garage is finished and can be a shop. New roof is 2020. This home works great for a large household, dual living, multi generational or home office. The lower level family room and large sunroom are great bonus spaces. So much care has been given to the finishes and systems. Brand new kitchen. LVP flooring through most of the house. Canned lighting with dimmer switches. 80 gallon hybrid water heater. Electric furnace and heat pump. Central vacuum system with kitchen sweep. Terra Firma waterproofing system and French drain system for proper drainage. The backyard is fenced and finished with turf for easy care. The side yard is a nice flat space with new grass. Sit on the private deck and enjoy the peaceful setting of the mature trees and Cozine Creek. Located in a lovely neighborhood with mature trees and pride of ownership. Close to Newby Elementary School, Greenway Path, Discovery Meadow Park.No HOA.OPEN HOUSE NOV 22ND 12:00-3:00 PM
Listing Provided Courtesy of Tanna Cable Girod, C. Cable Realty
General Information
675212658
SingleFamilyResidence
28
DOM
5
10454.4 SqFt
3
2808
1979
Yamhill
280163
Newby 6/10
Duniway 9/10
McMinnville
Residential
SingleFamilyResidence
LOT 1 - BLOCK 2 IN DOROTHY ADDITION
Listing Provided Courtesy of Tanna Cable Girod, C. Cable Realty
Krishna Realty data last checked: Dec 05, 2025 11:46 | Listing last modified Dec 04, 2025 14:52,
Source:
Open House
Fri, Dec 12th, 4PM to 7PM
Download our Mobile app
Residence Information
728
1404
676
2808
County
2132
1/Gas
5
3
0
3
Composition
2, Attached
Split
Driveway
4
1979
No
WoodComposite
Daylight
Daylight
ConcretePerimeter
DoublePaneWindows
Features and Utilities
Fireplace
Dishwasher, Disposal, FreeStandingRange, FreeStandingRefrigerator, Island, PlumbedForIceMaker, Quartz, Rang
BEAUTIFULLY updated 5 BR/3 bath home in desirable McMinnville neighborhood. Open concept w/rock fireplace & lovely territorial view. Dream kitchen with large island & great storage. Quartz counters, soft close cabinets & stainless steel appliances. The lower level is a great bonus space, w/ 10 ft ceilings, bedroom and slider to the deck. Primary suite on the upper level with an updated bathroom and cedar lined closet. Bedroom and full bath on the main level. Garage is finished and can be a shop. New roof is 2020. This home works great for a large household, dual living, multi generational or home office. The lower level family room and large sunroom are great bonus spaces. So much care has been given to the finishes and systems. Brand new kitchen. LVP flooring through most of the house. Canned lighting with dimmer switches. 80 gallon hybrid water heater. Electric furnace and heat pump. Central vacuum system with kitchen sweep. Terra Firma waterproofing system and French drain system for proper drainage. The backyard is fenced and finished with turf for easy care. The side yard is a nice flat space with new grass. Sit on the private deck and enjoy the peaceful setting of the mature trees and Cozine Creek. Located in a lovely neighborhood with mature trees and pride of ownership. Close to Newby Elementary School, Greenway Path, Discovery Meadow Park.No HOA.OPEN HOUSE NOV 22ND 12:00-3:00 PM