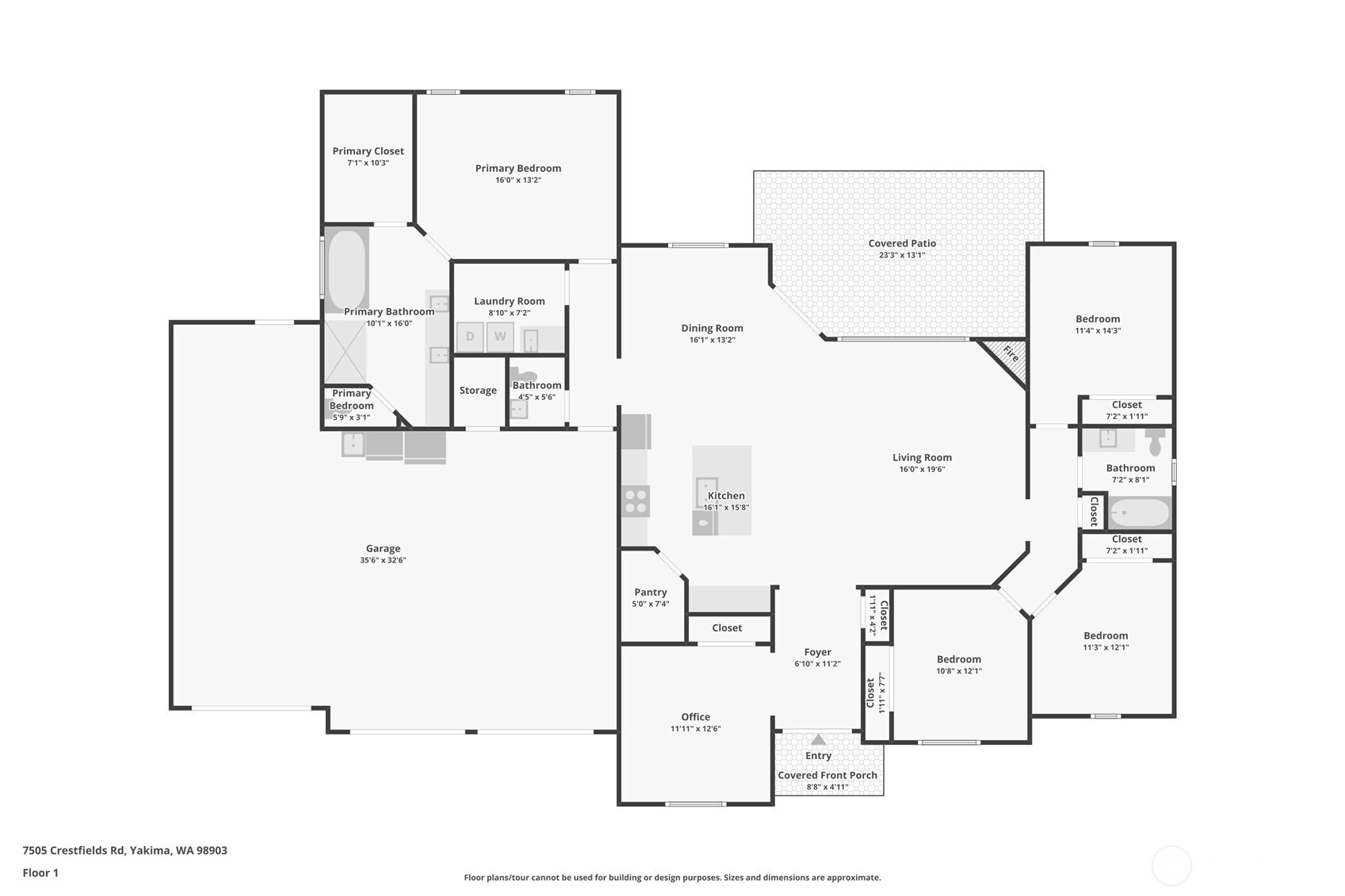
Enjoy breathtaking valley views from this beautifully maintained single-level home in West Valley Yakima. Situated on a spacious .27-acre flat lot, this solidly built, move-in ready home offers comfort, privacy, and an unbeatable location on a quiet, non-through street. Large windows fill the home with natural light while perfectly framing the stunning valley views. The open great room features high ceilings, crown moulding, and a cozy gas fireplace, creating an inviting space perfect for relaxing or entertaining. The thoughtfully designed floor plan places the primary suite on the opposite side of the home from the additional bedrooms, providing added privacy. The primary bathroom features heated floors, adding a touch of everyday luxury and comfort. Additional highlights include a 3-car garage with dedicated workspace, ideal for hobbies, projects, and extra storage including a drop down ladder for additional storage above the garage. Located in a quiet West Valley neighborhood on a non-through street, this home combines peaceful living with convenient access to shopping, dining, and everyday amenities.
Listing Provided Courtesy of Tia Strutz, MORE Realty
General Information
NWM2497567
Single Family Residence
1
DOM
4
0.27 acres
2.5
2312
2013
Yakima
Buyer To Verify
Buyer To Verify
Buyer To Verify
Residential
Single Family Residence
Listing Provided Courtesy of Tia Strutz, MORE Realty
Krishna Realty data last checked: Mar 26, 2026 07:12 | Listing last modified Mar 26, 2026 12:02,
Source:
Download our Mobile app
Residence Information
2312
1/Gas
4
2
1
2.5
Composition
10 - 1 Story
2013
None
None
Poured Concrete
Features and Utilities
Dishwasher, Disposal, Microwave, Refrigerator
Bath Off Primary, Ceiling Fan(s), Dining Room, Fireplace, Pantry, Walk-In Closet(s), Water Heater
Cement Planked
Public
None
Financial
4362.65
Cash, Conventional, FHA
03-25-2026
Comparable Information
1
1
Cash, Conventional, FHA
$675,000
$675,000
Mar 26, 2026 12:02
Schools
Elementary : Buyer To VerifyN/ARatings Middle : Buyer To Verify N/ARatings High : Buyer To VerifyN/ARatings
Enjoy breathtaking valley views from this beautifully maintained single-level home in West Valley Yakima. Situated on a spacious .27-acre flat lot, this solidly built, move-in ready home offers comfort, privacy, and an unbeatable location on a quiet, non-through street. Large windows fill the home with natural light while perfectly framing the stunning valley views. The open great room features high ceilings, crown moulding, and a cozy gas fireplace, creating an inviting space perfect for relaxing or entertaining. The thoughtfully designed floor plan places the primary suite on the opposite side of the home from the additional bedrooms, providing added privacy. The primary bathroom features heated floors, adding a touch of everyday luxury and comfort. Additional highlights include a 3-car garage with dedicated workspace, ideal for hobbies, projects, and extra storage including a drop down ladder for additional storage above the garage. Located in a quiet West Valley neighborhood on a non-through street, this home combines peaceful living with convenient access to shopping, dining, and everyday amenities.