Blaine, WA 98230
4 Bed
3 Bath
2122 SqFt
39 DOM
Built: 2025
$629,000
$629000
4 Bed
3 Bath
2122 SqFt
39 DOM
Built: 2025
Principal Broker
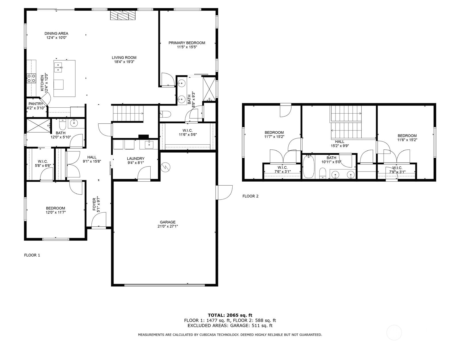
(503) 893-8874Thoughtfully designed for flexible living, this 4-bedroom home features a primary suite on the main floor plus an additional main-level bedroom, ideal for guests, a home office, or multi-generational living. The main level offers soaring ceilings, LVP flooring, & a cozy propane fireplace. The kitchen is finished with flat-panel cabinetry, quartz countertops, and upgraded appliances. Enjoy year-round outdoor entertaining on the covered back patio. EV charger in the garage and an efficient mini-split heat pump for heating and cooling. Slab-on-grade construction. Only 35 minutes to Bellingham and 5 minutes from downtown Blaine, I-5, and the border. Preferred lender savings include a 1% lender credit plus a $5,000 seller credit.
Listing Provided Courtesy of Brandi Coplen, Windermere Real Estate Whatcom
NWM2464126
Single Family Residence
39 DOM
4
5227.2 SqFt
3
2122
2025
Whatcom
Blaine Elem
Blaine Mid
Blaine High
Residential
Single Family Residence
Listing Provided Courtesy of Brandi Coplen, Windermere Real Estate Whatcom
Krishna Realty data last checked: Feb 22, 2026 03:40 | Listing last modified Feb 07, 2026 14:44,
Source:
Download our Mobile app
2122
1/Gas
4
1
0
3
Composition
12 - 2 Story
2025
None
None
Poured Concrete, Sla
Dishwasher(s), Disposal, Microwave(s), Refrigerator(s), Stove(s)/Range(s)
Bath Off Primary, Double Pane/Storm Window, Fireplace, Walk-In Closet(s), Walk-In Pantry, Water Heat
Cement/Concrete, Cement Planked, Wood
Public
Sewer Connected
1200.97
Cash Out, Conventional, VA Loan
12-30-2025
39
39
Cash Out, Conventional, VA Loan
$649,000
$649,000
Feb 07, 2026 14:44
Listing courtesy of Windermere Real Estate Whatcom.
The content relating to real estate for sale on this site comes in part from the IDX program of the NWMLS of Seattle, Washington.
Real Estate listings held by brokerage firms other than this firm are marked with the NWMLS logo, and
detailed information about these properties include the name of the listing's broker.
Listing content is copyright © 2026 NWMLS of Seattle, Washington.
All information provided is deemed reliable but is not guaranteed and should be independently verified.
Krishna Realty data last checked: Feb 22, 2026 03:40 | Listing last modified Feb 07, 2026 14:44.
Some properties which appear for sale on this web site may subsequently have sold or may no longer be available.
Principal Broker
(503) 893-8874Thoughtfully designed for flexible living, this 4-bedroom home features a primary suite on the main floor plus an additional main-level bedroom, ideal for guests, a home office, or multi-generational living. The main level offers soaring ceilings, LVP flooring, & a cozy propane fireplace. The kitchen is finished with flat-panel cabinetry, quartz countertops, and upgraded appliances. Enjoy year-round outdoor entertaining on the covered back patio. EV charger in the garage and an efficient mini-split heat pump for heating and cooling. Slab-on-grade construction. Only 35 minutes to Bellingham and 5 minutes from downtown Blaine, I-5, and the border. Preferred lender savings include a 1% lender credit plus a $5,000 seller credit.
Download our Mobile app