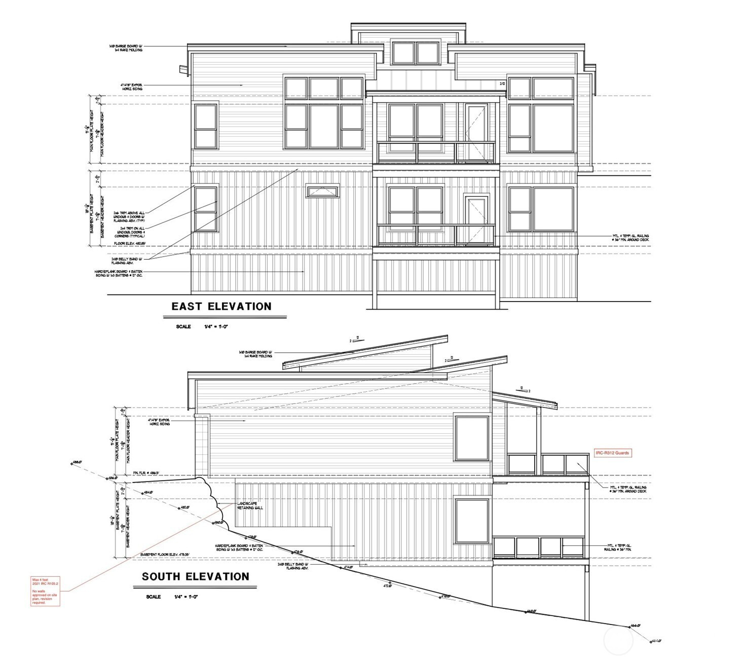
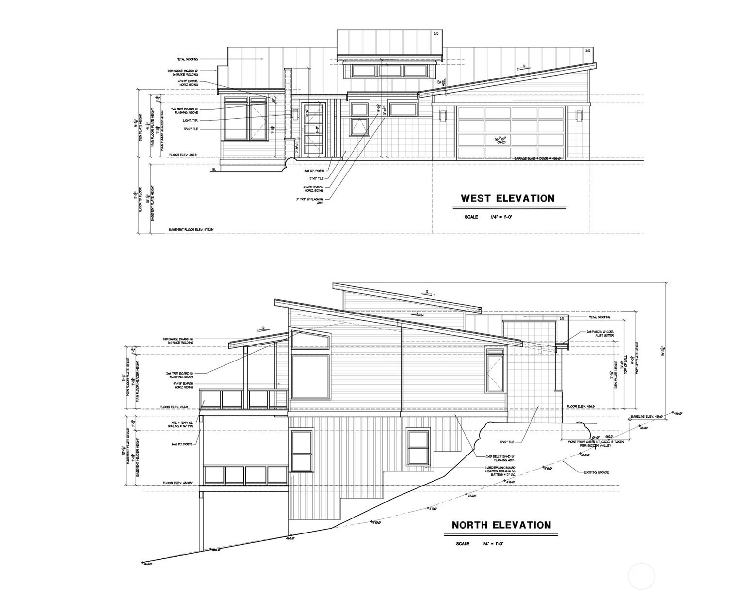
Fully permitted Lot in Sudden Valley seconds away from Gate 3. All permits are approved for a thoughtfully designed 2,580 SF home by JWR Design Inc. Architectural, structural, and civil plans are complete and ready to go, allowing you to start building June 1, 2026. All the hard work like design, engineering, and permitting has been done. Both county and Sudden Valley permits have been paid for. The project has already been appraised at 800k offering excellent value and a clear path to construction. A great opportunity to bring your new home to life in Sudden Valley.
Listing Provided Courtesy of Slav Pakhnyuk, Sterling Real Estate Group
General Information
NWM2438828
Land
11
DOM
7583.8 SqFt
0
Residen
Whatcom
Geneva Elem
Kulshan Mid
Bellingham High
Land
Land
Listing Provided Courtesy of Slav Pakhnyuk, Sterling Real Estate Group
Krishna Realty data last checked: Nov 12, 2025 05:56 | Listing last modified Oct 22, 2025 01:43,
Source:
Fully permitted Lot in Sudden Valley seconds away from Gate 3. All permits are approved for a thoughtfully designed 2,580 SF home by JWR Design Inc. Architectural, structural, and civil plans are complete and ready to go, allowing you to start building June 1, 2026. All the hard work like design, engineering, and permitting has been done. Both county and Sudden Valley permits have been paid for. The project has already been appraised at 800k offering excellent value and a clear path to construction. A great opportunity to bring your new home to life in Sudden Valley.