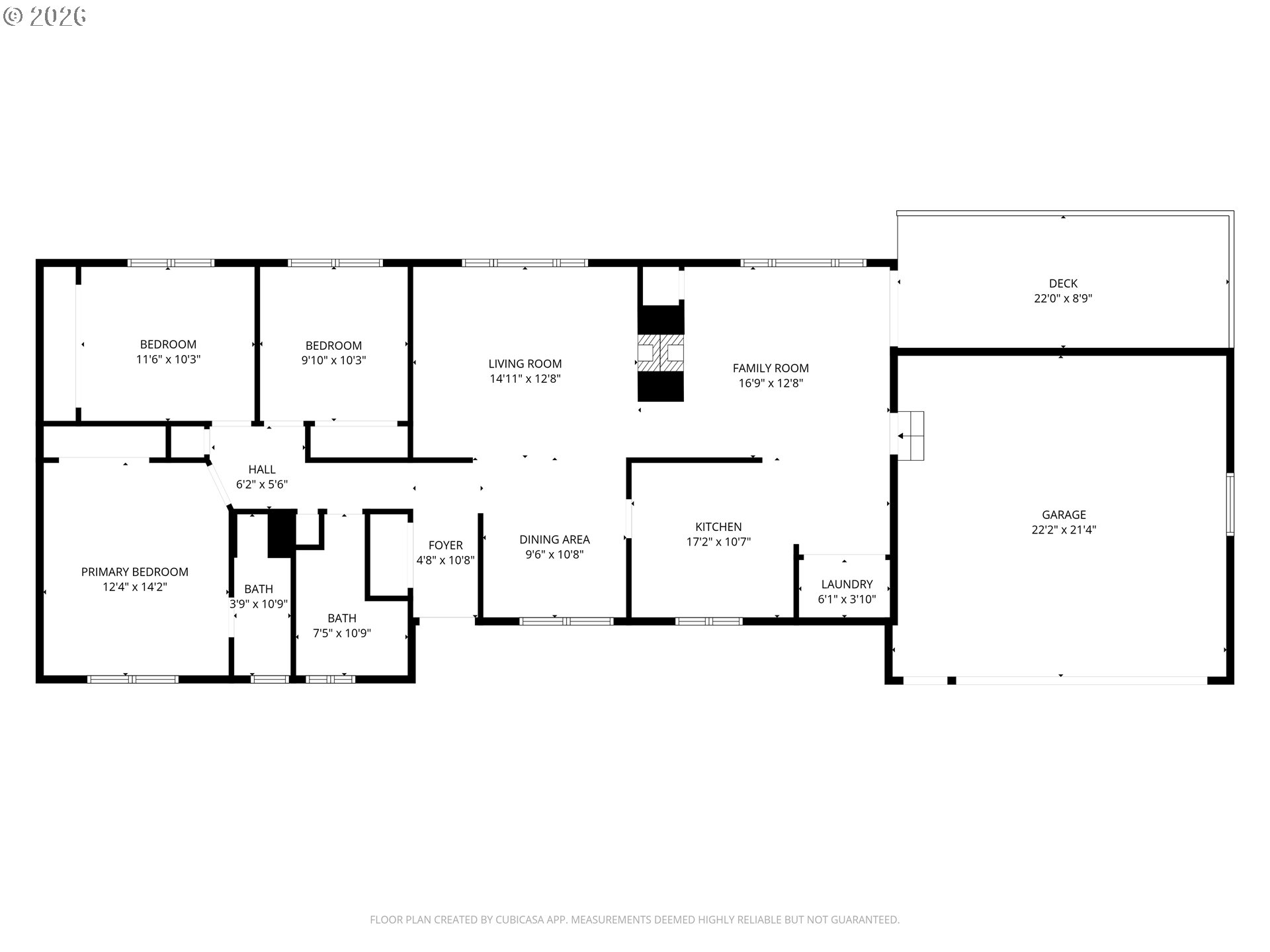
Tucked away on a quiet dead-end in southwest Tigard, this 1966 ranch delivers the perfect blend of mid-century charm and modern convenience. Spanning 1,468 sq ft, the home sits on a generous one-third-acre lot that feels surprisingly spacious for the neighborhood, giving you room for a garden, a fire pit or just a place for kids and pets to run free. The single-level layout is a natural fit for anyone who values ease of movement—no stairs, no hassle, just an open flow that feels contemporary while honoring its era.Step inside and the original hardwood floors greet you, their warm tones amplified by newer, energy-efficient windows that flood the living area with natural light. The layout feels airy and adaptable, with a living room that easily transitions into a dining or work zone, and a kitchen that offers enough counter space for casual cooking or entertaining. Three well-proportioned bedrooms sit on the same level, each with easy access to the two full bathrooms; with one being the primary bedroom bath.Beyond the interior, the property shines with thoughtful upgrades that keep maintenance worries at bay. A newer roof protects the home for years to come, and the fresh windows not only improve comfort but also help lower utility costs. An oversized two-car garage provides ample storage for vehicles, tools, or a DIY workshop, and its size is a rare perk in this part of town.Location is another strong suit. Minutes from the home you’ll find Tigard’s shopping districts, trendy cafés, and essential services, while easy access to the nearby freeways makes commuting a breeze. Parks and walking trails are just a short stroll away, offering plenty of outdoor recreation, and top-rated schools sit within the catchment area, making the neighborhood family-friendly. Transit options are also within reach, so you can hop on a bus.
Listing Provided Courtesy of Kevin Smallbeck, RE/MAX Equity Group
General Information
104352942
SingleFamilyResidence
29
DOM
3
0.34 acres
2
1468
1966
Washington
R501772
Templeton 4/10
Twality 5/10
Tigard 7/10
Residential
SingleFamilyResidence
INGEBRAND HEIGHTS, LOT 10, ACRES 0.34
Listing Provided Courtesy of Kevin Smallbeck, RE/MAX Equity Group
Krishna Realty data last checked: May 01, 2026 04:44 | Listing last modified May 01, 2026 00:13,
Source:
Tucked away on a quiet dead-end in southwest Tigard, this 1966 ranch delivers the perfect blend of mid-century charm and modern convenience. Spanning 1,468 sq ft, the home sits on a generous one-third-acre lot that feels surprisingly spacious for the neighborhood, giving you room for a garden, a fire pit or just a place for kids and pets to run free. The single-level layout is a natural fit for anyone who values ease of movement—no stairs, no hassle, just an open flow that feels contemporary while honoring its era.Step inside and the original hardwood floors greet you, their warm tones amplified by newer, energy-efficient windows that flood the living area with natural light. The layout feels airy and adaptable, with a living room that easily transitions into a dining or work zone, and a kitchen that offers enough counter space for casual cooking or entertaining. Three well-proportioned bedrooms sit on the same level, each with easy access to the two full bathrooms; with one being the primary bedroom bath.Beyond the interior, the property shines with thoughtful upgrades that keep maintenance worries at bay. A newer roof protects the home for years to come, and the fresh windows not only improve comfort but also help lower utility costs. An oversized two-car garage provides ample storage for vehicles, tools, or a DIY workshop, and its size is a rare perk in this part of town.Location is another strong suit. Minutes from the home you’ll find Tigard’s shopping districts, trendy cafés, and essential services, while easy access to the nearby freeways makes commuting a breeze. Parks and walking trails are just a short stroll away, offering plenty of outdoor recreation, and top-rated schools sit within the catchment area, making the neighborhood family-friendly. Transit options are also within reach, so you can hop on a bus.