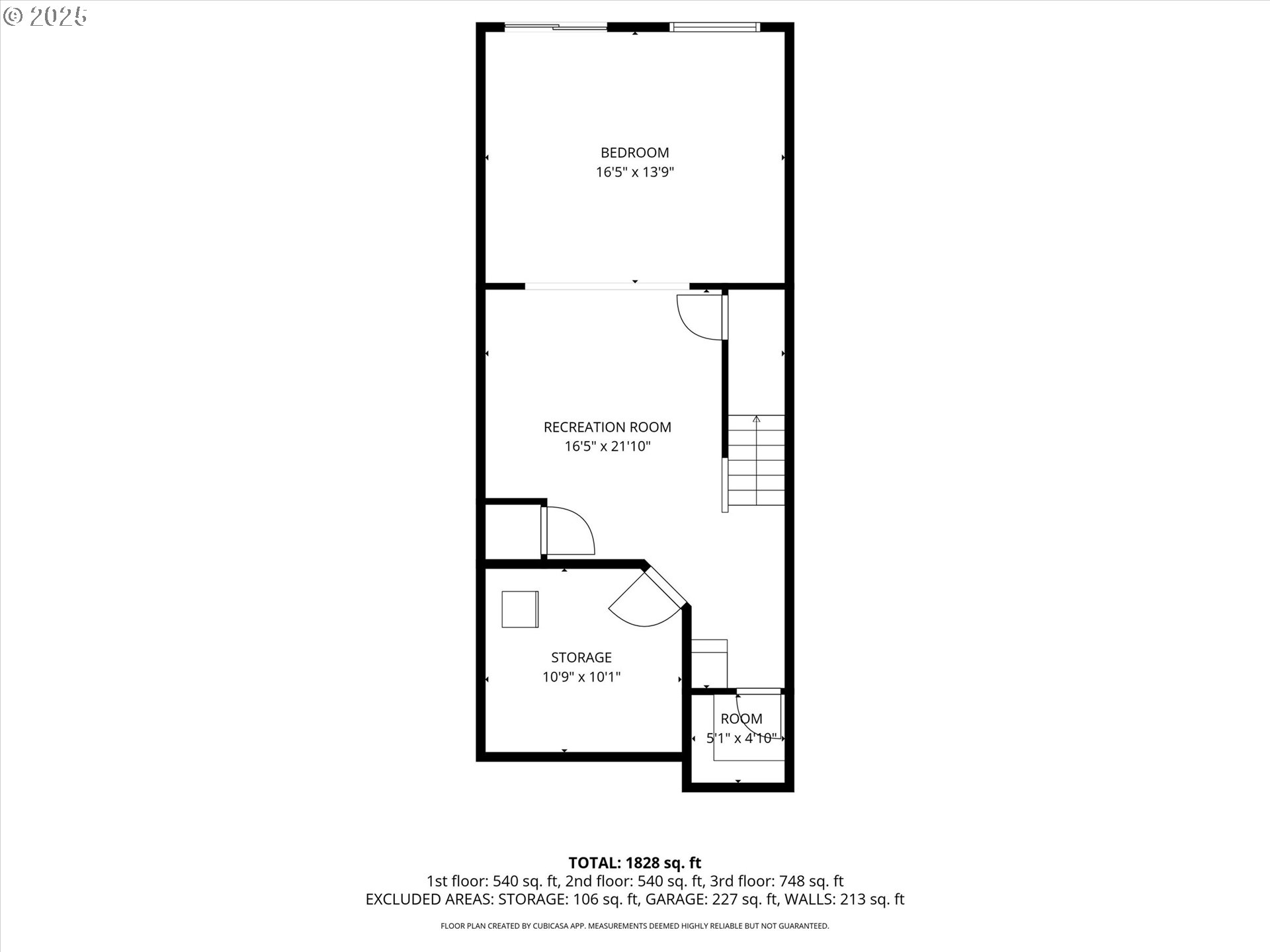
The $306 special assessment is temporary and scheduled to end in 2029. Buyers may also choose to pay off the remaining balance in full prior to closing or at any time before the end date. Gorgeous 3-level townhome offering an impressive 2,076 sq. ft.—a size rarely found in a townhome! The main level features a bright, open living and dining area that flows seamlessly to a sunny deck—perfect for morning coffee or evening relaxation. Upstairs, you’ll find two spacious bedroom suites, including a generous primary suite with its own private deck. The lower level offers incredible flexibility with a large family room—ideal for a home office, gym, guest space, or bonus living area. A convenient pantry and oversized storage room add even more practicality. The HOA has recently completed major improvements including a brand-new roof, new gutters, new siding, and newer decks for peace of mind. All tucked into a peaceful setting surrounded by parks, shopping, and commuter routes. This home offers comfort and convenience, ready for your personal touches to make it your own.
Listing Provided Courtesy of Jules Tsymbalyuk, MORE Realty
General Information
568804638
Attached
76
DOM
3
1306.8 SqFt
2.5
2076
2005
Washington
R2101961
Sexton Mountain 9/10
Highland Park
Mountainside 6/10
Residential
Attached
MURRAY GROVE TOWNHOMES, LOT 58, ACRES 0.03
Listing Provided Courtesy of Jules Tsymbalyuk, MORE Realty
Krishna Realty data last checked: Mar 16, 2026 14:38 | Listing last modified Feb 09, 2026 09:54,
Source:
Download our Mobile app
Residence Information
852
618
606
2076
County
1470
1/Gas
3
2
1
2.5
Composition
1, Attached
Townhouse
Driveway
3
2005
No
CementSiding, Stone
CrawlSpace
CrawlSpace
ConcretePerimeter
DoublePaneWindows,Vi
Features and Utilities
Fireplace
Dishwasher, Disposal, FreeStandingGasRange, FreeStandingRange, FreeStandingRefrigerator, GasAppliances, Mi
HighCeilings, WasherDryer
Deck
CentralAir
Gas
ForcedAir
PublicSewer
Gas
Gas
Financial
5300.94
1
210 / Month
306 / Month
Cash,Conventional,FHA,VALoan
11-25-2025
No
No
Comparable Information
76
111
Cash,Conventional,FHA,VALoan
$500,000
$480,000
Feb 09, 2026 09:54
Schools
public Elementary : Sexton Mountain
9/10Ratings Middle : Highland Park N/ARatingspublic High : Mountainside
6/10Ratings
The $306 special assessment is temporary and scheduled to end in 2029. Buyers may also choose to pay off the remaining balance in full prior to closing or at any time before the end date. Gorgeous 3-level townhome offering an impressive 2,076 sq. ft.—a size rarely found in a townhome! The main level features a bright, open living and dining area that flows seamlessly to a sunny deck—perfect for morning coffee or evening relaxation. Upstairs, you’ll find two spacious bedroom suites, including a generous primary suite with its own private deck. The lower level offers incredible flexibility with a large family room—ideal for a home office, gym, guest space, or bonus living area. A convenient pantry and oversized storage room add even more practicality. The HOA has recently completed major improvements including a brand-new roof, new gutters, new siding, and newer decks for peace of mind. All tucked into a peaceful setting surrounded by parks, shopping, and commuter routes. This home offers comfort and convenience, ready for your personal touches to make it your own.