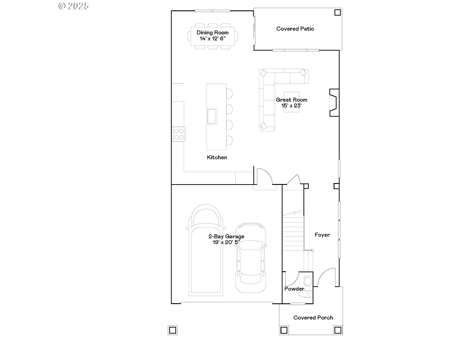
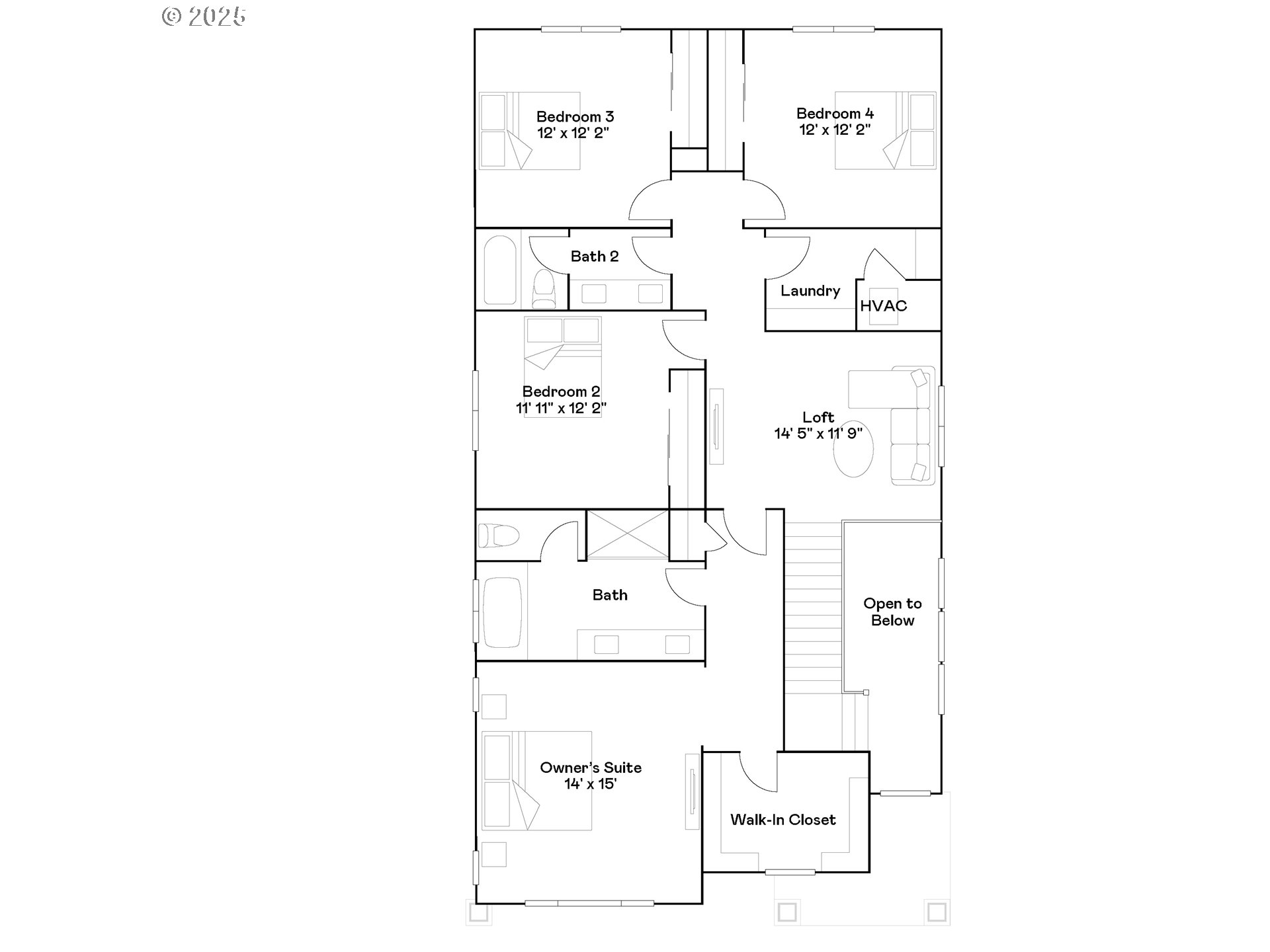
Discover this beautiful new construction home in the Autumn Sunrise community, ideally situated near I-5 with convenient access to shopping and dining. Residents in this community enjoy inviting neighborhood amenities including a playground, fire pit, pickleball and basketball court — designed for fun and easy get-togethers. The Magnolia plan features an open concept main floor with a great room, kitchen, and dining room that connect to a covered patio. Upstairs, a loft provides flexibility along with four bedrooms, including a primary suite with an ensuite bath and walk-in closet. Interior highlights include quartz countertops, shaker-style cabinets, carpet in all bedrooms, a fireplace with floating mantle, two-tone paint, and other luxury details. This home also includes front & back yard irrigation, fencing, and central air conditioning, plus a refrigerator, washer and dryer, and blinds — all included at no extra cost! Located on homesite 327, this home is expected to be complete in Spring 2026. Rendering is artist conception only. Photos are of a similar home, features and finishes will vary.
Listing Provided Courtesy of Anastasia Gordeev, Lennar Sales Corp
General Information
373774685
SingleFamilyResidence
4
DOM
4
4356 SqFt
2.5
2479
2026
Washington
R2236389
Hawks View
Sherwood
Sherwood
Residential
SingleFamilyResidence
AUTUMN SUNRISE NO.4, LOT 327, ACRES 0.1
Listing Provided Courtesy of Anastasia Gordeev, Lennar Sales Corp
Krishna Realty data last checked: Feb 21, 2026 23:38 | Listing last modified Feb 17, 2026 12:21,
Source:
Discover this beautiful new construction home in the Autumn Sunrise community, ideally situated near I-5 with convenient access to shopping and dining. Residents in this community enjoy inviting neighborhood amenities including a playground, fire pit, pickleball and basketball court — designed for fun and easy get-togethers. The Magnolia plan features an open concept main floor with a great room, kitchen, and dining room that connect to a covered patio. Upstairs, a loft provides flexibility along with four bedrooms, including a primary suite with an ensuite bath and walk-in closet. Interior highlights include quartz countertops, shaker-style cabinets, carpet in all bedrooms, a fireplace with floating mantle, two-tone paint, and other luxury details. This home also includes front & back yard irrigation, fencing, and central air conditioning, plus a refrigerator, washer and dryer, and blinds — all included at no extra cost! Located on homesite 327, this home is expected to be complete in Spring 2026. Rendering is artist conception only. Photos are of a similar home, features and finishes will vary.