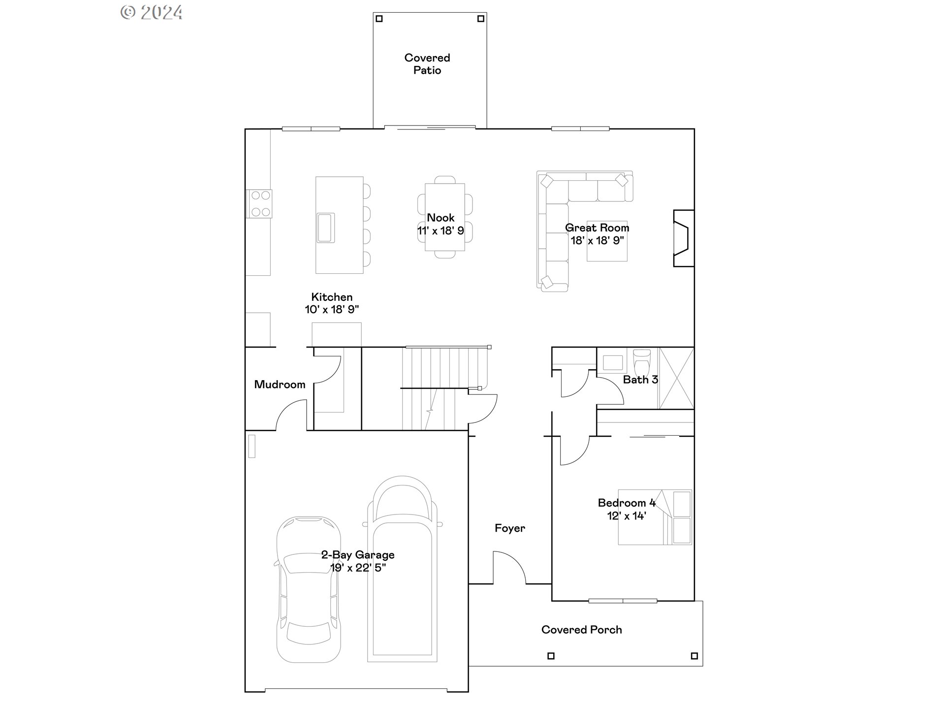
Take a self guided tour of this new construction home in Parkview Terrace, adjacent to Thatcher City Park and close to McMenamins Grand Lodge, with Portland just 35 minutes away. The Burlington plan includes a two-story foyer, first-floor bedroom and full bath, and an open main living area with a fireplace. The second floor offers a primary suite with a soaking tub, two secondary bedrooms, and a versatile bonus room. Interior highlights include quartz countertops and shaker-style cabinets. This home also includes central air conditioning, a refrigerator, washer and dryer, and blinds—all at no extra cost! Located on homesite 84, this home is move in ready. Rendering is artist conception only. Photos are of a similar home, features and finishes will vary. Incentives available with the use of our preferred lender!
Listing Provided Courtesy of Jason Merritt, Lennar Sales Corp
General Information
24154502
SingleFamilyResidence
357
DOM
4
3
2634
2025
Washington
New Construction
Harvey Clark 6/10
Neil Armstrong 2/10
Forest Grove 6/10
Residential
SingleFamilyResidence
870 Butte Drive Forest Grove, OR 97006 LOT 84
Listing Provided Courtesy of Jason Merritt, Lennar Sales Corp
Krishna Realty data last checked: Oct 06, 2025 14:52 | Listing last modified Sep 26, 2025 13:42,
Source:
Download our Mobile app
Residence Information
1376
1258
0
2634
Builder
2634
1/Gas
4
3
0
3
Composition
2, Attached
Stories2
Driveway
2
2025
No
CementSiding
CrawlSpace
CrawlSpace
ConcretePerimeter
DoublePaneWindows,Vi
FrontYardLandscaping
Features and Utilities
Disposal, FreeStandingGasRange, Island, Quartz, StainlessSteelAppliance
Take a self guided tour of this new construction home in Parkview Terrace, adjacent to Thatcher City Park and close to McMenamins Grand Lodge, with Portland just 35 minutes away. The Burlington plan includes a two-story foyer, first-floor bedroom and full bath, and an open main living area with a fireplace. The second floor offers a primary suite with a soaking tub, two secondary bedrooms, and a versatile bonus room. Interior highlights include quartz countertops and shaker-style cabinets. This home also includes central air conditioning, a refrigerator, washer and dryer, and blinds—all at no extra cost! Located on homesite 84, this home is move in ready. Rendering is artist conception only. Photos are of a similar home, features and finishes will vary. Incentives available with the use of our preferred lender!