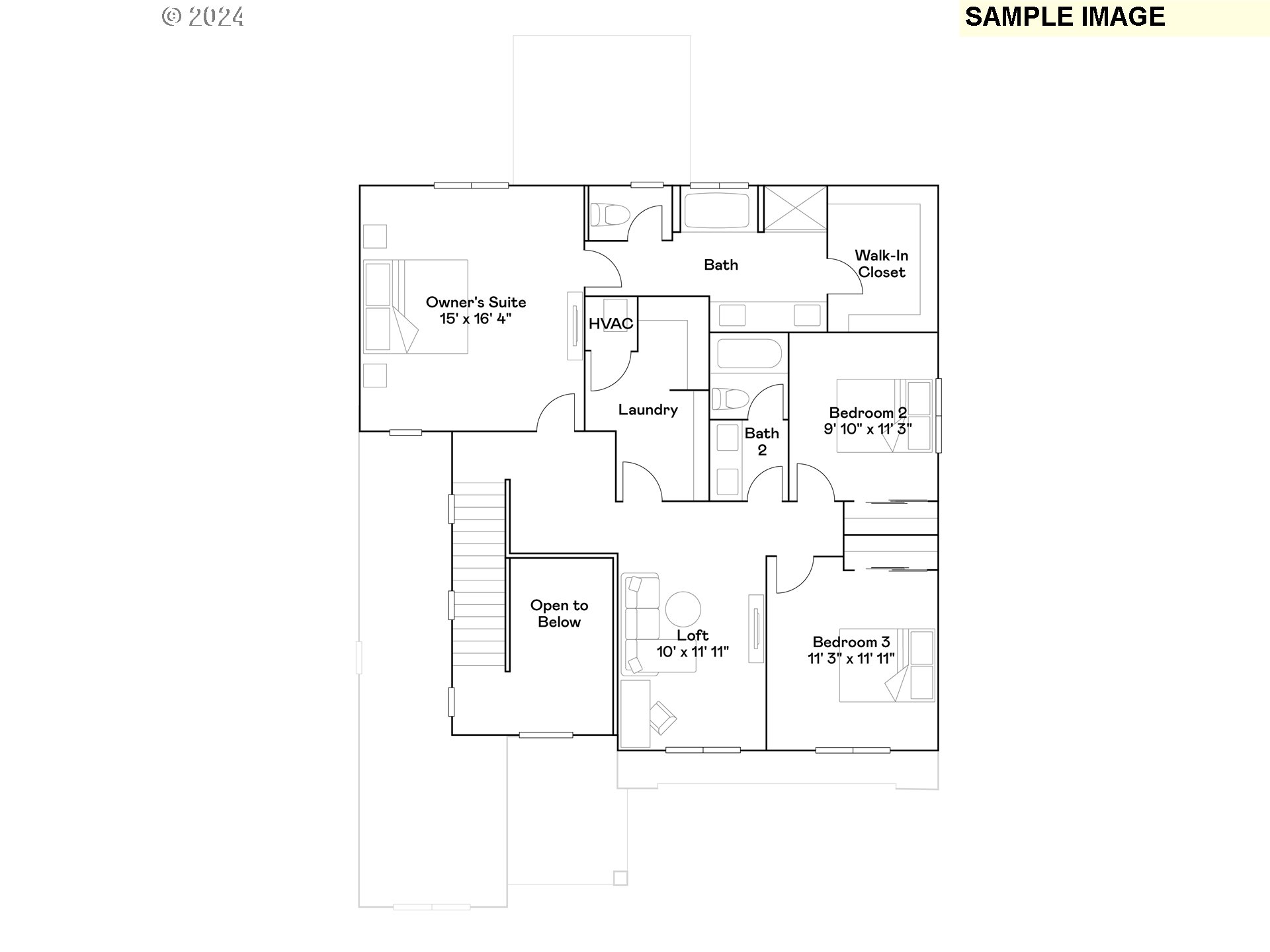
The Larview floorplan is a spacious and well-designed home, offering a variety of features that enhance both comfort and functionality. The main level includes a bedroom and a full bath, perfect for guests or multi-generational living. The open great room is centered around a cozy gas fireplace, creating an inviting atmosphere. The dining room seamlessly flows into the back yard patio through a sliding door, providing easy access to outdoor living. The kitchen is equipped with a gas stove and sleek stainless appliances, and the dining area also leads to the patio, making entertaining and everyday meals a breeze. Upstairs, you'll find three additional bedrooms, a loft for flexible living space, and a generously-sized laundry room. The primary bedroom is a luxurious retreat, featuring a walk-in closet and a spa-like bathroom with a separate shower and bath for ultimate relaxation. Home includes: air conditioning, blinds, a refrigerator, washer, and dryer. Renderings and sample photos are artists conceptions only. Photos are of similar or model home, features and finishes may vary. Taxes not yet assessed. Located in Forest Grove's brand new Parkview Terrace community is in idyllic Forest Grove, close to parks, nature and a charming downtown area. MOVE-IN READY!
Listing Provided Courtesy of Melissa Ralphe, Lennar Sales Corp
General Information
207015674
SingleFamilyResidence
1
DOM
4
3
2448
2025
Washington
New Construction
Harvey Clark 6/10
Neil Armstrong 2/10
Forest Grove 6/10
Residential
SingleFamilyResidence
844 Glade Ave Forest Grove, OR 97116 LOT 154
Listing Provided Courtesy of Melissa Ralphe, Lennar Sales Corp
Krishna Realty data last checked: Dec 19, 2025 15:18 | Listing last modified Dec 19, 2025 00:05,
Source:
Download our Mobile app
Residence Information
1250
1198
0
2448
Builder
2448
1/Gas
4
3
0
3
Composition
2, Attached
Farmhouse,Traditional
Driveway
2
2025
No
CementSiding
StorageSpace
StorageSpace
ConcretePerimeter,Pi
DoublePaneWindows,Vi
Management
Features and Utilities
Dishwasher, Disposal, FreeStandingGasRange, Island, Microwave, Quartz
The Larview floorplan is a spacious and well-designed home, offering a variety of features that enhance both comfort and functionality. The main level includes a bedroom and a full bath, perfect for guests or multi-generational living. The open great room is centered around a cozy gas fireplace, creating an inviting atmosphere. The dining room seamlessly flows into the back yard patio through a sliding door, providing easy access to outdoor living. The kitchen is equipped with a gas stove and sleek stainless appliances, and the dining area also leads to the patio, making entertaining and everyday meals a breeze. Upstairs, you'll find three additional bedrooms, a loft for flexible living space, and a generously-sized laundry room. The primary bedroom is a luxurious retreat, featuring a walk-in closet and a spa-like bathroom with a separate shower and bath for ultimate relaxation. Home includes: air conditioning, blinds, a refrigerator, washer, and dryer. Renderings and sample photos are artists conceptions only. Photos are of similar or model home, features and finishes may vary. Taxes not yet assessed. Located in Forest Grove's brand new Parkview Terrace community is in idyllic Forest Grove, close to parks, nature and a charming downtown area. MOVE-IN READY!