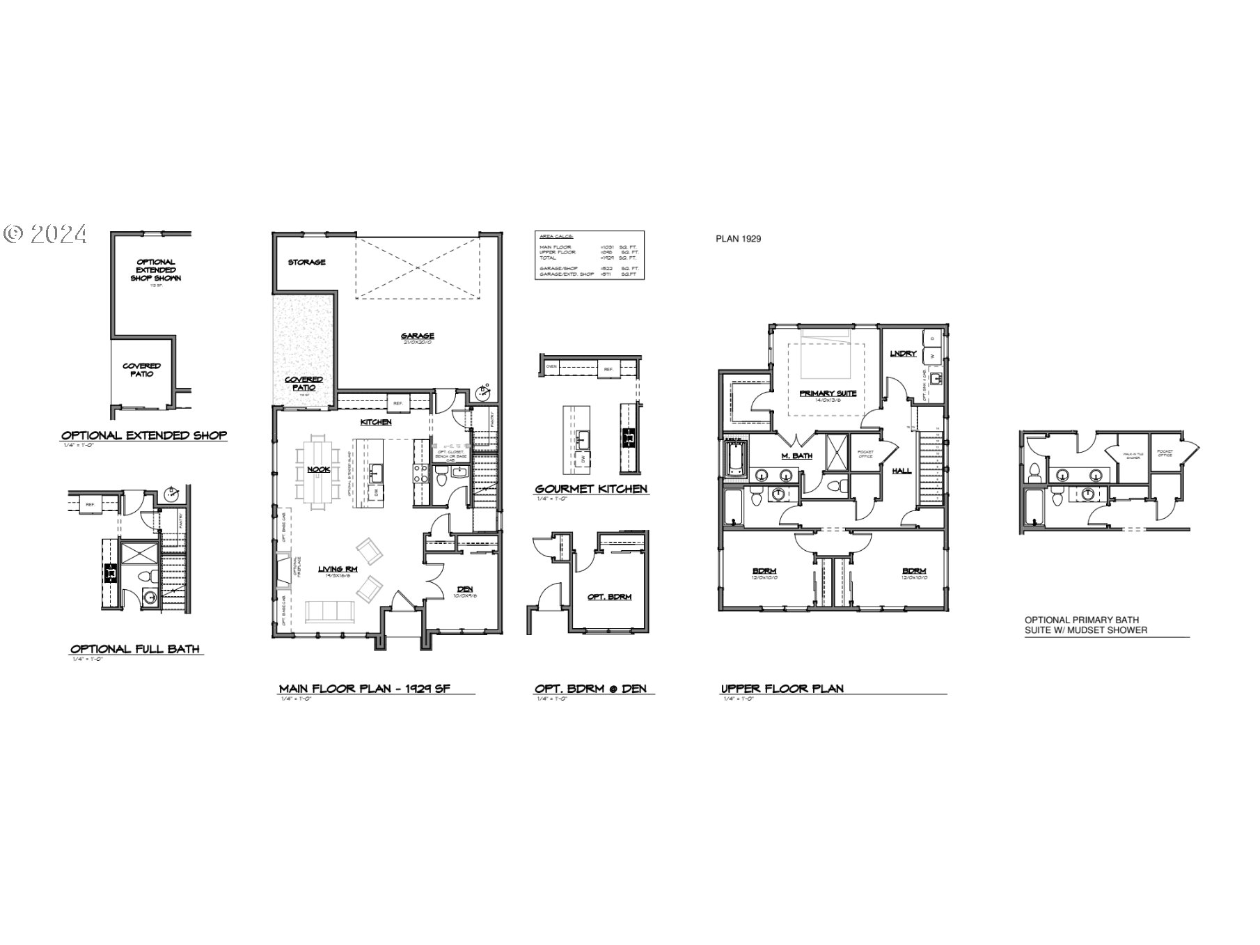
The 1929 floorplan combines thoughtful design with modern comfort. An open-concept main level creates a welcoming space, featuring a generous kitchen island, walk-in pantry, and direct access to a two car garage with soaring ceilings and extra storage. A convenient main-floor bedroom offers flexibility for guests or a home office. Upstairs, the primary suite includes a spa-inspired bath with soaking tub, walk-in shower, and private water closet. Two additional bedrooms complete the upper level. This move-in ready home looks over the street and has available concessions, and below-market financing options, making it both comfortable and affordable. Photos are from a completed home in the same community that has sold. [Home Energy Score = 10. HES Report at https://rpt.greenbuildingregistry.com/hes/OR10226277]
Listing Provided Courtesy of Carolina Flores, SEKISUI HOUSE PNW, INC
General Information
338350481
SingleFamilyResidence
59
DOM
4
3
1929
2025
Washington
New Construction
Tamarack
South Meadows 3/10
Hillsboro 6/10
Residential
SingleFamilyResidence
Reed's Crossing Lot 1344
Listing Provided Courtesy of Carolina Flores, SEKISUI HOUSE PNW, INC
Krishna Realty data last checked: Apr 06, 2026 15:23 | Listing last modified Apr 06, 2026 15:27,
Source:
The 1929 floorplan combines thoughtful design with modern comfort. An open-concept main level creates a welcoming space, featuring a generous kitchen island, walk-in pantry, and direct access to a two car garage with soaring ceilings and extra storage. A convenient main-floor bedroom offers flexibility for guests or a home office. Upstairs, the primary suite includes a spa-inspired bath with soaking tub, walk-in shower, and private water closet. Two additional bedrooms complete the upper level. This move-in ready home looks over the street and has available concessions, and below-market financing options, making it both comfortable and affordable. Photos are from a completed home in the same community that has sold. [Home Energy Score = 10. HES Report at https://rpt.greenbuildingregistry.com/hes/OR10226277]