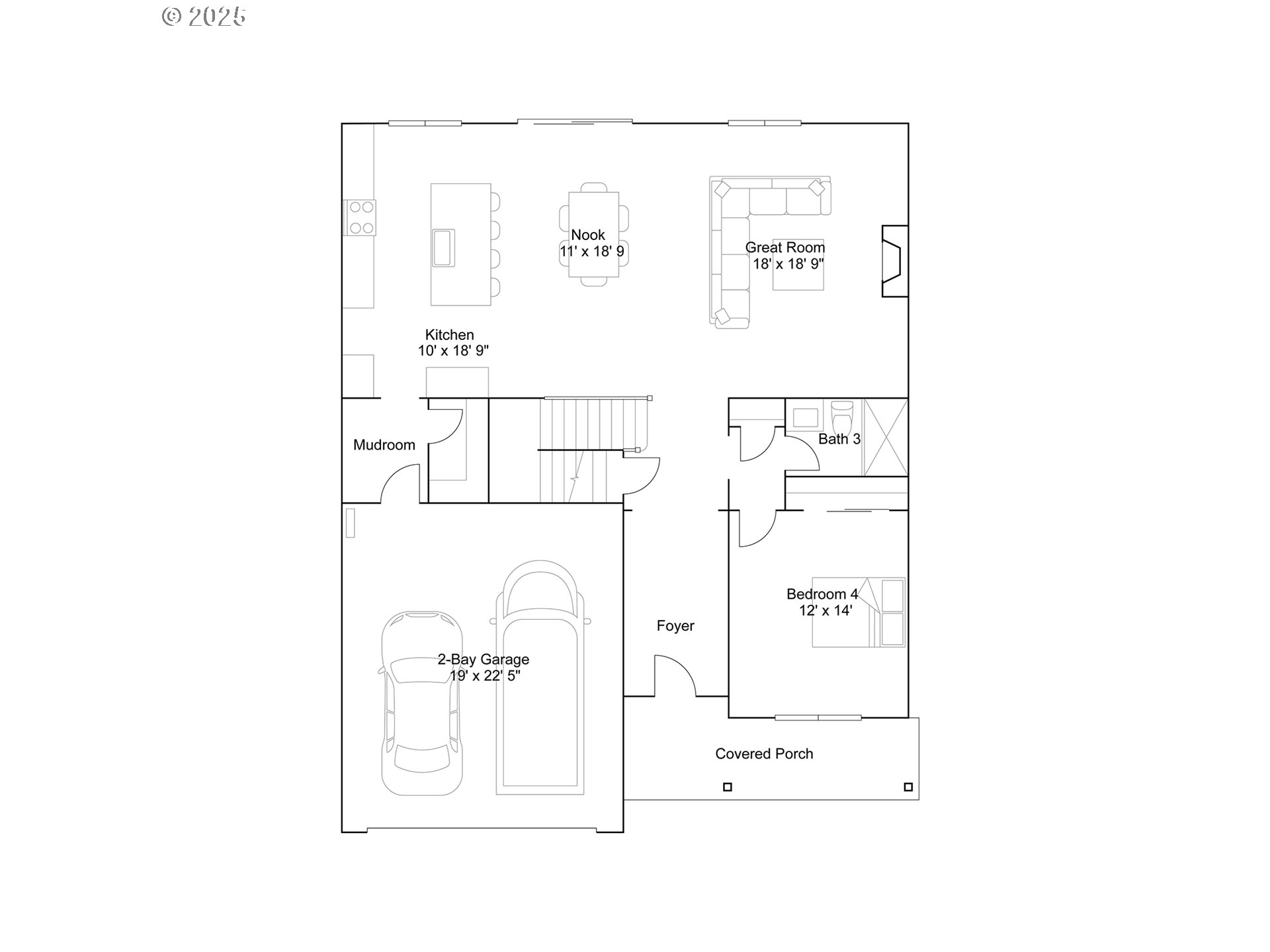
Welcome to Parkview Terrace by Lennar in idyllic Forest Grove. This new construction move-in ready Burlington plan welcomes you with a two-story foyer leading to a main floor secondary bedroom and full bath, perfect for guests or a home office. The open-concept main floor seamlessly connects the kitchen, dining area, and great room with a fireplace, and extends to the fully fenced and landscaped backyard. Upstairs, three bedrooms surround a versatile bonus room. The primary suite is a spacious retreat with a spa-inspired en-suite bathroom featuring a soaking tub, separate shower, dual vanities, and a generous walk-in closet. Interior highlights include quartz countertops, Shaker-style cabinets, LVP (luxury vinyl plank) flooring in the kitchen and entryway, LVT (luxury vinyl tile) flooring in the baths, a fireplace with a floating mantle, and two-tone interior paint. This home also includes central air conditioning, a refrigerator, washer and dryer, and blinds—all at no extra cost! Forest Grove is a charming small town surrounded by vineyards, farmland, and views of the Coast Range. It offers a relaxed, community-focused lifestyle with a historic downtown, local wineries, and easy access to outdoor adventures. It’s the perfect blend of scenic beauty and small-town warmth, all within a short drive of the Portland metro area. Rendering is artist conception only. Photos are of a similar home, features and finishes will vary.
Listing Provided Courtesy of Melissa Ralphe, Lennar Sales Corp
General Information
402677866
SingleFamilyResidence
20
DOM
4
4791.6 SqFt
3
2634
2025
Washington
R2235362
Harvey Clark 6/10
Tom McCall 3/10
Forest Grove 6/10
Residential
SingleFamilyResidence
PARKVIEW TERRACE NO.2, LOT 148, ACRES 0.11
Listing Provided Courtesy of Melissa Ralphe, Lennar Sales Corp
Krishna Realty data last checked: Jan 15, 2026 21:36 | Listing last modified Dec 26, 2025 16:29,
Source:
Welcome to Parkview Terrace by Lennar in idyllic Forest Grove. This new construction move-in ready Burlington plan welcomes you with a two-story foyer leading to a main floor secondary bedroom and full bath, perfect for guests or a home office. The open-concept main floor seamlessly connects the kitchen, dining area, and great room with a fireplace, and extends to the fully fenced and landscaped backyard. Upstairs, three bedrooms surround a versatile bonus room. The primary suite is a spacious retreat with a spa-inspired en-suite bathroom featuring a soaking tub, separate shower, dual vanities, and a generous walk-in closet. Interior highlights include quartz countertops, Shaker-style cabinets, LVP (luxury vinyl plank) flooring in the kitchen and entryway, LVT (luxury vinyl tile) flooring in the baths, a fireplace with a floating mantle, and two-tone interior paint. This home also includes central air conditioning, a refrigerator, washer and dryer, and blinds—all at no extra cost! Forest Grove is a charming small town surrounded by vineyards, farmland, and views of the Coast Range. It offers a relaxed, community-focused lifestyle with a historic downtown, local wineries, and easy access to outdoor adventures. It’s the perfect blend of scenic beauty and small-town warmth, all within a short drive of the Portland metro area. Rendering is artist conception only. Photos are of a similar home, features and finishes will vary.