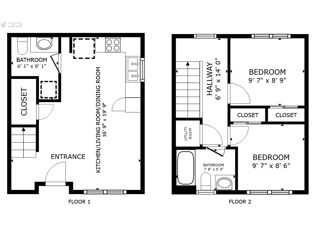
Live smart and live beautifully at Bonita Cottages, designed for low-maintenance living without sacrificing comfort or style. The Sage is the only home of its kind in this boutique new-construction community, a detached 2-bedroom plan offering elevated privacy with no neighboring home on one side and convenient access to its deeded parking space. A modern alternative to condo living, it provides the freedom of a standalone home without shared walls. The bright, open-concept main level features luxury vinyl plank flooring, quartz countertops, stainless steel appliances and painted custom cabinetry. Upstairs, two bedrooms and a full bath offer comfortable retreat and flexible function for work, guests or personal space. Energy-efficient mini-split heating and cooling, durable finishes and quality craftsmanship create a low-maintenance living experience. Located moments from parks, trails, Trader Joe’s, I-5, 99W, Hwy 217 and everyday conveniences. HOA covers common area maintenance. Six homes available across three floor plans; the Sage is the only one of its kind.
Listing Provided Courtesy of Michael McKillion, Keller Williams Sunset Corridor
General Information
594165602
SingleFamilyResidence
26
DOM
2
1.5
756
2025
Washington
New Construction
Durham 8/10
Twality 5/10
Tigard 7/10
Residential
SingleFamilyResidence
to be determined
Listing Provided Courtesy of Michael McKillion, Keller Williams Sunset Corridor
Krishna Realty data last checked: Dec 05, 2025 08:16 | Listing last modified Dec 04, 2025 12:54,
Source:
Open House
Fri, Dec 5th, 2PM to 4PM
Download our Mobile app
Residence Information
378
378
0
756
Builder
756
2
1
1
1.5
Composition
Cottage,Modern
Deeded
2
2025
No
CementSiding
CrawlSpace
CrawlSpace
ConcretePerimeter
DoublePaneWindows,Vi
Commons
Features and Utilities
Dishwasher, Disposal, FreeStandingRange, FreeStandingRefrigerator, Microwave, PlumbedForIceMaker, Quartz, S
Live smart and live beautifully at Bonita Cottages, designed for low-maintenance living without sacrificing comfort or style. The Sage is the only home of its kind in this boutique new-construction community, a detached 2-bedroom plan offering elevated privacy with no neighboring home on one side and convenient access to its deeded parking space. A modern alternative to condo living, it provides the freedom of a standalone home without shared walls. The bright, open-concept main level features luxury vinyl plank flooring, quartz countertops, stainless steel appliances and painted custom cabinetry. Upstairs, two bedrooms and a full bath offer comfortable retreat and flexible function for work, guests or personal space. Energy-efficient mini-split heating and cooling, durable finishes and quality craftsmanship create a low-maintenance living experience. Located moments from parks, trails, Trader Joe’s, I-5, 99W, Hwy 217 and everyday conveniences. HOA covers common area maintenance. Six homes available across three floor plans; the Sage is the only one of its kind.