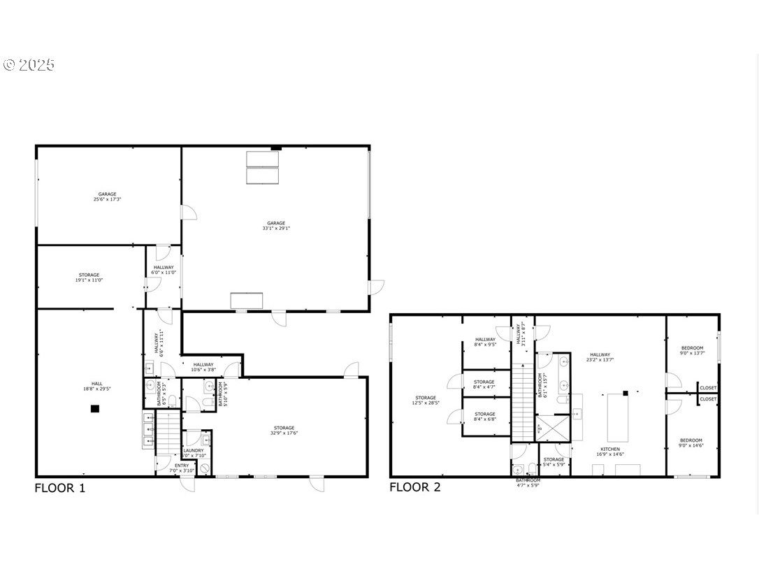
FOR SALE: 516 S 1st Ave, Hillsboro, OR 97123 | Prime IG Zoned Investment Opportunity Unlock the potential of this versatile 7,200 sq ft property located in the heart of Hillsboro’s thriving industrial corridor. Zoned IG (General Industrial), this property offers a rare combination of immediate cash flow and future upside — making it ideal for investors or owner-users. Property Highlights:•Size: 7,200 sq ft•Zoning: IG (General Industrial)•First Floor: Fully leased for 10 years starting at $7,500/month with 10% annual rent increases. New owner option to cancel the existing lease with 90 days notice. Second Floor: Partially leased at $2,500/month. Remaining space includes an approximately 1,400 sq ft, 2-bedroom, 1-bath apartment ready for lease or occupancy. Current CAP Rate: Approximately 9.74%, with strong upside potential. Investment Features: Immediate rental income from established tenants•Additional income opportunity with vacant apartment Flexible IG zoning suitable for a wide variety of industrial, office, or flex space uses. Close proximity to downtown Hillsboro, major arterials, and TriMet access Seller Terms: Seller will consider ALL offers. Seller financing available. Creative financing options welcomed This is a rare chance to secure a well-located, income-producing asset with built-in growth potential. Whether expanding your portfolio or securing a flexible building for your own use, 516 S 1st Ave is a strategic opportunity you don't want to miss. Call today to schedule a private tour and explore the possibilities!
Listing Provided Courtesy of Eric Squires, All Professionals Real Estate
General Information
24148837
LiveWorkUnit
514
DOM
9583.2 SqFt
7200
1975
I-G
Washington
R1322973
CommercialSale
LiveWorkUnit
SIMMONS ADD TO HILLSBORO, LOT PTS 4-6
Listing Provided Courtesy of Eric Squires, All Professionals Real Estate
Krishna Realty data last checked: Feb 22, 2026 00:34 | Listing last modified Feb 22, 2026 00:12,
Source:
FOR SALE: 516 S 1st Ave, Hillsboro, OR 97123 | Prime IG Zoned Investment Opportunity Unlock the potential of this versatile 7,200 sq ft property located in the heart of Hillsboro’s thriving industrial corridor. Zoned IG (General Industrial), this property offers a rare combination of immediate cash flow and future upside — making it ideal for investors or owner-users. Property Highlights:•Size: 7,200 sq ft•Zoning: IG (General Industrial)•First Floor: Fully leased for 10 years starting at $7,500/month with 10% annual rent increases. New owner option to cancel the existing lease with 90 days notice. Second Floor: Partially leased at $2,500/month. Remaining space includes an approximately 1,400 sq ft, 2-bedroom, 1-bath apartment ready for lease or occupancy. Current CAP Rate: Approximately 9.74%, with strong upside potential. Investment Features: Immediate rental income from established tenants•Additional income opportunity with vacant apartment Flexible IG zoning suitable for a wide variety of industrial, office, or flex space uses. Close proximity to downtown Hillsboro, major arterials, and TriMet access Seller Terms: Seller will consider ALL offers. Seller financing available. Creative financing options welcomed This is a rare chance to secure a well-located, income-producing asset with built-in growth potential. Whether expanding your portfolio or securing a flexible building for your own use, 516 S 1st Ave is a strategic opportunity you don't want to miss. Call today to schedule a private tour and explore the possibilities!