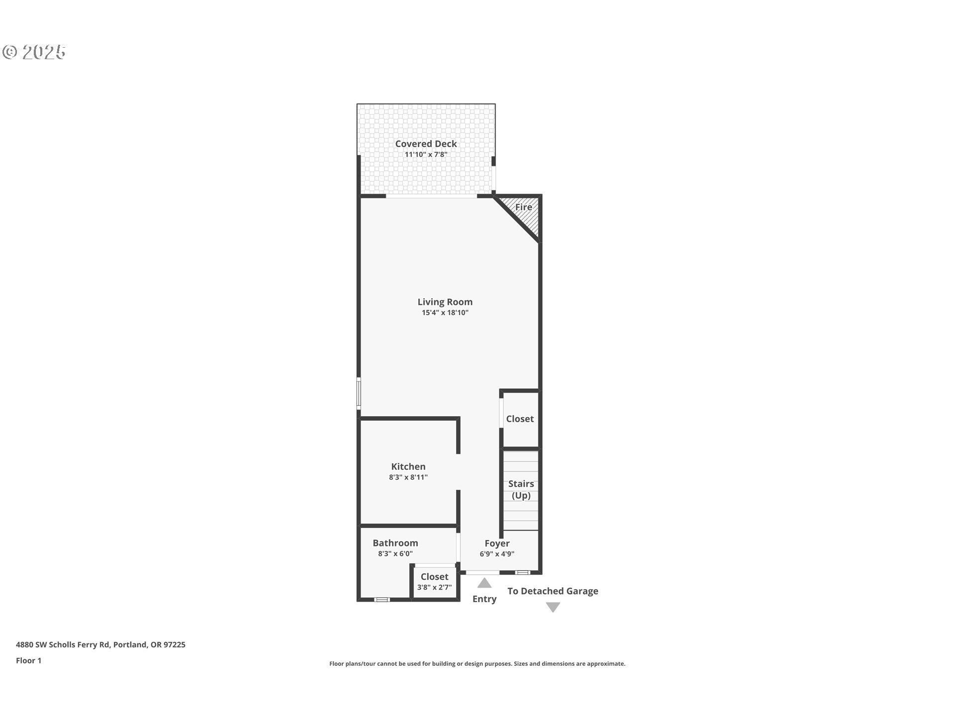
OPEN HOUSES this Saturday, December 20, 1pm-3pm & Sunday, December 21, 2pm-4pm!!! Great opportunity to own in the heart of Raleigh Hills with easy access to shopping, downtown, tech corridor, and parks. Rare end unit townhome in this boutique complex. Great floorplan with additional private outdoor deck space for relaxing or dining. The main floor is very functional with ample-sized kitchen, good counter space, and eating bar. Newer laminate floors in the combination dinging room/living room. Updated fireplace, and wall of glass with a sliding door to the outside. Upstairs you will find two nice sized bedrooms and two full bathrooms. Complete with a hard-to-find detached garage. Fenced backyard allows for privacy as well as nice views and treed setting.
Listing Provided Courtesy of Chris Suarez, Keller Williams Sunset Corridor
General Information
212210843
Condominium
1
DOM
2
1.5
1180
1980
Washington
R1202148
Raleigh Hills 4/10
Whitford
Beaverton
Residential
Condominium
RALEIGHWOOD TOWNHOUSE CONDO, BLOCK 6, LOT 32
Listing Provided Courtesy of Chris Suarez, Keller Williams Sunset Corridor
Krishna Realty data last checked: Dec 19, 2025 05:16 | Listing last modified Dec 19, 2025 00:35,
Source:
Open House
Sat, Dec 20th, 1PM to 3PM
Sun, Dec 21st, 2PM to 4PM
Download our Mobile app
Residence Information
590
590
0
1180
HOA
1180
1/Gas
2
1
1
1.5
Composition
1, Detached
CommonWall,Townhouse
OffStreet
2
1980
No
Cedar
None
None
Slab
VinylFrames
ExteriorMaintenance,
Features and Utilities
Quartz
Deck, Patio
HeatPump
Electricity
ForcedAir
PublicSewer
Electricity
Electricity
Financial
3462.8
1
466 / Month
Cash,Conventional
12-18-2025
No
No
Comparable Information
1
1
Cash,Conventional
$335,000
$335,000
Dec 19, 2025 00:35
Schools
public Elementary : Raleigh Hills
4/10Ratings Middle : Whitford N/ARatings High : BeavertonN/ARatings
Map
Listing courtesy of Keller Williams Sunset Corridor.
OPEN HOUSES this Saturday, December 20, 1pm-3pm & Sunday, December 21, 2pm-4pm!!! Great opportunity to own in the heart of Raleigh Hills with easy access to shopping, downtown, tech corridor, and parks. Rare end unit townhome in this boutique complex. Great floorplan with additional private outdoor deck space for relaxing or dining. The main floor is very functional with ample-sized kitchen, good counter space, and eating bar. Newer laminate floors in the combination dinging room/living room. Updated fireplace, and wall of glass with a sliding door to the outside. Upstairs you will find two nice sized bedrooms and two full bathrooms. Complete with a hard-to-find detached garage. Fenced backyard allows for privacy as well as nice views and treed setting.