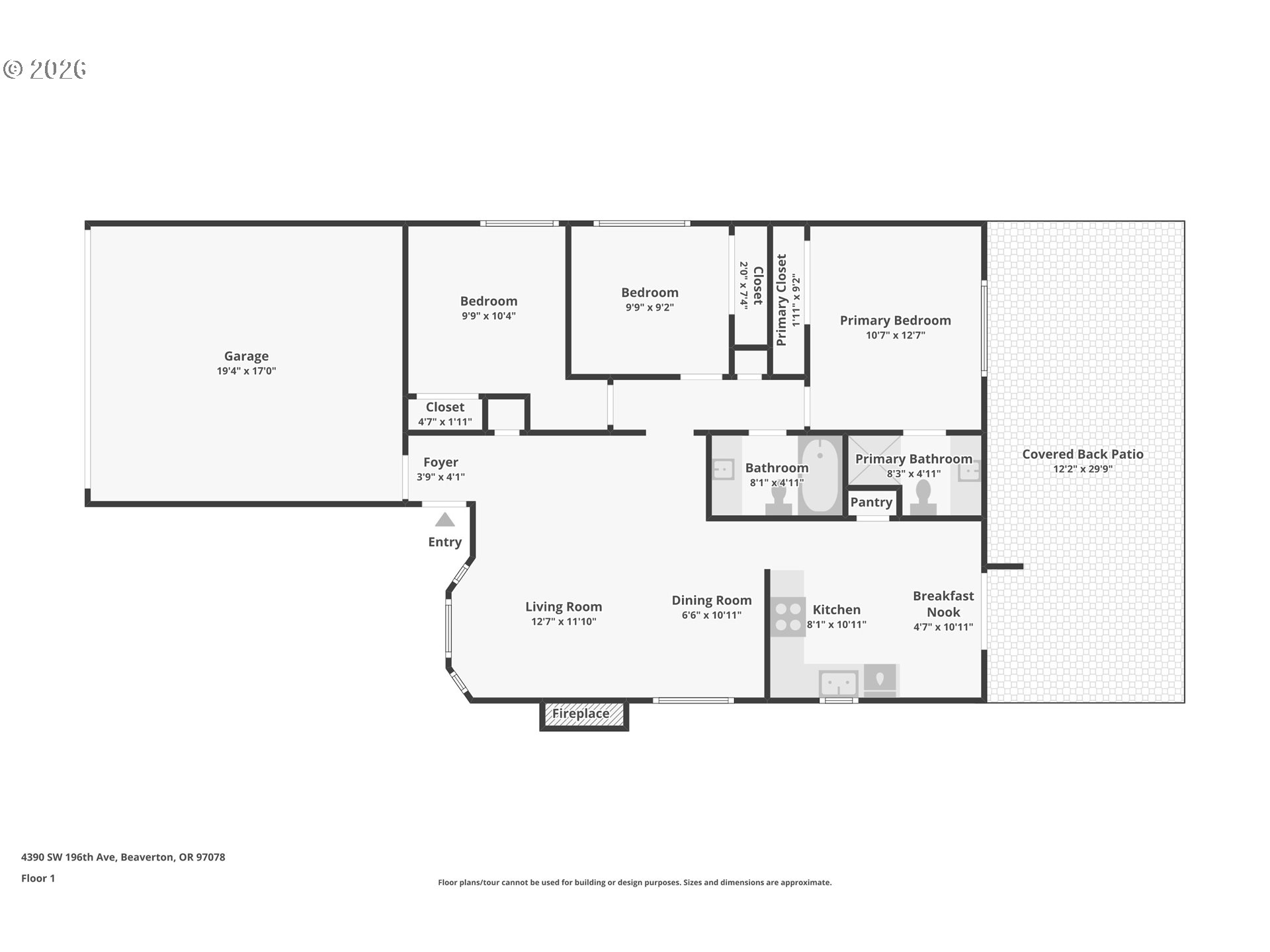
Move-in ready and dialed in — this Beaverton ranch sits on a spacious 0.33-acre lot with mature landscaping that feels more like a private park than a backyard. The covered patio sets the stage for year-round indoor/outdoor living, whether you’re hosting friends, planting a garden, or just enjoying a quiet evening outside. The detached shed with electricity is a serious bonus — ideal for a workshop, hobby space, or a separate office setup. Big-ticket upgrades are already handled: new furnace and water heater (2024), new roof & VELUX skylights (2025). Inside, you’ll find fresh flooring, interior paint, updated countertops, new dishwasher and range, new toilets, modern lighting, and refreshed door and cabinet hardware. It’s clean, updated, and ready for its next chapter. Set on a quiet street in a sought-after Beaverton neighborhood known for larger lots, you’ll have easy access to parks, trails, shopping, dining, and major employers. Access to Aloha Swim Center. Quick access to Hwy 26 keeps commuting simple while you still get that comfortable suburban feel. Space, updates, and location — this one checks the boxes. Mortgage savings may be available for buyers of this listing.
Listing Provided Courtesy of Cinnamin Webb, Redfin
General Information
585635684
SingleFamilyResidence
35
DOM
3
0.33 acres
2
1130
2003
Washington
R363546
Kinnaman 4/10
Mountain View
Aloha 8/10
Residential
SingleFamilyResidence
WHEELER'S SUBDIVISION, LOT PT 3, ACRES 0.33
Listing Provided Courtesy of Cinnamin Webb, Redfin
Krishna Realty data last checked: Feb 22, 2026 06:35 | Listing last modified Feb 12, 2026 18:54,
Source:
Move-in ready and dialed in — this Beaverton ranch sits on a spacious 0.33-acre lot with mature landscaping that feels more like a private park than a backyard. The covered patio sets the stage for year-round indoor/outdoor living, whether you’re hosting friends, planting a garden, or just enjoying a quiet evening outside. The detached shed with electricity is a serious bonus — ideal for a workshop, hobby space, or a separate office setup. Big-ticket upgrades are already handled: new furnace and water heater (2024), new roof & VELUX skylights (2025). Inside, you’ll find fresh flooring, interior paint, updated countertops, new dishwasher and range, new toilets, modern lighting, and refreshed door and cabinet hardware. It’s clean, updated, and ready for its next chapter. Set on a quiet street in a sought-after Beaverton neighborhood known for larger lots, you’ll have easy access to parks, trails, shopping, dining, and major employers. Access to Aloha Swim Center. Quick access to Hwy 26 keeps commuting simple while you still get that comfortable suburban feel. Space, updates, and location — this one checks the boxes. Mortgage savings may be available for buyers of this listing.