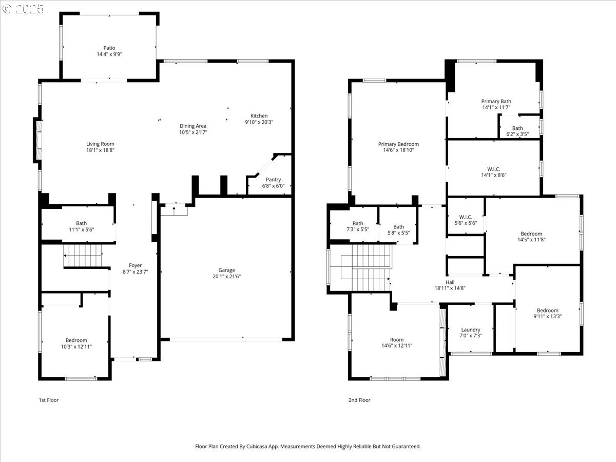
Luxury meets efficiency in the heart of Reeds Crossing! Come view this thoughtfully designed contemporary home built by ICHIJO TECHNOLOGICAL HOMES. This Earth Advantage Certified home has the highest efficiency rating with a precision wall panel system providing comfort and massive energy savings. Open concept floorplan with high ceilings, a quartz kitchen island, stainless steel appliances, piano finish soft close cabinetry with pull-down shelving, cabinet organizers, under cabinet lighting, and sleek interior doors. This must see home features 4 bedrooms plus an upstairs bonus/family room with a modern electric fireplace, an upstairs laundry room, and a large primary bedroom with a vaulted ceiling, huge walk-in closet and 5 piece bathroom. There is a bedroom and full bathroom on the main level perfect for guests. Lots of storage in the garage as well as being wired with 240v for electric vehicle charging. Fenced backyard with large covered patio and gas stub for BBQ. Miles of trails, several parks, and a short walk to dining options and new grocery store. Concessions available! Seller is open to contributing to buyers closing costs and/or rate buydown. [Home Energy Score = 10. HES Report at https://rpt.greenbuildingregistry.com/hes/OR10209705]
Listing Provided Courtesy of Dennie Frank, Berkshire Hathaway HomeServices NW Real Estate
General Information
233724907
SingleFamilyResidence
105
DOM
4
4791.6 SqFt
3
2920
2022
Washington
R2218073
Tamarack
South Meadows 3/10
Hillsboro 6/10
Residential
SingleFamilyResidence
REEDS CROSSING NO.8, LOT 769, ACRES 0.11
Listing Provided Courtesy of Dennie Frank, Berkshire Hathaway HomeServices NW Real Estate
Krishna Realty data last checked: Mar 17, 2026 15:39 | Listing last modified Mar 05, 2026 17:38,
Source:
Luxury meets efficiency in the heart of Reeds Crossing! Come view this thoughtfully designed contemporary home built by ICHIJO TECHNOLOGICAL HOMES. This Earth Advantage Certified home has the highest efficiency rating with a precision wall panel system providing comfort and massive energy savings. Open concept floorplan with high ceilings, a quartz kitchen island, stainless steel appliances, piano finish soft close cabinetry with pull-down shelving, cabinet organizers, under cabinet lighting, and sleek interior doors. This must see home features 4 bedrooms plus an upstairs bonus/family room with a modern electric fireplace, an upstairs laundry room, and a large primary bedroom with a vaulted ceiling, huge walk-in closet and 5 piece bathroom. There is a bedroom and full bathroom on the main level perfect for guests. Lots of storage in the garage as well as being wired with 240v for electric vehicle charging. Fenced backyard with large covered patio and gas stub for BBQ. Miles of trails, several parks, and a short walk to dining options and new grocery store. Concessions available! Seller is open to contributing to buyers closing costs and/or rate buydown. [Home Energy Score = 10. HES Report at https://rpt.greenbuildingregistry.com/hes/OR10209705]