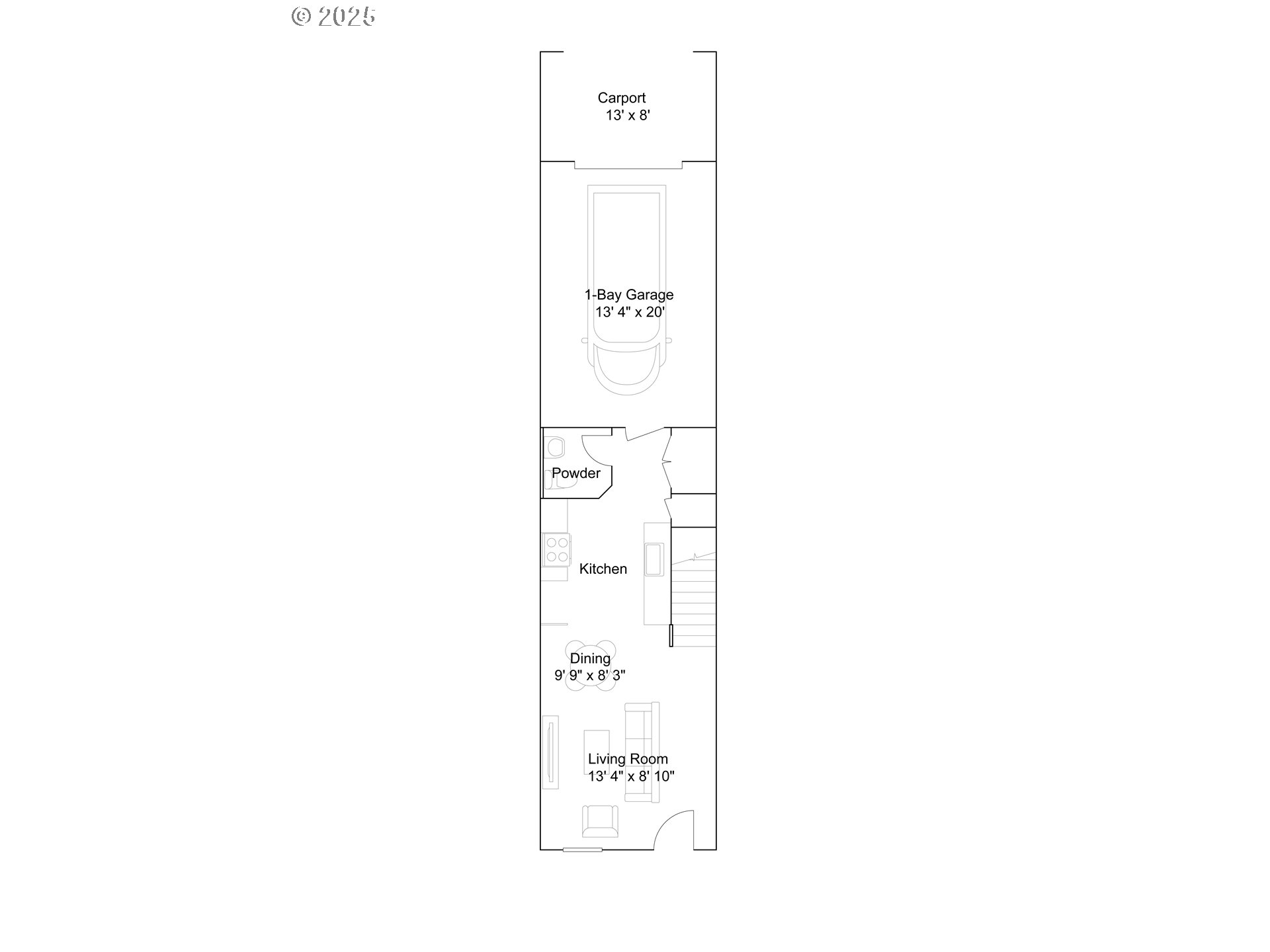
This new construction home is located in Reed's Crossing, a vibrant community minutes from major employers with more than 36 acres of open spaces connected by paths, a Town Center featuring shopping and dining, and access to highly rated schools. The Alexa plan offers a modern two-story design with a flexible open-concept main floor that combines the kitchen, dining area and living room. The second floor provides a versatile loft surrounded by two spacious primary suites, each with a private bath and walk-in closet. Interior highlights include quartz countertops, Shaker-style cabinets, LVP flooring in the kitchen and entry, LVT in the baths, and two-tone interior paint. It also includes central air conditioning, a refrigerator, washer and dryer, and blinds—all at no extra cost! Located on homesite 1633, this home is move in ready. Rendering is artist conception only. Photos are of a similar home, features and finishes will vary. Flex credit/closing cost incentive available when financing with preferred lender! Use towards rate buydown and closing costs. [Home Energy Score = 10. HES Report at https://rpt.greenbuildingregistry.com/hes/OR10242881]
Listing Provided Courtesy of David McDuffee, Lennar Sales Corp
General Information
277393144
Attached
168
DOM
2
2.5
1288
2026
Washington
R2233994
Rosedale
South Meadows 3/10
Hillsboro 6/10
Residential
Attached
Reeds Crossing, Lot 1633
Listing Provided Courtesy of David McDuffee, Lennar Sales Corp
Krishna Realty data last checked: Feb 22, 2026 06:24 | Listing last modified Feb 20, 2026 14:04,
Source:
Download our Mobile app
Residence Information
826
462
0
1288
Builder
1288
2
2
1
2.5
Composition
1, Attached
Stories2
2
2026
Yes
CementSiding
CrawlSpace
CrawlSpace
ConcretePerimeter
DoublePaneWindows,Vi
FrontYardLandscaping
Features and Utilities
Dishwasher, Disposal, FreeStandingGasRange, FreeStandingRefrigerator, GasAppliances, Microwave, Quartz, Sta
Laundry, LuxuryVinylPlank, Quartz, WasherDryer
CentralAir
Gas, Tankless
ForcedAir95Plus
PublicSewer
Gas, Tankless
Gas
Financial
0
1
250 / Month
Cash,Conventional,FHA,VALoan
09-05-2025
No
No
Comparable Information
168
170
Cash,Conventional,FHA,VALoan
$399,900
$332,900
Feb 20, 2026 14:04
Schools
Elementary : RosedaleN/ARatingspublic Middle : South Meadows
3/10Ratingspublic High : Hillsboro
6/10Ratings
This new construction home is located in Reed's Crossing, a vibrant community minutes from major employers with more than 36 acres of open spaces connected by paths, a Town Center featuring shopping and dining, and access to highly rated schools. The Alexa plan offers a modern two-story design with a flexible open-concept main floor that combines the kitchen, dining area and living room. The second floor provides a versatile loft surrounded by two spacious primary suites, each with a private bath and walk-in closet. Interior highlights include quartz countertops, Shaker-style cabinets, LVP flooring in the kitchen and entry, LVT in the baths, and two-tone interior paint. It also includes central air conditioning, a refrigerator, washer and dryer, and blinds—all at no extra cost! Located on homesite 1633, this home is move in ready. Rendering is artist conception only. Photos are of a similar home, features and finishes will vary. Flex credit/closing cost incentive available when financing with preferred lender! Use towards rate buydown and closing costs. [Home Energy Score = 10. HES Report at https://rpt.greenbuildingregistry.com/hes/OR10242881]