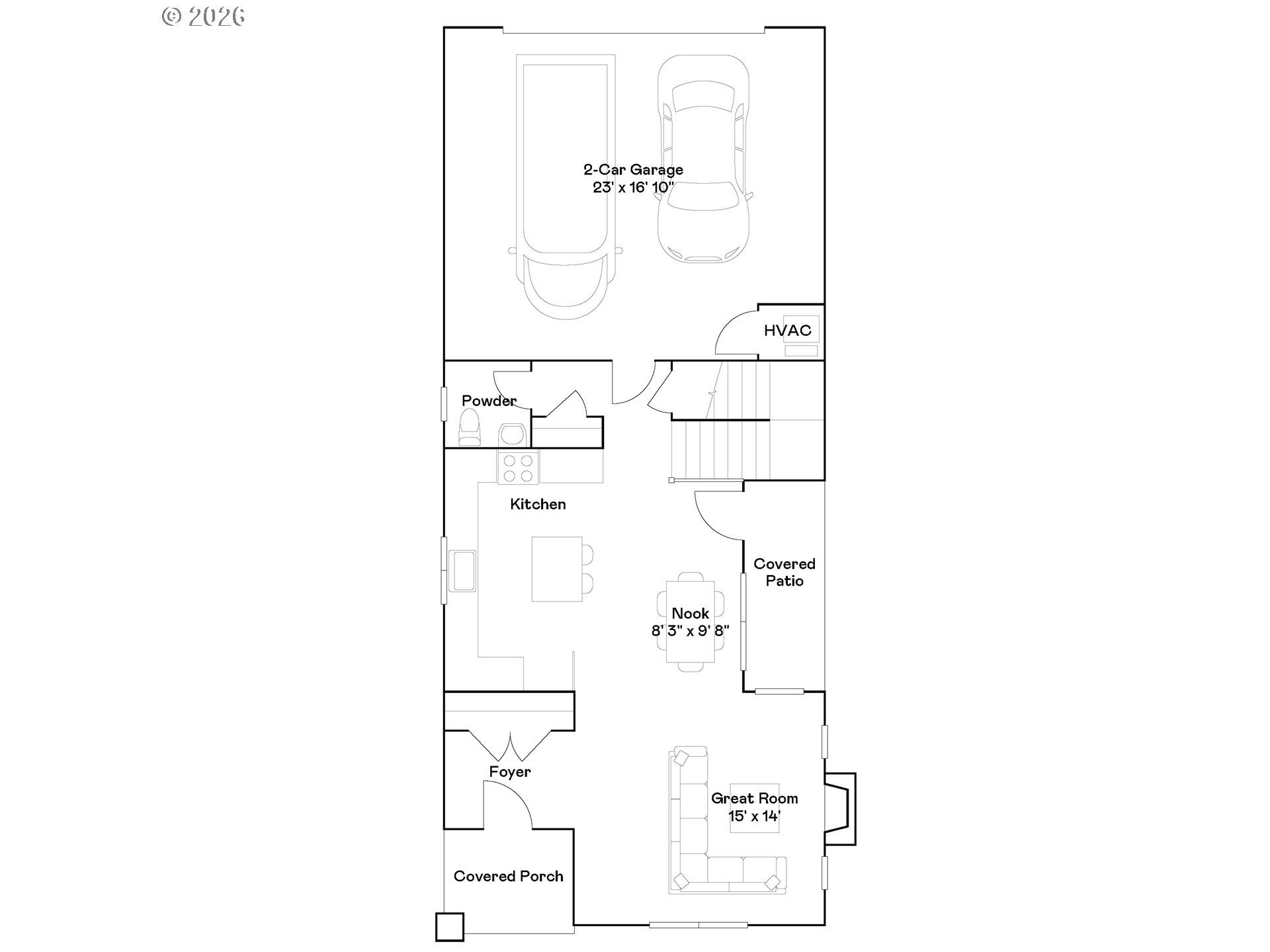
Welcome to Brynhill by Lennar and the Savoie plan in beautiful North Plains. This two-story home features a spacious open floorplan on the first level where the great room with a cozy fireplace, U-shaped kitchen with island, and dining nook create a comfortable gathering space with direct access to a covered patio for outdoor enjoyment. Upstairs are four bedrooms, including a generous primary suite with a private en-suite bath featuring a double vanity, separate shower and soaking tub, and a walk-in closet. Interior highlights include quartz countertops, Shaker-style cabinets, LVP (luxury vinyl plank) flooring in the kitchen and entryway, and LVT (luxury vinyl tile) flooring in the baths. This home also includes central air conditioning, a refrigerator, washer and dryer, and blinds—all at no extra cost! This brand-new community offers multiple onsite parks with pickleball, basketball, a putting green, a cornhole area, playgrounds, and picnic areas. Rendering is artist conception only. Photos are of a similar home, features and finishes will vary. Homesite 422. *Flex credit/closing cost incentive available when financing with preferred lender! Use towards rate buydown and closing costs.*
Listing Provided Courtesy of Jason Merritt, Lennar Sales Corp
General Information
322028807
SingleFamilyResidence
39
DOM
4
3049.2 SqFt
2.5
1879
2026
Washington
R2235251
North Plains 8/10
Evergreen
Glencoe
Residential
SingleFamilyResidence
BRYNHILL NO.5, LOT 422, ACRES 0.07
Listing Provided Courtesy of Jason Merritt, Lennar Sales Corp
Krishna Realty data last checked: Mar 17, 2026 00:01 | Listing last modified Feb 28, 2026 11:42,
Source:
Welcome to Brynhill by Lennar and the Savoie plan in beautiful North Plains. This two-story home features a spacious open floorplan on the first level where the great room with a cozy fireplace, U-shaped kitchen with island, and dining nook create a comfortable gathering space with direct access to a covered patio for outdoor enjoyment. Upstairs are four bedrooms, including a generous primary suite with a private en-suite bath featuring a double vanity, separate shower and soaking tub, and a walk-in closet. Interior highlights include quartz countertops, Shaker-style cabinets, LVP (luxury vinyl plank) flooring in the kitchen and entryway, and LVT (luxury vinyl tile) flooring in the baths. This home also includes central air conditioning, a refrigerator, washer and dryer, and blinds—all at no extra cost! This brand-new community offers multiple onsite parks with pickleball, basketball, a putting green, a cornhole area, playgrounds, and picnic areas. Rendering is artist conception only. Photos are of a similar home, features and finishes will vary. Homesite 422. *Flex credit/closing cost incentive available when financing with preferred lender! Use towards rate buydown and closing costs.*