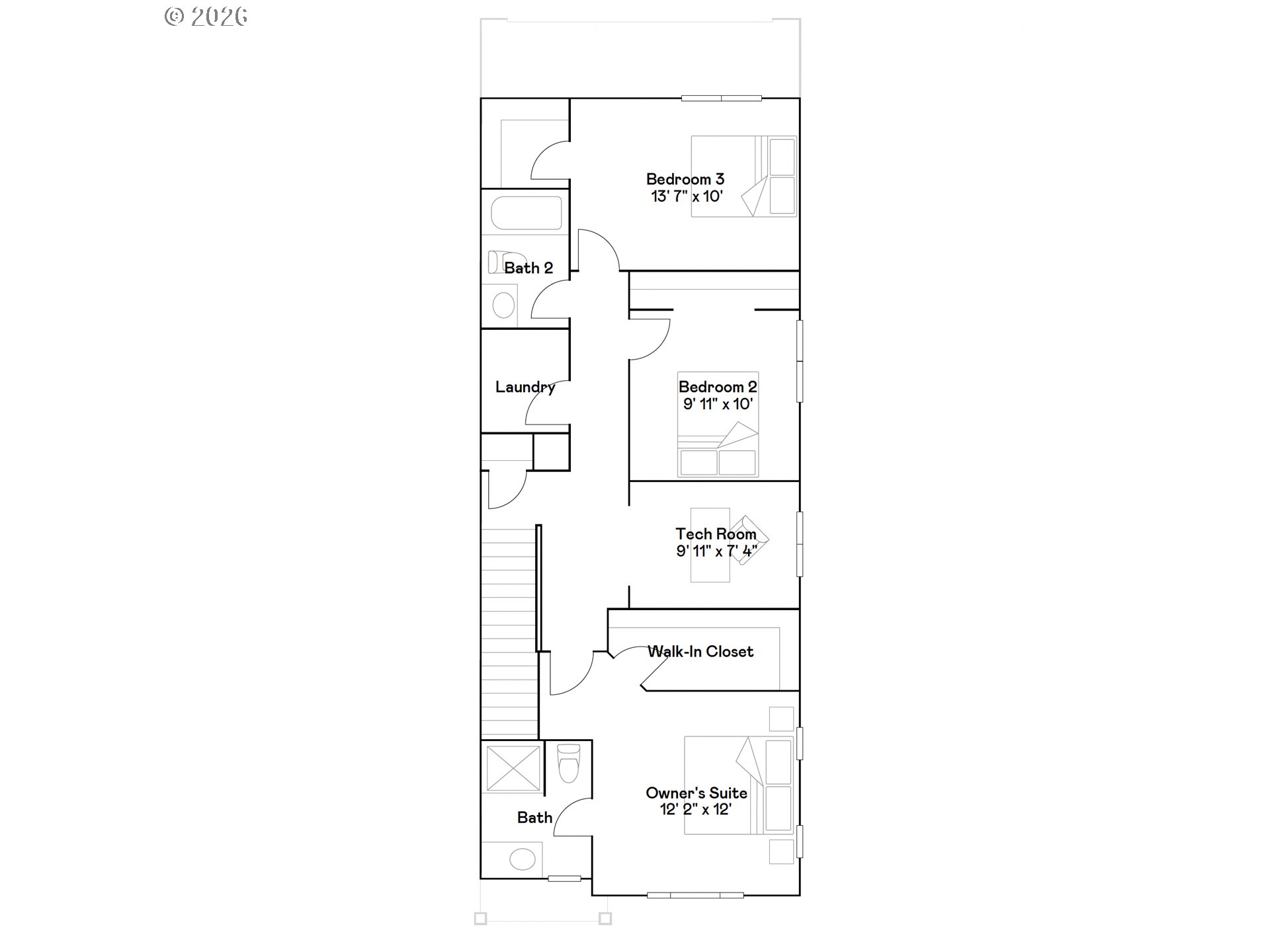
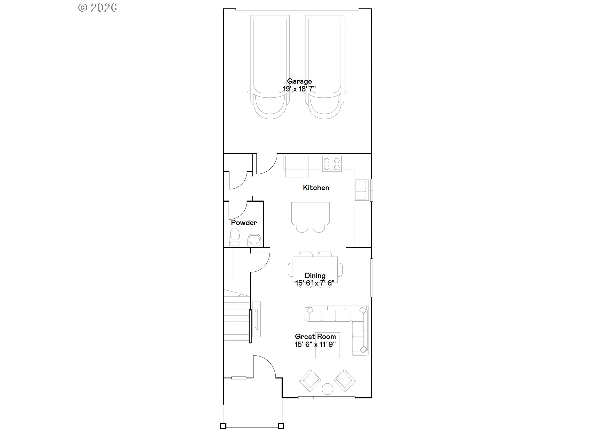
The Madeline floorplan is located in the Brynhill community, featuring a bright and open layout. The great room, kitchen, and dining room are arranged on the first level, while a tech space on the second floor provides a quiet spot for work or study. All three bedrooms are upstairs including the spacious primary suite with a luxe private bath and walk-in closet. EVERYTHING'S INCLUDED - meaning Blinds, Air Conditioning, all kitchen appliances and laundry appliances, EV charging, Solar Ready all are included in the sale at no extra cost. Brynhill is a master-planned community in North Plains offering access to numerous parks, several play structures, basketball court, pickleball court, footsal court, amphitheater, miniature golf, cornhole, bocceball, and nearby Golf Course. Incentives available with the use of our preferred lender! Rendering is an artist's conception of the finished home. Interior photos are of a similar home, features and finishes will vary. HOMESITE 383.
Listing Provided Courtesy of Jason Merritt, Lennar Sales Corp
General Information
313821162
Attached
1
DOM
3
1742.4 SqFt
2.5
1559
2026
Washington
R2235212
North Plains 8/10
Evergreen
Glencoe
Residential
Attached
BRYNHILL NO.5, LOT 383, ACRES 0.05
Listing Provided Courtesy of Jason Merritt, Lennar Sales Corp
Krishna Realty data last checked: Mar 14, 2026 07:39 | Listing last modified Mar 13, 2026 08:21,
Source:
The Madeline floorplan is located in the Brynhill community, featuring a bright and open layout. The great room, kitchen, and dining room are arranged on the first level, while a tech space on the second floor provides a quiet spot for work or study. All three bedrooms are upstairs including the spacious primary suite with a luxe private bath and walk-in closet. EVERYTHING'S INCLUDED - meaning Blinds, Air Conditioning, all kitchen appliances and laundry appliances, EV charging, Solar Ready all are included in the sale at no extra cost. Brynhill is a master-planned community in North Plains offering access to numerous parks, several play structures, basketball court, pickleball court, footsal court, amphitheater, miniature golf, cornhole, bocceball, and nearby Golf Course. Incentives available with the use of our preferred lender! Rendering is an artist's conception of the finished home. Interior photos are of a similar home, features and finishes will vary. HOMESITE 383.