This one is truly special. Fully renovated and rich with mid-century modern charm, this three-bedroom, two-bath home blends iconic design with thoughtful, high-quality updates throughout. The layout is open and intuitive, anchored by a large kitchen with an oversized island that invites gathering, entertaining, and everyday living. Designer finishes are layered throughout the home, including two striking Herman Miller Nelson pendants that nod to the home’s design-forward roots. Two fireplaces add warmth, character, and a sense of timeless comfort, while a brand-new roof provides confidence for years to come. Set on a prominent corner lot, the home offers incredible street appeal with clean lines and intentional details that stand out immediately. The neighborhood is quiet and peaceful, yet well connected, with access to a nearby community pool. From curb to interior, every detail feels considered. A rare opportunity to own a home that is both architecturally inspired and completely move-in ready. [Home Energy Score = 2. HES Report at https://rpt.greenbuildingregistry.com/hes/OR10244053]
Listing Provided Courtesy of Ben Rezac, Opt
General Information
757395295
SingleFamilyResidence
71
DOM
3
10018.8 SqFt
2
1729
1972
Washington
R331778
Minter Bridge 3/10
Brown 7/10
Hillsboro 6/10
Residential
SingleFamilyResidence
EDWARDS MEADOWS, BLOCK 2, LOT 20, ACRES 0.23
Listing Provided Courtesy of Ben Rezac, Opt
Krishna Realty data last checked: Apr 27, 2026 01:43 | Listing last modified Apr 16, 2026 07:44,
Source:
Download our Mobile app
Residence Information
0
1729
0
1729
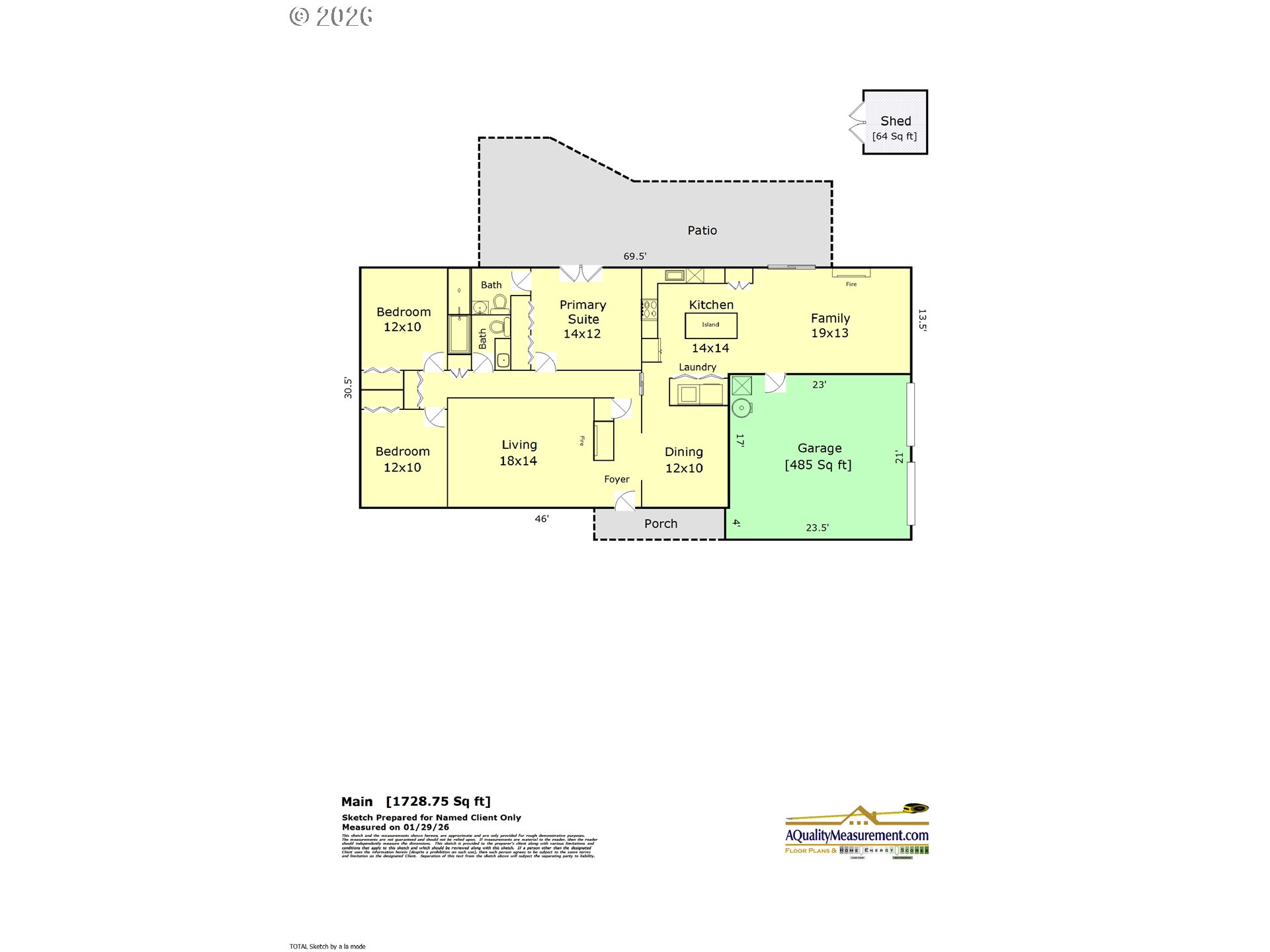
Floor Plan
1729
1/Gas
3
2
0
2
Composition,Shingle
2, Attached
MidCenturyModern,Ranch
Driveway,OffStreet
1
1972
Yes
BoardBattenSiding
CrawlSpace
CrawlSpace
ConcretePerimeter
DoublePaneWindows,Vi
Features and Utilities
Fireplace, UpdatedRemodeled
Dishwasher, Disposal, FreeStandingRange, FreeStandingRefrigerator, Island, Quartz, RangeHood
This one is truly special. Fully renovated and rich with mid-century modern charm, this three-bedroom, two-bath home blends iconic design with thoughtful, high-quality updates throughout. The layout is open and intuitive, anchored by a large kitchen with an oversized island that invites gathering, entertaining, and everyday living. Designer finishes are layered throughout the home, including two striking Herman Miller Nelson pendants that nod to the home’s design-forward roots. Two fireplaces add warmth, character, and a sense of timeless comfort, while a brand-new roof provides confidence for years to come. Set on a prominent corner lot, the home offers incredible street appeal with clean lines and intentional details that stand out immediately. The neighborhood is quiet and peaceful, yet well connected, with access to a nearby community pool. From curb to interior, every detail feels considered. A rare opportunity to own a home that is both architecturally inspired and completely move-in ready. [Home Energy Score = 2. HES Report at https://rpt.greenbuildingregistry.com/hes/OR10244053]