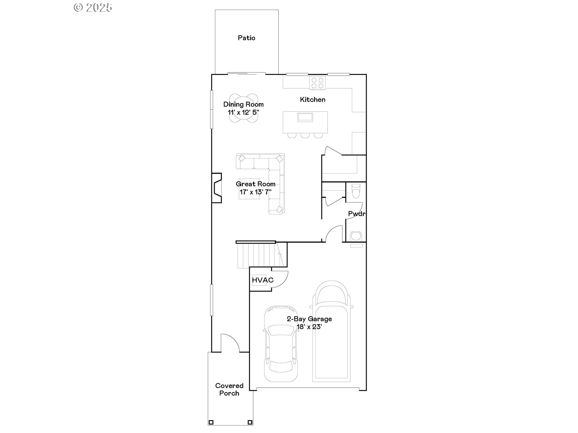
This new construction townhome is located in Autumn Sunrise, a community with a basketball court, playground, and picnic space. The Stella plan features a two-story layout with a main floor that brings together the great room, kitchen and dining area, extending out to the patio. A fireplace creates a cozy focal point, while upstairs a versatile loft is surrounded by three bedrooms, including the primary suite with a connected bath featuring a double vanity and walk-in closet. Interior highlights include quartz countertops, shaker-style cabinets, LVP flooring in the kitchen and entryway, LVT flooring in the baths, two-tone interior paint, fencing, and front yard landscaping. This home also includes central air conditioning, a refrigerator, washer and dryer, and blinds—all at no extra cost! Located on homesite 249, this home is expected to be complete in March 2026. Rendering is artist conception only. Photos are of a similar home, features and finishes will vary. *Below-market rate incentives available when financing with preferred lender.*
Listing Provided Courtesy of Anastasia Gordeev, Lennar Sales Corp
General Information
408713545
Attached
2
DOM
3
3049.2 SqFt
2.5
2004
2026
Washington
R2234175
Hawks View
Sherwood
Sherwood
Residential
Attached
AUTUMN SUNRISE NO.3, LOT 249, ACRES 0.07
Listing Provided Courtesy of Anastasia Gordeev, Lennar Sales Corp
Krishna Realty data last checked: Mar 01, 2026 03:56 | Listing last modified Feb 28, 2026 16:58,
Source:
Download our Mobile app
Residence Information
1194
810
0
2004
Builder
2004
1/Gas
3
2
1
2.5
Composition
2, Attached
Stories2,Farmhouse
Driveway
2
2026
No
CementSiding
CrawlSpace
CrawlSpace
ConcretePerimeter
DoublePaneWindows,Vi
Commons, Management
Features and Utilities
Dishwasher, Disposal, FreeStandingGasRange, Island, Microwave, Pantry, PlumbedForIceMaker, Quartz
This new construction townhome is located in Autumn Sunrise, a community with a basketball court, playground, and picnic space. The Stella plan features a two-story layout with a main floor that brings together the great room, kitchen and dining area, extending out to the patio. A fireplace creates a cozy focal point, while upstairs a versatile loft is surrounded by three bedrooms, including the primary suite with a connected bath featuring a double vanity and walk-in closet. Interior highlights include quartz countertops, shaker-style cabinets, LVP flooring in the kitchen and entryway, LVT flooring in the baths, two-tone interior paint, fencing, and front yard landscaping. This home also includes central air conditioning, a refrigerator, washer and dryer, and blinds—all at no extra cost! Located on homesite 249, this home is expected to be complete in March 2026. Rendering is artist conception only. Photos are of a similar home, features and finishes will vary. *Below-market rate incentives available when financing with preferred lender.*