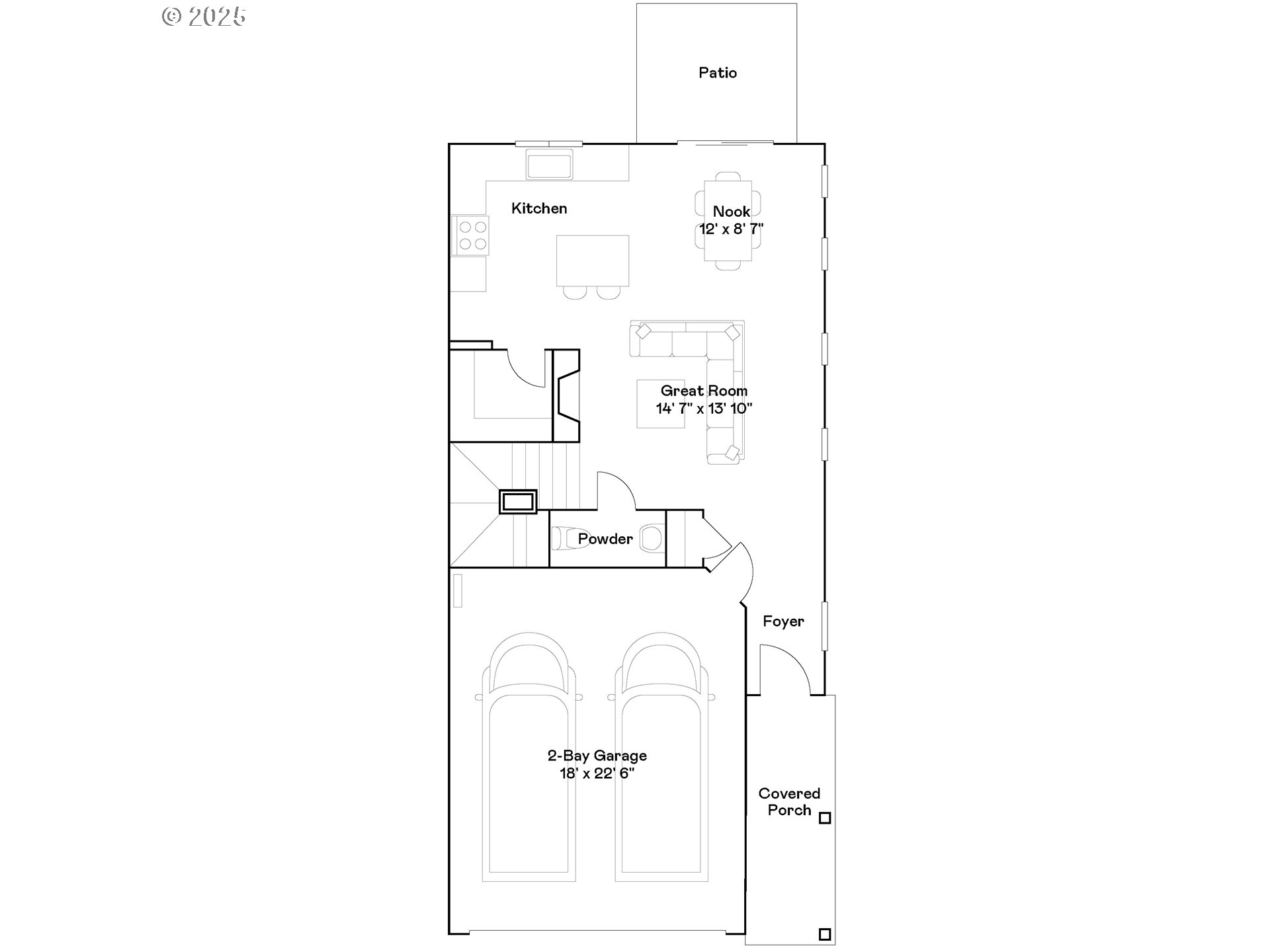
Welcome to Autumn Sunrise by Lennar in Tualatin. The new-construction Blairmont plan offers a modern two-story layout with a fireplace-warmed great room that connects to the kitchen, dining area, and rear patio for easy indoor-outdoor living. Upstairs, two secondary bedrooms and a convenient laundry room surround the spacious primary suite featuring an en-suite bath with a soaking tub, separate walk-in shower, double vanity, and walk-in closet. Interior finishes include quartz countertops, Shaker-style cabinetry, LVP (luxury vinyl plank) flooring in the kitchen and entry way, LVT (luxury vinyl tile) flooring in bathrooms, two-tone interior paint, fencing, and landscaping. This home also includes central air conditioning, a refrigerator, washer and dryer, and blinds—all at no extra cost! Autumn Sunrise is a vibrant community minutes from I-5, shopping, and dining, featuring an onsite park with a playground, fire pit, and a basketball court. Nestled between Wilsonville and Tualatin, residents enjoy nearby access to Bridgeport Village, the Willamette River, golf courses, and Costco. Rendering is artist conception only. Photos are of a similar home, features and finishes will vary. Estimated completion is June '26. Homesite 252.
Listing Provided Courtesy of Anastasia Gordeev, Lennar Sales Corp
General Information
661224214
SingleFamilyResidence
65
DOM
3
3484.8 SqFt
2.5
1781
2026
Washington
R2234178
Hawks View
Sherwood
Sherwood
Residential
SingleFamilyResidence
AUTUMN SUNRISE NO.3, LOT 252, ACRES 0.08
Listing Provided Courtesy of Anastasia Gordeev, Lennar Sales Corp
Krishna Realty data last checked: Apr 26, 2026 17:25 | Listing last modified Apr 24, 2026 17:30,
Source:
Download our Mobile app
Residence Information
1087
694
0
1781
Builder
1781
1/Gas
3
2
1
2.5
Composition
2, Attached
Stories2
2
2026
No
CarChargingStationReady,SolarReady,Tankless
CementSiding
CrawlSpace
CrawlSpace
ConcretePerimeter
DoublePaneWindows,Vi
Commons, Insurance, Ma
Features and Utilities
Dishwasher, Disposal, FreeStandingRefrigerator, Island, Microwave, Pantry, Quartz, SolidSurfaceCountertop
Welcome to Autumn Sunrise by Lennar in Tualatin. The new-construction Blairmont plan offers a modern two-story layout with a fireplace-warmed great room that connects to the kitchen, dining area, and rear patio for easy indoor-outdoor living. Upstairs, two secondary bedrooms and a convenient laundry room surround the spacious primary suite featuring an en-suite bath with a soaking tub, separate walk-in shower, double vanity, and walk-in closet. Interior finishes include quartz countertops, Shaker-style cabinetry, LVP (luxury vinyl plank) flooring in the kitchen and entry way, LVT (luxury vinyl tile) flooring in bathrooms, two-tone interior paint, fencing, and landscaping. This home also includes central air conditioning, a refrigerator, washer and dryer, and blinds—all at no extra cost! Autumn Sunrise is a vibrant community minutes from I-5, shopping, and dining, featuring an onsite park with a playground, fire pit, and a basketball court. Nestled between Wilsonville and Tualatin, residents enjoy nearby access to Bridgeport Village, the Willamette River, golf courses, and Costco. Rendering is artist conception only. Photos are of a similar home, features and finishes will vary. Estimated completion is June '26. Homesite 252.