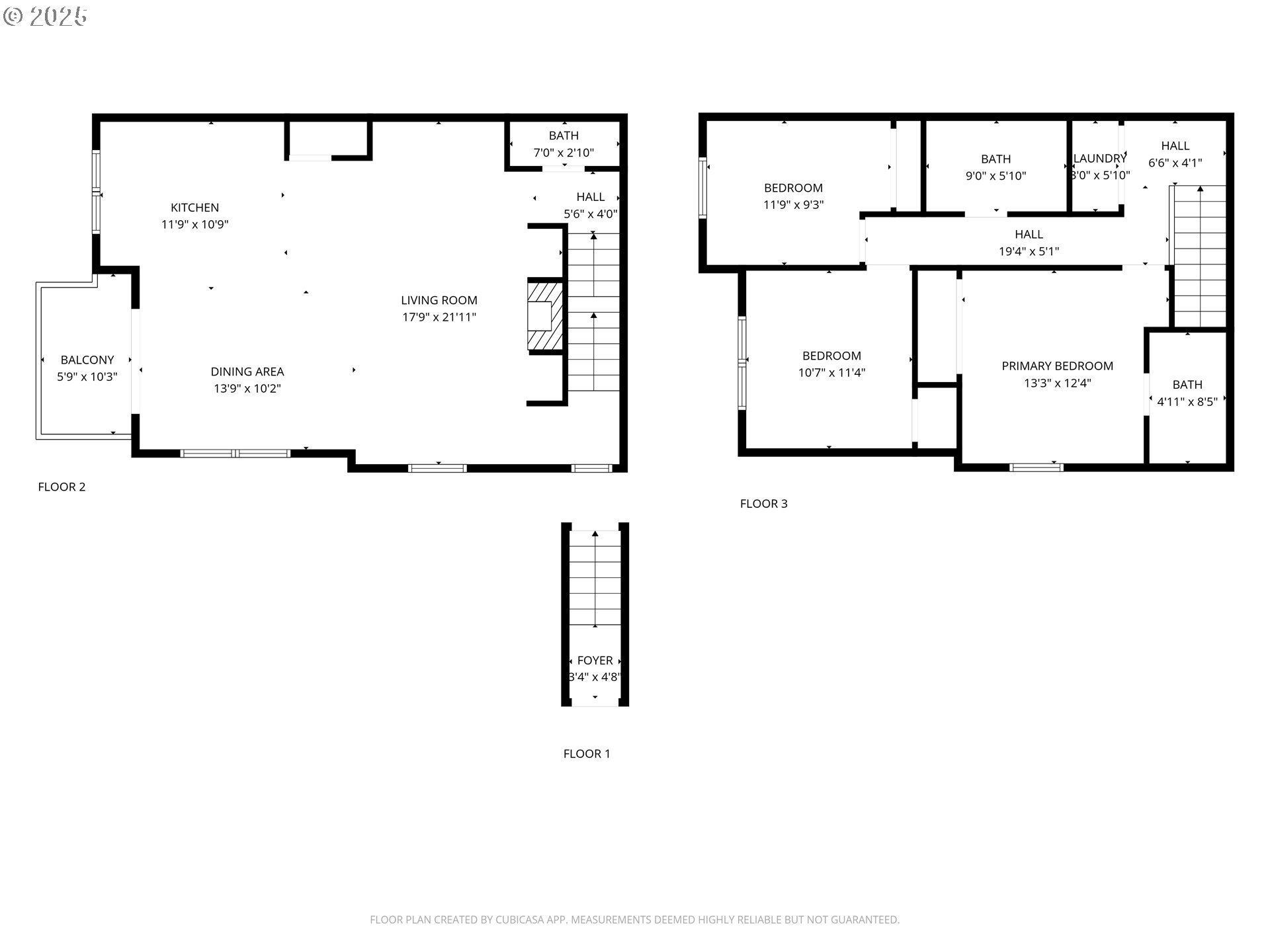
Bright and spacious corner-unit condo spanning two levels with an open-concept layout and private balcony overlooking a peaceful, tree-lined common area. The updated kitchen features granite counters, an eating bar, pantry, and newer stainless appliances—including gas stove, refrigerator, microwave, and disposal. All 3 generous sized bedrooms are located upstairs including a primary suite with its own bathroom, an additional full bathroom in the hallway including an upstairs laundry which includes a newer full-size washer and dryer. Detached garage with opener plus assigned parking.HOA covers exterior maintenance, landscaping, garbage, water, sewer, heated pool, and fitness room. Close to YMCA, parks, top schools, shopping, dining, and public transit, with quick access to Hwy 99E—ideal for homeowners or investors.Note: Construction on exterior is currently underway (new roofs, windows, doors, decks, siding) and will be fully paid at closing by the SELLER for you!! Act fast on this incredible opportunity on one of the largest floorplans available in this complex before its gone. No Rent cap making these units able to be rented out long term only.
Listing Provided Courtesy of Joey McNamara, Real Broker
General Information
428521541
Condominium
128
DOM
3
2.5
1567
2006
Washington
R2144665
Middleton 9/10
Sherwood 8/10
Sherwood 8/10
Residential
Condominium
WOODHAVEN CROSSING CONDO, SUPPLEMENTAL PLAT NO.2: ANNEXATION OF S
Listing Provided Courtesy of Joey McNamara, Real Broker
Krishna Realty data last checked: Feb 22, 2026 01:52 | Listing last modified Feb 11, 2026 14:59,
Source:
Bright and spacious corner-unit condo spanning two levels with an open-concept layout and private balcony overlooking a peaceful, tree-lined common area. The updated kitchen features granite counters, an eating bar, pantry, and newer stainless appliances—including gas stove, refrigerator, microwave, and disposal. All 3 generous sized bedrooms are located upstairs including a primary suite with its own bathroom, an additional full bathroom in the hallway including an upstairs laundry which includes a newer full-size washer and dryer. Detached garage with opener plus assigned parking.HOA covers exterior maintenance, landscaping, garbage, water, sewer, heated pool, and fitness room. Close to YMCA, parks, top schools, shopping, dining, and public transit, with quick access to Hwy 99E—ideal for homeowners or investors.Note: Construction on exterior is currently underway (new roofs, windows, doors, decks, siding) and will be fully paid at closing by the SELLER for you!! Act fast on this incredible opportunity on one of the largest floorplans available in this complex before its gone. No Rent cap making these units able to be rented out long term only.