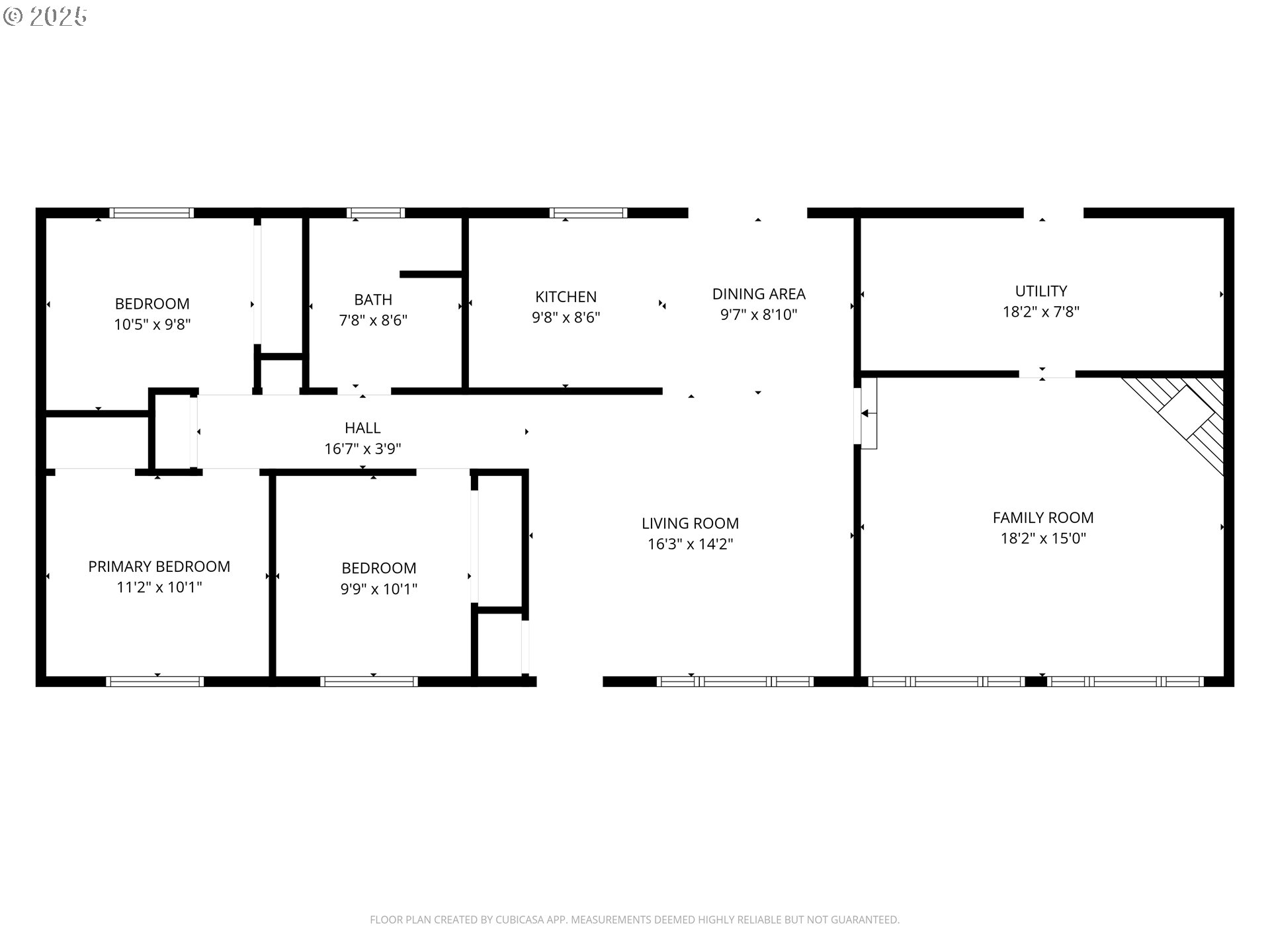
Freshly Updated and Move-In Ready. This 3-bedroom, 1-bath home has been thoughtfully refreshed throughout. The kitchen/dining area opens to both the family room and the great room, creating a functional and inviting layout. Interior Features:- Brand new laminate wood flooring, new trim, and fresh paint throughout the main living areas- Great room with newly installed carpeting- Kitchen upgrades include granite countertops, peel & stick backsplash with a tile look, and a new stove- Utility room off the great room offers ample storage space and potential for an additional bathroom Exterior Features:- Large, fully fenced backyard. Driveway and front walkway recently redone with new concrete. This home is move-in ready and offers modern updates throughout. Schedule your showing today. Back on Market due to buyer losing financing 2 days before closing.Seller just fixed a small belly in the sewer line and new driveway and seller is replacing the roof with in the next couple weeks.
Listing Provided Courtesy of Bradley Mulliner, MORE Realty
General Information
545713809
SingleFamilyResidence
64
DOM
3
7405.2 SqFt
1
1464
1970
Washington
R357544
Butternut Creek 5/10
Mountain View
Century
Residential
SingleFamilyResidence
INDIAN WELLS ADDITION, LOT 27, ACRES 0.17
Listing Provided Courtesy of Bradley Mulliner, MORE Realty
Krishna Realty data last checked: Feb 22, 2026 06:35 | Listing last modified Feb 20, 2026 09:09,
Source:
Freshly Updated and Move-In Ready. This 3-bedroom, 1-bath home has been thoughtfully refreshed throughout. The kitchen/dining area opens to both the family room and the great room, creating a functional and inviting layout. Interior Features:- Brand new laminate wood flooring, new trim, and fresh paint throughout the main living areas- Great room with newly installed carpeting- Kitchen upgrades include granite countertops, peel & stick backsplash with a tile look, and a new stove- Utility room off the great room offers ample storage space and potential for an additional bathroom Exterior Features:- Large, fully fenced backyard. Driveway and front walkway recently redone with new concrete. This home is move-in ready and offers modern updates throughout. Schedule your showing today. Back on Market due to buyer losing financing 2 days before closing.Seller just fixed a small belly in the sewer line and new driveway and seller is replacing the roof with in the next couple weeks.