Beaverton, 97078
3 Bed
2.5 Bath
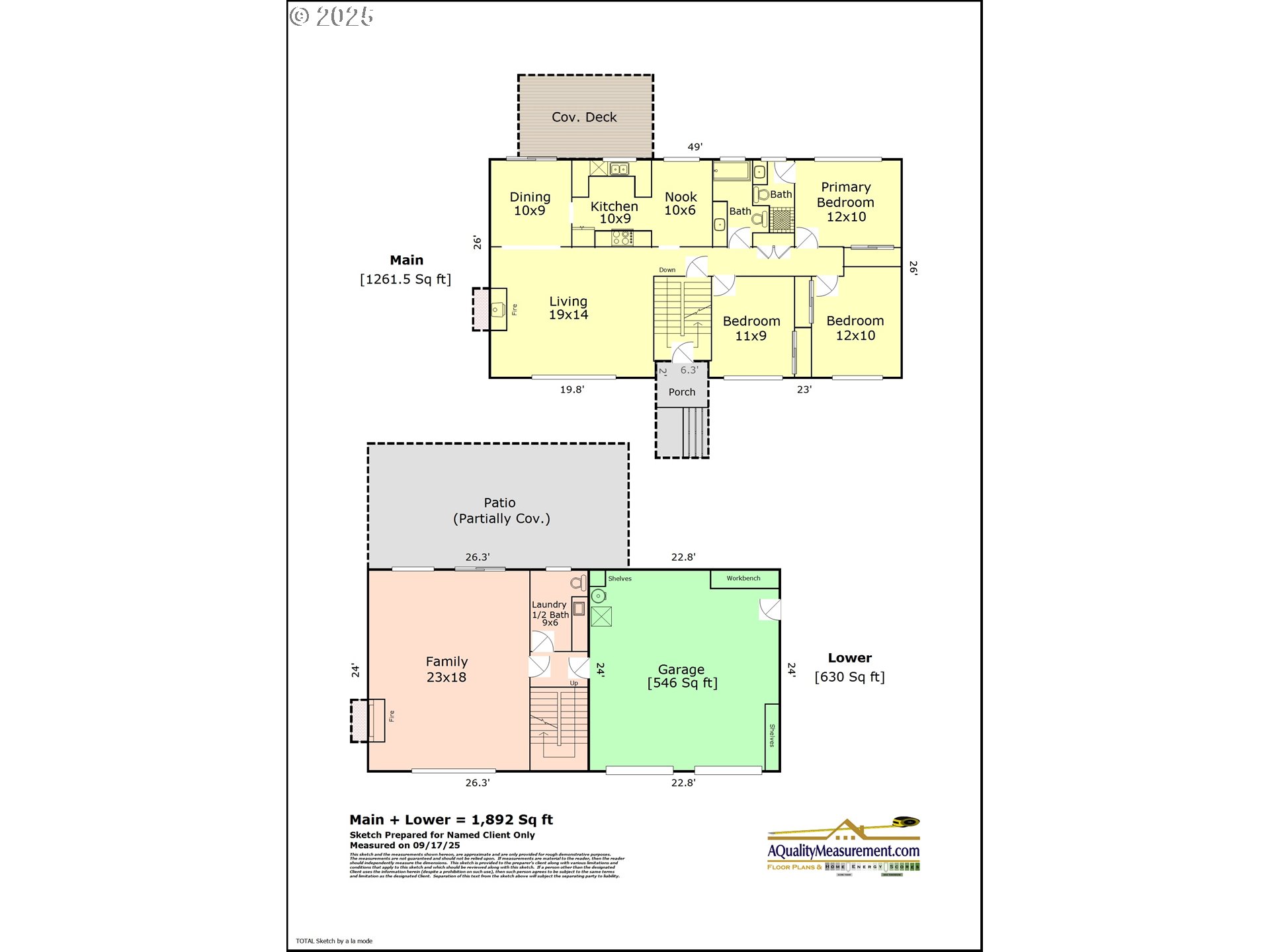
1892 SqFt
24 DOM
Built: 1972
$575,000
Price cut: $14.9K (12-02-2025)
$575000
Price cut: $14.9K (12-02-2025)
3 Bed
2.5 Bath
1892 SqFt
24 DOM
Built: 1972
Principal Broker
(503) 893-8874Discover the perfect blend of comfort and space in this beautifully updated split-level home near Aloha High School and Hazeldale Park. Nestled on a large, flat fenced lot - just shy of a quarter acre, it’s ideal for gardening, outdoor play, entertaining and RV or boat parking. Inside, fresh paint, new carpet & luxury vinyl plank flooring, and abundant natural light create a welcoming feel. The new stylish kitchen features wood cabinetry, quartz countertops, deep sink with sleek faucet, and a new refrigerator. Enjoy year-round comfort with a brand-new gas furnace and central AC. Two wood-burning fireplaces add warmth and charm, while the expansive lower-level family room offers endless versatility. All appliances included. Convenient to parks, shopping, and local dining — this home truly has it all!
Listing Provided Courtesy of Christian Maluo, Where, Inc
205583772
SingleFamilyResidence
24 DOM
3
10018.8 SqFt
2.5
1892
1972
Washington
R375980
Kinnaman 4/10
Mountain View
Aloha 8/10
Residential
SingleFamilyResidence
DARLENE TERRACE, LOT 7
Listing Provided Courtesy of Christian Maluo, Where, Inc
Krishna Realty data last checked: Dec 05, 2025 10:31 | Listing last modified Dec 02, 2025 07:01,
Source:
Download our Mobile app
1262
0
630
1892
measure
1262
2/Gas
3
2
1
2.5
Composition
2, Attached
Split
Driveway,RVAccessPar
2
1972
No
Other
None
RVParking,RVBoatStorage
None
AluminumFrames
Fireplace, Formal
Dishwasher, Disposal, FreeStandingRange, FreeStandingRefrigerator, Microwave, PlumbedForIceMaker, Quartz, S
Laundry, LuxuryVinylPlank, Quartz, WalltoWallCarpet, WasherDryer
Deck, Fenced, Garden, Patio, Porch, RVParking, RVBoatStorage, Yard
AccessibleEntrance, GarageonMain, Parking, UtilityRoomOnMain
CentralAir
Electricity
ForcedAir95Plus
PublicSewer
Electricity
Gas
5302.31
0
Cash,Conventional,FHA,VALoan
11-08-2025
No
No
24
27
Cash,Conventional,FHA,VALoan
$589,900
$575,000
Dec 02, 2025 07:01
Listing courtesy of Where, Inc.
The content relating to real estate for sale on this site comes in part from the IDX program of the RMLS of Portland, Oregon.
Real Estate listings held by brokerage firms other than this firm are marked with the RMLS logo, and
detailed information about these properties include the name of the listing's broker.
Listing content is copyright © 2019 RMLS of Portland, Oregon.
All information provided is deemed reliable but is not guaranteed and should be independently verified.
Krishna Realty data last checked: Dec 05, 2025 10:31 | Listing last modified Dec 02, 2025 07:01.
Some properties which appear for sale on this web site may subsequently have sold or may no longer be available.
Principal Broker
(503) 893-8874Discover the perfect blend of comfort and space in this beautifully updated split-level home near Aloha High School and Hazeldale Park. Nestled on a large, flat fenced lot - just shy of a quarter acre, it’s ideal for gardening, outdoor play, entertaining and RV or boat parking. Inside, fresh paint, new carpet & luxury vinyl plank flooring, and abundant natural light create a welcoming feel. The new stylish kitchen features wood cabinetry, quartz countertops, deep sink with sleek faucet, and a new refrigerator. Enjoy year-round comfort with a brand-new gas furnace and central AC. Two wood-burning fireplaces add warmth and charm, while the expansive lower-level family room offers endless versatility. All appliances included. Convenient to parks, shopping, and local dining — this home truly has it all!
Download our Mobile app