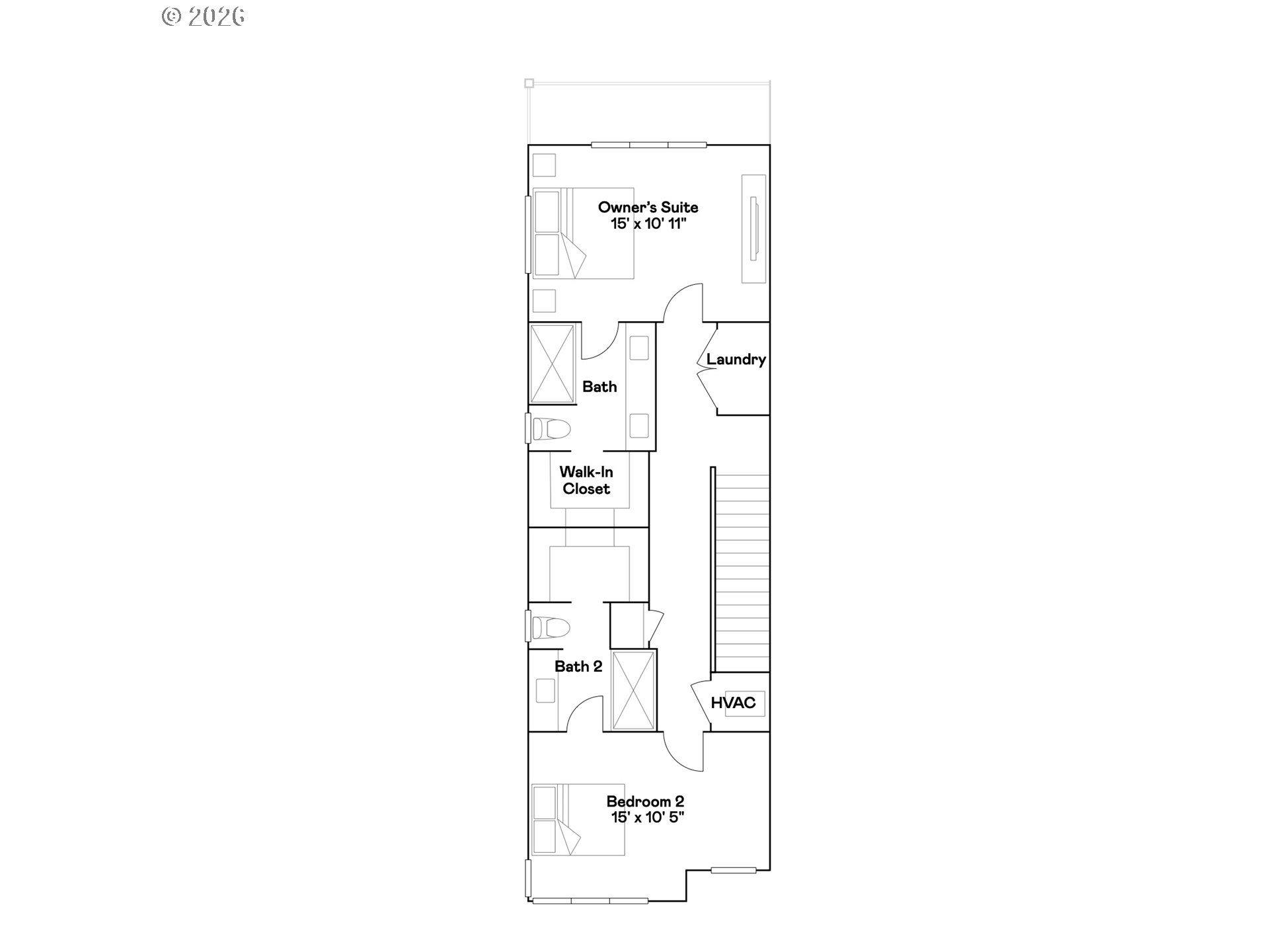
Welcome to Scholls Heights! This new construction townhome with the Bella floorplan offers three levels of stylish and functional living. On the entry level, a tandem two-bay garage sits alongside a private den, ideal for work or quiet relaxation. The second floor showcases an open-concept layout that connects the kitchen, dining area, and great room, extending to a covered deck for outdoor enjoyment. A secondary bedroom on this level provides flexibility for guests or a home office. Upstairs are two primary suites, each with an en-suite bathroom and a walk-in closet. Interior finishes include quartz countertops, slab-style cabinets, matte black hardware, and LVP (luxury vinyl plank) flooring. Premium upgrades add a modern touch with under-cabinet lighting and a picket-style backsplash. The home also includes central air conditioning, a refrigerator, washer and dryer, and blinds—all at no extra cost. Located in Beaverton, Scholls Heights offers easy access to downtown Portland, renowned schools, lush parks, and a thriving dining scene. With nearby shopping, outdoor recreation, and major employers, this vibrant community combines comfort and convenience. Rendering is artist conception only. Photos are of a similar home, features and finishes will vary. Incentives available with the use of our preferred lender! Bella Plan, Homesite 58, move in ready!
Listing Provided Courtesy of Ken Chin, Lennar Sales Corp
General Information
474051957
Attached
21
DOM
3
1742.4 SqFt
3
1817
2025
Washington
R2226238
Hazeldale 6/10
Mountain View 3/10
Mountainside 6/10
Residential
Attached
SCHOLLS HEIGHTS NORTHEAST NO.2, LOT 58, ACRES 0.04
Listing Provided Courtesy of Ken Chin, Lennar Sales Corp
Krishna Realty data last checked: Mar 23, 2026 18:37 | Listing last modified Mar 02, 2026 15:34,
Source:
Welcome to Scholls Heights! This new construction townhome with the Bella floorplan offers three levels of stylish and functional living. On the entry level, a tandem two-bay garage sits alongside a private den, ideal for work or quiet relaxation. The second floor showcases an open-concept layout that connects the kitchen, dining area, and great room, extending to a covered deck for outdoor enjoyment. A secondary bedroom on this level provides flexibility for guests or a home office. Upstairs are two primary suites, each with an en-suite bathroom and a walk-in closet. Interior finishes include quartz countertops, slab-style cabinets, matte black hardware, and LVP (luxury vinyl plank) flooring. Premium upgrades add a modern touch with under-cabinet lighting and a picket-style backsplash. The home also includes central air conditioning, a refrigerator, washer and dryer, and blinds—all at no extra cost. Located in Beaverton, Scholls Heights offers easy access to downtown Portland, renowned schools, lush parks, and a thriving dining scene. With nearby shopping, outdoor recreation, and major employers, this vibrant community combines comfort and convenience. Rendering is artist conception only. Photos are of a similar home, features and finishes will vary. Incentives available with the use of our preferred lender! Bella Plan, Homesite 58, move in ready!